Exposé
Objektart:
Wohnung
» Dachgeschoss
» Kauf
Standort: Wohnung »
Deutschland » Nordrhein-Westfalen » Düsseldorf, Stadt (Kreis) » Düsseldorf / Unterbach
Attraktive Galeriewohnung am Unterbacher See
Wohnen
Das Wichtigste auf einen Blick:
| Objektnummer: | 9221076 |
Preise
| Kaufpreis | 370.000 € |
| Nebenkosten | keine Angabe |
Flächen
| Wohnfläche | 120 m² |
| Maklerprovision | 3,57 % vom Kaufpreis (inkl. MwSt.) |
Objekt Adresse
40627 Düsseldorf / Unterbach
Sonstige Angaben
| Baujahr | 1971 |
| Zimmer | 3 |
| Verfügbar ab | keine Angabe |
| Bad | 1 |
| Bad | 1 |
| Bad | Dusche, Fenster |
| Keller | Ja |
| Heizungsart | Fußbodenheizung |
| Energieträger/Befeuerung | Elektro |
Objektbeschreibung
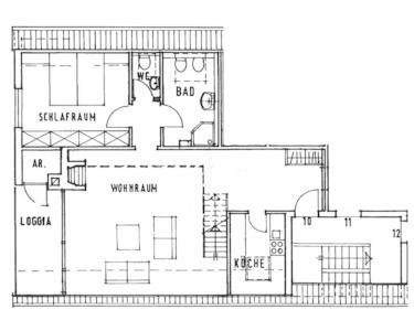
Attraktive Galeriewohnung im zweiten Obergeschoss.
Mittelpunkt der Wohnung ist der offen gestaltete Wohn- und Essbereich mit über 38 m². Das große Fensterelement mit Zugang zur Südloggia sind ein echter Blickfang und sorgen für viel Licht. Besonders praktisch ist der Abstellraum an der Loggia für Balkonutensilien.
Schlafzimmer, Küche, Duschbad sowie ein Gäste-WC ergänzen die Eingangsebene.
Über eine Treppe gelangt man auf die offene Galerie – ideal als Home-Office. Ein weiterer, separat zugänglicher Raum komplettiert diese Ebene.
Die Wohnung ist langjährig vermietet.
Mittelpunkt der Wohnung ist der offen gestaltete Wohn- und Essbereich mit über 38 m². Das große Fensterelement mit Zugang zur Südloggia sind ein echter Blickfang und sorgen für viel Licht. Besonders praktisch ist der Abstellraum an der Loggia für Balkonutensilien.
Schlafzimmer, Küche, Duschbad sowie ein Gäste-WC ergänzen die Eingangsebene.
Über eine Treppe gelangt man auf die offene Galerie – ideal als Home-Office. Ein weiterer, separat zugänglicher Raum komplettiert diese Ebene.
Die Wohnung ist langjährig vermietet.
Ausstattung
- Wohnfläche ca. 103 m² zzgl. Nutzfläche (Spitzboden) ca. 17 m²
- Tageslicht Duschbad und separates Gäste-WC
- Fliesen- und Teppichböden
- Loggia in Südausrichtung mit Abstellraum
- Elektro-Fußbodenheizung
- Kellerraum
- Tageslicht Duschbad und separates Gäste-WC
- Fliesen- und Teppichböden
- Loggia in Südausrichtung mit Abstellraum
- Elektro-Fußbodenheizung
- Kellerraum
Lage des Objektes
Der im Düsseldorfer Süden gelegene Stadtteil Unterbach zählt zu den beliebtesten Wohngebieten in grüner Randlage der Landeshauptstadt.
Erholung pur bietet gleich in der Nachbarschaft der Unterbacher See mit seinen Strandbädern, zum Joggen, Fahrradfahren oder Segeln. Hier leben Sie nah an der Natur, in gehobener Nachbarschaft und trotzdem verkehrsgünstig.
Die Verkehrsanbindungen sind ausgezeichnet. Die A 46 Richtung Düsseldorf, Wuppertal und Ruhrgebiet ist in wenigen Minuten schnell erreicht. Die Buslinien 735 und 737 pendeln zwischen Düsseldorfer City, Unterbach, Erkrath und Hilden.
Tägliche Einkäufe erledigt man am nahegelegenen Breidenplatz oder am Neuenhausplatz. Hier gibt es moderne REWE-Märkte, Bäcker und Apotheken.
Für den Nachwuchs befinden sich Wichernschule und katholischer Kindergarten in der Nähe. Der Düsseldorfer Flughafen liegt nur 18 km entfernt.
Erholung pur bietet gleich in der Nachbarschaft der Unterbacher See mit seinen Strandbädern, zum Joggen, Fahrradfahren oder Segeln. Hier leben Sie nah an der Natur, in gehobener Nachbarschaft und trotzdem verkehrsgünstig.
Die Verkehrsanbindungen sind ausgezeichnet. Die A 46 Richtung Düsseldorf, Wuppertal und Ruhrgebiet ist in wenigen Minuten schnell erreicht. Die Buslinien 735 und 737 pendeln zwischen Düsseldorfer City, Unterbach, Erkrath und Hilden.
Tägliche Einkäufe erledigt man am nahegelegenen Breidenplatz oder am Neuenhausplatz. Hier gibt es moderne REWE-Märkte, Bäcker und Apotheken.
Für den Nachwuchs befinden sich Wichernschule und katholischer Kindergarten in der Nähe. Der Düsseldorfer Flughafen liegt nur 18 km entfernt.
Sonstige Informationen
Eigentum am Unterbacher See!
Energieausweis: Nicht vorhanden / in Vorbereitung!
Wohnen
Relaxen
Kochen
Galerie
Hobby
Bad
Gepflegt
Gepflegt
Dachgeschoss
Galerie