Exposé
Objektart:
Haus
» Kauf
Standort: Haus »
Deutschland » Niedersachsen » Friesland (Kreis) » Varel
Doppelhaus mit Einliegerwohnung in Alleinlage von Varel-Streek
versteckt im Grünen
Das Wichtigste auf einen Blick:
| Objektnummer: | 9216862 |
Preise
| Kaufpreis | 165.000 € |
| Nebenkosten | keine Angabe |
Flächen
| Wohnfläche | 178,16 m² |
| Grundstücksfläche | 3.826 m² |
| Maklerprovision | in Höhe von 3 % des Kaufpreises einschließl. MwSt. zzgl. Notar- und Gerichtskosten |
Objekt Adresse
26316 Varel
Sonstige Angaben
| Baujahr | 1924 |
| Zimmer | 8 |
| Verfügbar ab | keine Angabe |
| Energieausweistyp | Bedarfsausweis |
| Ausstellungsdatum | 05. 03. 2025 |
| Gültig bis | 2035-03-04 |
| Baujahr (laut Energieausweis) | 1924 |
| Energieeffizienzklasse | G |
| Endenergiebedarf | 204.4 kWh/(m²*a) |
| Heizungsart | Zentralheizung |
| Wesentlicher Energieträger | Strom |
| Energieträger/Befeuerung | Elektro, Pellet |
Objektbeschreibung
Dieses ehemalige Bahnwärterhaus befindet sich auf einem 3.826 m² großen Grundstück mit umfangreichem Pflanzenbestand inmitten von Grünland.
Von großen Pappeln als "Windbrecher" umsäumt, befinden sich im Inneren dieser grünen Oase weit mehr als 50 Obstbäume mit Äpfeln, Birnen, Mirabellen, Kirschen, Holunder, Haselnüssen sowie Johannisbeer- und Stachelbeersträucher.
Die am Grundstück vorbei führende Bahntrasse ist mit einer Lärmschutzwand versehen. Darüber hinaus befinden sich an der zugewandten Seite des Hauses zur Bahnlinie im Dachgeschoss Schallschutzfenster. Insofern ist die Lärmbelästigung deutlich entschärft.
Aufgrund der haustechnischen Ausstattung bietet die Liegenschaft eine weitgehende Unabhängigkeit von öffentlichen Versorgern.
Im Jahr 2020 wurde eine Pelletheizung nebst sämtlicher Rohrleitungen und Heizkörper installiert.
Die Trinkwasserversorgung erfolgt über einen eigenen Brunnen (2021 gebohrt) mit Filter- und Aufbereitungsanlage.
Eine Kleinkläranlage (abgenommen bis 2032) gewährleistet die Abwasserentsorgung.
Darüber hinaus befindet sich auf dem Dach des Hauses eine PV-Anlage aus 2017 (mit 2,28 kWp).
Hausanschlüsse für Strom und Telefon sind vorhanden.
In den Jahren 2004/05 sind Dacheindeckung nebst Dämmung sowie die gesamte Elektroinstallation und sanitäre Bereiche erneuert worden.
Das Duschbad der Einliegerwohnung wurde 2021 eingebaut.
Die Kunststofffenster mit ISO-Verglasung sind aus verschiedenen Jahren von 1996 bis 2015.
Innerhalb der Räumlichkeiten besteht Renovierungsbedarf.
Im Haus befindet sich ein Schornstein mit 4 nebeneinander liegenden Steinzügen. Insofern ist ein Kaminofenanschluss möglich.
Die Liegenschaft befindet sich auf moorigem Boden und weist an Teilen des Mauerwerkes Risse auf (verursacht durch Rammarbeiten bei der Elektrifizierung der Bahntrasse).
Eine Bodenbohrung hat ergeben, dass in 3 Meter Tiefe fester Grund vorhanden ist.
Eine Kostenschätzung für eine Teilinstandsetzung des Fundamentes beläuft sich auf ca. 10.000,00 €.
Räumlichkeiten:
Wohnung I:
Eigenen Eingang, großer Flur mit Treppenaufgang zu den Wohnräumen im Dachgeschoss:
Wohnzimmer, Schlafzimmer, Küche, Dusche / WC, Aufgang in den ausgebauten Spitzboden.
Wohnfläche: ca. 46,063 m²
Wohnung II:
Eigener Eingang,
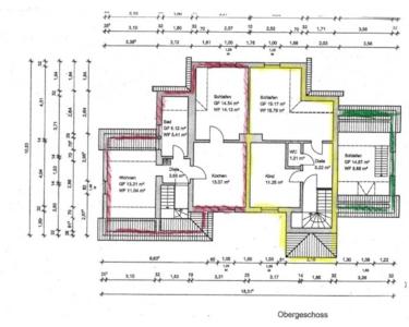
Erdgeschoss: Flur mit Treppenaufgang, Wohnzimmer, Küche, Schlafzimmer, Bad / WC,
Dachgeschoss: Flur mit Treppenaufgang zum Spitzboden, WC, 2 Schlafzimmer.
Wohnfläche: ca. 106,365 m²
Einliegerwohnung:
Eigener Zugang,
Erdgeschoss: Wohnzimmer mit integrierter Küche und Treppenaufgang, Dusche / WC,
Dachgeschoss: 1 Schlafzimmer.
Wohnfläche: ca. 25,734 m²
Nebengebäude:
3 Schuppengebäude in Holzbauweise, sanierungsbeürftig und überwiegend abgängig.
Antritt: gemäß Absprache - frei werdend
Von großen Pappeln als "Windbrecher" umsäumt, befinden sich im Inneren dieser grünen Oase weit mehr als 50 Obstbäume mit Äpfeln, Birnen, Mirabellen, Kirschen, Holunder, Haselnüssen sowie Johannisbeer- und Stachelbeersträucher.
Die am Grundstück vorbei führende Bahntrasse ist mit einer Lärmschutzwand versehen. Darüber hinaus befinden sich an der zugewandten Seite des Hauses zur Bahnlinie im Dachgeschoss Schallschutzfenster. Insofern ist die Lärmbelästigung deutlich entschärft.
Aufgrund der haustechnischen Ausstattung bietet die Liegenschaft eine weitgehende Unabhängigkeit von öffentlichen Versorgern.
Im Jahr 2020 wurde eine Pelletheizung nebst sämtlicher Rohrleitungen und Heizkörper installiert.
Die Trinkwasserversorgung erfolgt über einen eigenen Brunnen (2021 gebohrt) mit Filter- und Aufbereitungsanlage.
Eine Kleinkläranlage (abgenommen bis 2032) gewährleistet die Abwasserentsorgung.
Darüber hinaus befindet sich auf dem Dach des Hauses eine PV-Anlage aus 2017 (mit 2,28 kWp).
Hausanschlüsse für Strom und Telefon sind vorhanden.
In den Jahren 2004/05 sind Dacheindeckung nebst Dämmung sowie die gesamte Elektroinstallation und sanitäre Bereiche erneuert worden.
Das Duschbad der Einliegerwohnung wurde 2021 eingebaut.
Die Kunststofffenster mit ISO-Verglasung sind aus verschiedenen Jahren von 1996 bis 2015.
Innerhalb der Räumlichkeiten besteht Renovierungsbedarf.
Im Haus befindet sich ein Schornstein mit 4 nebeneinander liegenden Steinzügen. Insofern ist ein Kaminofenanschluss möglich.
Die Liegenschaft befindet sich auf moorigem Boden und weist an Teilen des Mauerwerkes Risse auf (verursacht durch Rammarbeiten bei der Elektrifizierung der Bahntrasse).
Eine Bodenbohrung hat ergeben, dass in 3 Meter Tiefe fester Grund vorhanden ist.
Eine Kostenschätzung für eine Teilinstandsetzung des Fundamentes beläuft sich auf ca. 10.000,00 €.
Räumlichkeiten:
Wohnung I:
Eigenen Eingang, großer Flur mit Treppenaufgang zu den Wohnräumen im Dachgeschoss:
Wohnzimmer, Schlafzimmer, Küche, Dusche / WC, Aufgang in den ausgebauten Spitzboden.
Wohnfläche: ca. 46,063 m²
Wohnung II:
Eigener Eingang,
Erdgeschoss: Flur mit Treppenaufgang, Wohnzimmer, Küche, Schlafzimmer, Bad / WC,
Dachgeschoss: Flur mit Treppenaufgang zum Spitzboden, WC, 2 Schlafzimmer.
Wohnfläche: ca. 106,365 m²
Einliegerwohnung:
Eigener Zugang,
Erdgeschoss: Wohnzimmer mit integrierter Küche und Treppenaufgang, Dusche / WC,
Dachgeschoss: 1 Schlafzimmer.
Wohnfläche: ca. 25,734 m²
Nebengebäude:
3 Schuppengebäude in Holzbauweise, sanierungsbeürftig und überwiegend abgängig.
Antritt: gemäß Absprache - frei werdend
Ausstattung
Photovoltaikanlage aus 2017 mit 2,28 kWp
Pelletheizungsanlage
Pelletheizungsanlage
Zufahrt
Vorderansicht
Vorderansicht
Vorderansicht
Rückansicht
Seitenansicht
Garten
Garten
Garten
Garten
Elektrosicherungskasten
Pelletofen aus 2020
IMG-20250816-WA0004
2436_Grundriss EG
2436_Grundriss OG
2436_Grundriss DG