Exposé
Objektart:
Gastgewerbe
» Restaurant
» Kauf
Standort: Gastgewerbe »
Deutschland » Baden-Württemberg » Ortenaukreis (Kreis) » Neuried
Exklusives Restaurant mit Gästezimmern, großer Außenanlage und Top-Lage an frequentierter Straße
Kaminecke
Das Wichtigste auf einen Blick:
| Objektnummer: | 9211566 |
Preise
| Kaufpreis | 1.990.000 € |
| Nebenkosten | keine Angabe |
Flächen
| Wohnfläche | 653 m² |
| Grundstücksfläche | 792 m² |
| Maklerprovision | 3,57 |
Objekt Adresse
77743 Neuried
- Baden-Württemberg
Sonstige Angaben
| Baujahr | 1898 |
| Letzte Modernisierung | 2025 |
| Zimmer | 15 |
| Verfügbar ab | sofort |
| Bad | 14 |
| Anzahl der Etagen im Haus | 3 |
| Küche | Einbauküche |
| Bad | 14 |
| Bad | Dusche, Wanne, Fenster, Bidet, Pissoir |
| Boden | Fliesen, Teppich |
| Balkone | 1 |
| Keller | Ja |
| Wesentlicher Energieträger | Öl |
| Energieträger/Befeuerung | Öl |
Objektbeschreibung
Beim Betreten dieser charmanten Immobilie an einer gut befahrenen Straße deren Grundstein 1898 erbaut und über die Jahre renoviert, saniert und modern ausgebaut wurde, empfängt Sie ein stilvoller Eingangsbereich, der sofort das warme, mediterrane Ambiente spürbar macht und den unverwechselbaren italienischen Charme widerspiegelt. Schon hier entsteht eine Atmosphäre, die Gäste willkommen heißt und zum Verweilen einlädt.
Im Erdgeschoss befindet sich das großzügige Restaurant, das mit einer gemütlichen Kaminecke ausgestattet ist. Hier können Besucher in behaglichem Ambiente speisen, während der Kamin eine besondere Wohlfühlatmosphäre schafft. Der angrenzende Thekenbereich bietet eine vielfältige Auswahl an Getränken und lädt zu geselligen Stunden ein, sei es für ein entspanntes Glas Wein oder einen lebhaften Austausch in geselliger Runde.
Ein besonderes Highlight ist der lichtdurchflutete Wintergarten, der mit dem angrenzenden Außenbereich hinter dem Haus verbunden ist. Diese Erweiterung des Gastronomiebereichs schafft Raum für zahlreiche Gäste und bietet die ideale Kulisse für sommerliche Abende, gesellige Feiern oder stilvolle Veranstaltungen unter freiem Himmel. Für zusätzlichen Komfort sorgen die modernen Gäste-WCs im Restaurantbereich.
Die Küche ist professionell ausgestattet und auf einen vollwertigen Gastronomiebetrieb ausgelegt. Mit Kochbereich, separatem Vorbereitungsraum sowie einem Kühlraum bietet sie optimale Bedingungen, um kulinarische Köstlichkeiten auf höchstem Niveau zuzubereiten.
In den beiden Obergeschossen erwarten die Gäste 12 geschmackvoll eingerichtete Zimmer, jedes mit eigenem Bad. Die Zimmer strahlen eine angenehme Behaglichkeit aus und bieten nach einem erlebnisreichen Tag den perfekten Rückzugsort.
Zusätzlichen Stauraum und flexible Nutzungsmöglichkeiten bietet der Keller. Direkt an die Immobilie angebunden sind außerdem drei Garagen sowie mehrere Stellplätze im Außenbereich, die insbesondere für länger bleibende Gäste einen praktischen Komfort darstellen.
Mit seinen insgesamt 12 Gästezimmern und dem stimmungsvollen Restaurant vereint dieses Objekt Gastronomie und Hotellerie auf harmonische Weise. Ein Haus, das nicht nur bewirtet, sondern Erlebnisse schafft.
Im Erdgeschoss befindet sich das großzügige Restaurant, das mit einer gemütlichen Kaminecke ausgestattet ist. Hier können Besucher in behaglichem Ambiente speisen, während der Kamin eine besondere Wohlfühlatmosphäre schafft. Der angrenzende Thekenbereich bietet eine vielfältige Auswahl an Getränken und lädt zu geselligen Stunden ein, sei es für ein entspanntes Glas Wein oder einen lebhaften Austausch in geselliger Runde.
Ein besonderes Highlight ist der lichtdurchflutete Wintergarten, der mit dem angrenzenden Außenbereich hinter dem Haus verbunden ist. Diese Erweiterung des Gastronomiebereichs schafft Raum für zahlreiche Gäste und bietet die ideale Kulisse für sommerliche Abende, gesellige Feiern oder stilvolle Veranstaltungen unter freiem Himmel. Für zusätzlichen Komfort sorgen die modernen Gäste-WCs im Restaurantbereich.
Die Küche ist professionell ausgestattet und auf einen vollwertigen Gastronomiebetrieb ausgelegt. Mit Kochbereich, separatem Vorbereitungsraum sowie einem Kühlraum bietet sie optimale Bedingungen, um kulinarische Köstlichkeiten auf höchstem Niveau zuzubereiten.
In den beiden Obergeschossen erwarten die Gäste 12 geschmackvoll eingerichtete Zimmer, jedes mit eigenem Bad. Die Zimmer strahlen eine angenehme Behaglichkeit aus und bieten nach einem erlebnisreichen Tag den perfekten Rückzugsort.
Zusätzlichen Stauraum und flexible Nutzungsmöglichkeiten bietet der Keller. Direkt an die Immobilie angebunden sind außerdem drei Garagen sowie mehrere Stellplätze im Außenbereich, die insbesondere für länger bleibende Gäste einen praktischen Komfort darstellen.
Mit seinen insgesamt 12 Gästezimmern und dem stimmungsvollen Restaurant vereint dieses Objekt Gastronomie und Hotellerie auf harmonische Weise. Ein Haus, das nicht nur bewirtet, sondern Erlebnisse schafft.
Ausstattung
Preis inkl. dem kompletten Inventars!
Renovierungen nach Stockwerken
0. KG
2018 Keller
- Neue Entkalkungsanlage installiert (Baujahr 2018)
2022 Keller
- Neue Kälusanlage installiert und aktiviert
2025 Keller
- Neue Busbar für Telekommunikation installiert
1. EG
2012 Restaurant
- Komplett neue Bestuhlung (Stühle) und Polsterung
- Neue Gardinen und Lampen
- Seit 2012 alle zwei Jahre komplett gestrichen
2017 Küche & Backstube
- Kompletter Umbau der Küche
- Backstube erhöht auf gleiche Höhe wie Küche
- Boden und Wände komplett neu gefliest
- Neue Stromkabel verlegt
- Abwasserleitungen erneuert
- Einbau eines begehbaren Kühlraums (4 m), direkt begehbar aus der Küche
2019 Eingang/Ausgang Saal
- Komplett erneuert
2022 Restaurant
- Komplette neue Theke von Schreinerei Krocker
- Neues Kühlsystem mit sechs Kühlschubladen und zwei Kühltüren
- Neue Python-Leitung aus dem Keller installiert
- Neue Kühlaggregate mit Motoren
- Neue Beleuchtung im Thekenbereich
- Wände im Thekenbereich neu verputzt
- Neue Kabel für digitale Technik (Bus-System, Telekommunikation, Kamera) verlegt
1. Stock
2015-2018 Hotelzimmer
- Neues Bad eingebaut (moderne Sanitärinstallationen)
- Zimmer verputzt (keine Tapeten)
- Neuer Teppichboden verlegt
- TV-Kabel verlegt
2019
- Privat-WC im 1. Stock- Komplett renoviert
- Neue Sanitärinstallationen, Fliesen und Beleuchtung
2023-2025 Wirte-Wohnung
- Umbau in drei neue Zimmer (zwei Doppelzimmer und ein Einzelzimmer)
- Drei neue Bäder eingebaut
- Komplett neuer Vinylboden verlegt
- Wände verputzt
- Neue Wasserleitungen (Warm- und Kaltwasser) installiert
- Neue Heizungsrohre installiert
- Neue Stromleitungen verlegt
2. Stock
2012-2015 Hotelzimmer
- Bad komplett neu gefliest (Boden- und Wandfliesen, moderne Sanitärinstallationen)
- Zimmerboden neu gefliest
- Wände neu tapeziert
- Teilweise neue Kunststofffenster eingebaut (wärme- und schalldämmend)
- TV-Kabel verlegt
Weitere Renovierungen
2016 Treppenaufgang (gesamter Bereich)
- Komplett neuer Teppich verlegt
2019 Hausanschluss
- 100 W Stromkabel von der Straße direkt ins Haus verlegt
- Gasleitung bis ins Haus gelegt (für mögliche spätere Umrüstung auf Gasheizung)
2021-2022 Toiletten (Herren und Damen)
- Komplett renoviert und modernisiert
- Neue Fliesen, Sanitärinstallationen und Beleuchtung
2024 Dachgeschoss
- Komplett neu isoliert (Innenisolierung) zur Verbesserung der Energieeffizienz
Eingangsbereich Restaurant
- Eingang komplett neu verputzt und neu gedämmt
- Holzladungen entfernt
- Fassade neu gestrichen und verputzt
- Neue Plane auf dem Vordach angebracht
Außenterrasse
- Bestückt mit 40 Stahlstühlen
- Zehn Tische vorhanden
Renovierungen nach Stockwerken
0. KG
2018 Keller
- Neue Entkalkungsanlage installiert (Baujahr 2018)
2022 Keller
- Neue Kälusanlage installiert und aktiviert
2025 Keller
- Neue Busbar für Telekommunikation installiert
1. EG
2012 Restaurant
- Komplett neue Bestuhlung (Stühle) und Polsterung
- Neue Gardinen und Lampen
- Seit 2012 alle zwei Jahre komplett gestrichen
2017 Küche & Backstube
- Kompletter Umbau der Küche
- Backstube erhöht auf gleiche Höhe wie Küche
- Boden und Wände komplett neu gefliest
- Neue Stromkabel verlegt
- Abwasserleitungen erneuert
- Einbau eines begehbaren Kühlraums (4 m), direkt begehbar aus der Küche
2019 Eingang/Ausgang Saal
- Komplett erneuert
2022 Restaurant
- Komplette neue Theke von Schreinerei Krocker
- Neues Kühlsystem mit sechs Kühlschubladen und zwei Kühltüren
- Neue Python-Leitung aus dem Keller installiert
- Neue Kühlaggregate mit Motoren
- Neue Beleuchtung im Thekenbereich
- Wände im Thekenbereich neu verputzt
- Neue Kabel für digitale Technik (Bus-System, Telekommunikation, Kamera) verlegt
1. Stock
2015-2018 Hotelzimmer
- Neues Bad eingebaut (moderne Sanitärinstallationen)
- Zimmer verputzt (keine Tapeten)
- Neuer Teppichboden verlegt
- TV-Kabel verlegt
2019
- Privat-WC im 1. Stock- Komplett renoviert
- Neue Sanitärinstallationen, Fliesen und Beleuchtung
2023-2025 Wirte-Wohnung
- Umbau in drei neue Zimmer (zwei Doppelzimmer und ein Einzelzimmer)
- Drei neue Bäder eingebaut
- Komplett neuer Vinylboden verlegt
- Wände verputzt
- Neue Wasserleitungen (Warm- und Kaltwasser) installiert
- Neue Heizungsrohre installiert
- Neue Stromleitungen verlegt
2. Stock
2012-2015 Hotelzimmer
- Bad komplett neu gefliest (Boden- und Wandfliesen, moderne Sanitärinstallationen)
- Zimmerboden neu gefliest
- Wände neu tapeziert
- Teilweise neue Kunststofffenster eingebaut (wärme- und schalldämmend)
- TV-Kabel verlegt
Weitere Renovierungen
2016 Treppenaufgang (gesamter Bereich)
- Komplett neuer Teppich verlegt
2019 Hausanschluss
- 100 W Stromkabel von der Straße direkt ins Haus verlegt
- Gasleitung bis ins Haus gelegt (für mögliche spätere Umrüstung auf Gasheizung)
2021-2022 Toiletten (Herren und Damen)
- Komplett renoviert und modernisiert
- Neue Fliesen, Sanitärinstallationen und Beleuchtung
2024 Dachgeschoss
- Komplett neu isoliert (Innenisolierung) zur Verbesserung der Energieeffizienz
Eingangsbereich Restaurant
- Eingang komplett neu verputzt und neu gedämmt
- Holzladungen entfernt
- Fassade neu gestrichen und verputzt
- Neue Plane auf dem Vordach angebracht
Außenterrasse
- Bestückt mit 40 Stahlstühlen
- Zehn Tische vorhanden
Lage des Objektes
Diese Immobilie in Neuried besticht durch ihre ausgezeichnete Erreichbarkeit und ihr attraktives Umfeld. Ein idealer Standort für Hoteliers, Gastronomen oder Reisegruppen, die auf Wachstum setzen.
Durch die Nähe zu wichtigen Verkehrsknotenpunkten ist die Anbindung optimal: Bushaltestellen wie Altenheim, Süd und Altenheim, Kirchstraße sind in wenigen Minuten fußläufig erreichbar. Die Autobahn ist nur ca. 15 Minuten entfernt und ermöglicht schnelle Verbindungen in die gesamte Region. Der Flughafen Karlsruhe/Baden-Baden ist in rund 45 Minuten erreichbar und eröffnet internationale Anbindungsmöglichkeiten. Auch die Metropolen Straßburg und Basel sind in angemessener Fahrzeit erreichbar und unterstreichen die Attraktivität der Lage. So ist der Standort nicht nur für Urlauber, sondern auch für Geschäftsreisende attraktiv.
Für die Nahversorgung stehen Apotheken, Ärzte und weitere Einrichtungen direkt vor Ort zur Verfügung, ein Vorteil sowohl für Gäste als auch für Mitarbeiter.
Darüber hinaus bietet Neuried ein angenehmes Umfeld für Freizeit und Erholung.
Insgesamt verbindet diese Lage eine hervorragende regionale und überregionale Erreichbarkeit mit einer attraktiven Umgebung. Damit eignet sie sich ideal für Investoren und Hoteliers, die ihren Gästen einen komfortablen Standort bieten möchten, sei es als Zwischenhalt oder als Ausgangspunkt für Geschäfts- und Freizeitreisen in der Region.
Durch die Nähe zu wichtigen Verkehrsknotenpunkten ist die Anbindung optimal: Bushaltestellen wie Altenheim, Süd und Altenheim, Kirchstraße sind in wenigen Minuten fußläufig erreichbar. Die Autobahn ist nur ca. 15 Minuten entfernt und ermöglicht schnelle Verbindungen in die gesamte Region. Der Flughafen Karlsruhe/Baden-Baden ist in rund 45 Minuten erreichbar und eröffnet internationale Anbindungsmöglichkeiten. Auch die Metropolen Straßburg und Basel sind in angemessener Fahrzeit erreichbar und unterstreichen die Attraktivität der Lage. So ist der Standort nicht nur für Urlauber, sondern auch für Geschäftsreisende attraktiv.
Für die Nahversorgung stehen Apotheken, Ärzte und weitere Einrichtungen direkt vor Ort zur Verfügung, ein Vorteil sowohl für Gäste als auch für Mitarbeiter.
Darüber hinaus bietet Neuried ein angenehmes Umfeld für Freizeit und Erholung.
Insgesamt verbindet diese Lage eine hervorragende regionale und überregionale Erreichbarkeit mit einer attraktiven Umgebung. Damit eignet sie sich ideal für Investoren und Hoteliers, die ihren Gästen einen komfortablen Standort bieten möchten, sei es als Zwischenhalt oder als Ausgangspunkt für Geschäfts- und Freizeitreisen in der Region.
Sonstige Informationen
Die Objektbeschreibung basiert ganz oder teilweise auf den Angaben von Dritten. Für die Richtigkeit und Vollständigkeit dieser Informationen übernehmen wir keine Gewähr. Bitte beachten Sie, dass das Exposé möglicherweise unter Zuhilfenahme von Künstlicher Intelligenz (KI) erstellt oder überarbeitet wurde. Dabei wurden jedoch keine wesentlichen Merkmale verändert.
Vorderansicht
Ansicht Ecke
Seitenansicht
Terrasse Garagen Stellplätze
Thekenbereich
Theke
Rezeption
Theke
Theke
Theke
Theke
Kaminecke
Kaminecke
Gästeraum
Gästeraum
Gästeraum
Gästeraum
Gästeraum
Küche
Küche
Küche
Küche
CAM04294G0-PR0021-STILL036
Küche
Toilette Gastronomie
Toilette Gastronomie
Wintergarten
Außenbereich
Außenbereich
Außenbereich
Außenbereich
Außenbereich
Flur EG
Treppe EG
Zimmer
Zimmer
Bad Zimmer
Zimmer
Bad
Zimmer
Bad Zimmer
Zimmer
Bad Zimmer
Bad
Bad
Bad
Heizung
Seitenansicht alt
Hinteransicht alt
Ansicht Ecke alt
Luftaufnahme 1
Luftaufnahme 2
Luftaufnahme 3
Luftaufnahme 4
Mikrolage
Makrolage
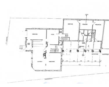
EG
1. OG
Dachgeschoss