Exposé
Objektart:
Wohnung
» Terrassen
» Kauf
Standort: Wohnung »
Deutschland » Sachsen » Leipzig, Stadt (Kreis) » Leipzig
Stadtidyll mit Stil – 3-Zimmer-Wohnung mit Dachterrasse im Gartenhaus
Visualisierung
Angeboten von:
Marko Künne Immobilien
Käthe-Kollwitz-Str. 58c
04109 Leipzig
Deutschland
Telefon:+49(0)341-4429566
Fax:+49(0)341-2253930
www.kuenne-immobilien.de
| Telefon: | 0341 442 9566 |
| Fax: | 0341 2253930 |
Das Wichtigste auf einen Blick:
| Objektnummer: | 9211302 |
Preise
| Kaufpreis | 734.184 € |
| Nebenkosten | keine Angabe |
| Kaufpreis pro m² | 5400 € |
Flächen
| Wohnfläche | 135,96 m² |
Objekt Adresse
04299 Leipzig
- Sachsen
Sonstige Angaben
| Zimmer | 3 |
| Verfügbar ab | keine Angabe |
| Bad | 2 |
| Anzahl der Etagen im Haus | 5 |
| Inserat befindet sich im Stockwerk | 1 |
| Bad | 2 |
| Bad | Dusche, Wanne |
| Boden | Fliesen, Parkett |
| Balkone | 1 |
| Fahrstuhl | Ja |
| Keller | Ja |
| Energieausweistyp | Bedarfsausweis |
| Energieeffizienzklasse | A_PLUS |
Objektbeschreibung
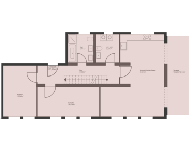
Diese exklusive 3-Zimmer-Wohnung im Hinterhaus in Leipzig-Stötteritz überzeugt mit durchdachtem Grundriss, hochwertigen Ausstattungsdetails und ruhiger Gartenlage.
Auf rund 136 m² Wohnfläche eröffnet sich ein modernes Wohnkonzept mit großzügigem Wohn-/Essbereich (ca. 37 m²), direktem Terrassenzugang (ca. 15 m²), zwei geräumigen Schlafzimmern, einem stilvollen Hauptbad mit Wanne und Dusche sowie einem separaten Gäste-WC.
Ein Hauswirtschaftsraum sorgt für Ordnung und Funktionalität im Alltag.
Das absolute Highlight: Die knapp 52 m² große Dachterrasse – ein echtes Plus an Lebensqualität in urbaner Lage.
Wählen Sie für die Ausstattung aus einer bewusst reduzierten, aber sehr hochwertigen Auswahl an Materialien für Wand und Boden – perfekt abgestimmt auf ein modernes, elegantes Wohngefühl.
Ein Tiefgaragenstellplatz ist auf Wunsch für 25.000 € erhältlich.
Das Gebäude wird nach dem Standard eines Energieeffizienzhauses 40 EE errichtet und erfüllt somit höchste Anforderungen an nachhaltiges Bauen.
Die Versorgung mit Wärme erfolgt über eine umweltfreundliche Luftwärmepumpe, unterstützt durch eine leistungsstarke Photovoltaikanlage auf dem Dach.
So profitieren künftige Bewohner von niedrigen Energiekosten und einem zukunftssicheren Energiekonzept.
Alle weiteren Informationen hierzu erhalten sie auf Anfrage von unseren Immobilienberatern.
" frisch, engagiert, solide "
Die Künne Immobilien Gruppe ist professioneller Dienstleister der Immobilienbranche und steht Ihnen in den Bereichen Projektentwicklung, Verkauf, Vermietung, Verwaltung und Facility Management zur Verfügung.
Für weitere Informationen und Einblicke besuchen Sie unsere Homepage: www.kuenne-gruppe.de Sie wollen Ihre Immobilie verkaufen? Egal ob Mehrfamilien- oder Einfamilienhaus, Eigentumswohnung, Grundstück oder Neubau- bzw. Bauträgerprojekt. Wir vermitteln kompetent, transparent und zügig Ihre Immobilie, bundesweit.
Auf rund 136 m² Wohnfläche eröffnet sich ein modernes Wohnkonzept mit großzügigem Wohn-/Essbereich (ca. 37 m²), direktem Terrassenzugang (ca. 15 m²), zwei geräumigen Schlafzimmern, einem stilvollen Hauptbad mit Wanne und Dusche sowie einem separaten Gäste-WC.
Ein Hauswirtschaftsraum sorgt für Ordnung und Funktionalität im Alltag.
Das absolute Highlight: Die knapp 52 m² große Dachterrasse – ein echtes Plus an Lebensqualität in urbaner Lage.
Wählen Sie für die Ausstattung aus einer bewusst reduzierten, aber sehr hochwertigen Auswahl an Materialien für Wand und Boden – perfekt abgestimmt auf ein modernes, elegantes Wohngefühl.
Ein Tiefgaragenstellplatz ist auf Wunsch für 25.000 € erhältlich.
Das Gebäude wird nach dem Standard eines Energieeffizienzhauses 40 EE errichtet und erfüllt somit höchste Anforderungen an nachhaltiges Bauen.
Die Versorgung mit Wärme erfolgt über eine umweltfreundliche Luftwärmepumpe, unterstützt durch eine leistungsstarke Photovoltaikanlage auf dem Dach.
So profitieren künftige Bewohner von niedrigen Energiekosten und einem zukunftssicheren Energiekonzept.
Alle weiteren Informationen hierzu erhalten sie auf Anfrage von unseren Immobilienberatern.
" frisch, engagiert, solide "
Die Künne Immobilien Gruppe ist professioneller Dienstleister der Immobilienbranche und steht Ihnen in den Bereichen Projektentwicklung, Verkauf, Vermietung, Verwaltung und Facility Management zur Verfügung.
Für weitere Informationen und Einblicke besuchen Sie unsere Homepage: www.kuenne-gruppe.de Sie wollen Ihre Immobilie verkaufen? Egal ob Mehrfamilien- oder Einfamilienhaus, Eigentumswohnung, Grundstück oder Neubau- bzw. Bauträgerprojekt. Wir vermitteln kompetent, transparent und zügig Ihre Immobilie, bundesweit.
Lage des Objektes
Stadtteil Stötteritz liegt im südöstlichen Teil von Leipzig, einem der grünsten und beliebtesten Wohngebiete Leipzigs. Die direkte Umgebung ist geprägt von einer gewachsenen, ruhigen Wohnstruktur mit gepflegten Alt- und Neubauten, großzügigen Grünflächen sowie einer guten sozialen Infrastruktur.
Einkaufsmöglichkeiten, Schulen, Kitas und medizinische Einrichtungen befinden sich in fußläufiger Entfernung. Auch das nahegelegene Völkerschlachtdenkmal, der Friedenspark sowie der Leipziger Auwald laden zu Freizeitaktivitäten, Spaziergängen und sportlicher Betätigung im Grünen ein.
Durch die gute Anbindung an den öffentlichen Nahverkehr (Straßenbahn und S-Bahn) sowie die Nähe zur B2 ist das Leipziger Stadtzentrum in wenigen Minuten erreichbar. Auch die Universität Leipzig sowie wichtige Wirtschaftsstandorte sind bequem erreichbar – ideal für Berufstätige, Studierende und Familien gleichermaßen.
Die Kombination aus urbanem Flair, naturnahem Wohnen und hervorragender Infrastruktur macht diese Lage besonders attraktiv – sowohl zum Eigennutz als auch als Kapitalanlage.
Einkaufsmöglichkeiten, Schulen, Kitas und medizinische Einrichtungen befinden sich in fußläufiger Entfernung. Auch das nahegelegene Völkerschlachtdenkmal, der Friedenspark sowie der Leipziger Auwald laden zu Freizeitaktivitäten, Spaziergängen und sportlicher Betätigung im Grünen ein.
Durch die gute Anbindung an den öffentlichen Nahverkehr (Straßenbahn und S-Bahn) sowie die Nähe zur B2 ist das Leipziger Stadtzentrum in wenigen Minuten erreichbar. Auch die Universität Leipzig sowie wichtige Wirtschaftsstandorte sind bequem erreichbar – ideal für Berufstätige, Studierende und Familien gleichermaßen.
Die Kombination aus urbanem Flair, naturnahem Wohnen und hervorragender Infrastruktur macht diese Lage besonders attraktiv – sowohl zum Eigennutz als auch als Kapitalanlage.
Sonstige Informationen
Alle Angaben sind ohne Gewähr und basieren ausschließlich auf Informationen, die uns von unserem Auftraggeber zur Verfügung gestellt wurden. Wir übernehmen keine Gewähr für die Vollständigkeit, Richtigkeit und Aktualität dieser Angaben.
Visualisierung
Visualisierung
Visualisierung
Visualisierung
WE-1-10 HH
WE-1-10-Dachterrasse