Exposé
Objektart:
Haus
» Einfamilienhaus
» Kauf
Standort: Haus »
Deutschland » Bayern » Passau (Kreis) » Hutthurm
Einfamilientraum mit großzügigem Grundstück und Fernblick
Das Wichtigste auf einen Blick:
| Objektnummer: | 9208530 |
Preise
| Kaufpreis | 440.000 € |
| Nebenkosten | keine Angabe |
Flächen
| Wohnfläche | 160 m² |
| Grundstücksfläche | 940 m² |
| Maklerprovision | Das Grundstück ist Provisionsfrei von Privat. |
Objekt Adresse
94116 Hutthurm
Sonstige Angaben
| Zimmer | 5 |
| Verfügbar ab | keine Angabe |
| Bad | 2 |
| Anzahl der Etagen im Haus | 2 |
| Küche | Offene Küche |
| Bad | 2 |
| Bad | Dusche, Wanne, Fenster |
| Energieausweistyp | Bedarfsausweis |
| Energietyp | KfW-40 |
| Endenergiebedarf | 14.00 kWh/(m²*a) |
| Heizungsart | Fußbodenheizung |
| Wesentlicher Energieträger | Strom |
| Energieträger/Befeuerung | Luft-Wärme-Pumpe |
Objektbeschreibung
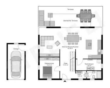
Willkommen in Ihrem zukünftigen Traumhaus in Hutthurm, einem idyllischen Stadtrandgebiet, das Ihnen ein harmonisches Wohngefühl bietet. Dieses projektierte Einfamilienhaus mit einer großzügigen Wohnfläche von 160 m² auf einem weitläufigen Grundstück von 940 m² wird ganz nach Ihren individuellen Wünschen gestaltet. Es verfügt über 5 Zimmer, darunter 4 behagliche Schlafzimmer und 2 moderne Badezimmer, die mit Dusche, Wanne und Fenster ausgestattet sind, sowie ein zusätzliches Gäste-WC. Die durchdachte Raumaufteilung auf 2 Etagen sorgt für ein offenes, lichtdurchflutetes Wohnambiente. Lassen Sie sich von der Möglichkeit inspirieren, Ihr Eigenheim nach Ihren Vorstellungen zu gestalten! Das STREIF-Baukonzept garantiert Ihnen eine schnelle und effiziente Umsetzung, sodass Sie innerhalb weniger Monate in Ihr neues Zuhause einziehen können.
Ausstattung
Das Haus überzeugt durch eine gehobene Ausstattung, die höchsten Ansprüchen gerecht wird. Sie haben die Wahl der Bodenbeläge, die nicht nur optisch ansprechend sind, sondern auch individuellen Komfort bieten. Ob edles Parkett, pflegeleichte Fliesen oder gemütlicher Teppich - die Entscheidung liegt ganz bei Ihnen. Die moderne Wärmepumpe sorgt für eine effiziente und umweltfreundliche Beheizung des Hauses, die nicht nur Ihre Energiekosten senkt, sondern auch einen Beitrag zum Klimaschutz leistet. Zudem entspricht der Energietyp dem KFW40 Standard, was Ihnen langfristig niedrigere Energiekosten sichert.
Lage des Objektes
Hutthurm bietet Ihnen eine hervorragende Infrastruktur, die keine Wünsche offenlässt. In unmittelbarer Nähe finden Sie eine Apotheke, den Bahnhof, Busverbindungen, Einkaufsmöglichkeiten sowie ein Fitnessstudio. Familien schätzen die Nähe zu Grundschule und Kindergarten. Für Freizeitaktivitäten stehen Ihnen ein Reitplatz, zahlreiche Spielplätze und der nahegelegene Wald zur Verfügung. Genießen Sie die ruhige Lage und die naturnahe Umgebung, die Ihnen einen hohen Lebensstandard ermöglicht.
Sonstige Informationen
Bei STREIF haben Sie die Wahl zwischen 4 verschiedenen Ausbaustufen, wobei dieses Objekt in der Ausbaustufe 4 - Schlüsselfertig angeboten wird. Diese Stufe beinhaltet Wand- und Bodenbeläge sowie Zimmertüren und ermöglicht es Ihnen, den Bauprozess optimal zu nutzen, indem Sie alles aus einer Hand erhalten. Vor dem Bau erfolgt eine umfassende Beratung, um Ihre Wünsche zu ermitteln und eine maßgeschneiderte Planung zu gewährleisten. Erst wenn Sie mit dem Grundriss vollkommen zufrieden sind, beginnen wir mit der Umsetzung.