Exposé
Objektart:
Wohnung
» Etage
» Miete
Standort: Wohnung »
Deutschland » Mecklenburg-Vorpommern » Rostock (Kreis) » Graal-Müritz
Ihr eigenes Haus direkt an der OSTSEE! Mit Wintergarten, Einbauküche und Einliegerwohnung!
Ostseestrand
Angeboten von:
Marko Künne Immobilien
Käthe-Kollwitz-Str. 58c
04109 Leipzig
Deutschland
Telefon:+49(0)341-4429566
Fax:+49(0)341-2253930
www.kuenne-immobilien.de
Ansprechpartner/in
Marko Künne Immobilien
Markus Richter
| Telefon: | 0176 76706734 |
| Fax: | 0341 2253930 |
Das Wichtigste auf einen Blick:
| Objektnummer: | 9199587 |
Preise
| Warmmiete | 2.700 € |
| Nebenkosten | keine Angabe |
| Heizkosten enthalten | Ja |
| Kaution | 2 Mieten |
Flächen
| Wohnfläche | 132,11 m² |
| Grundstücksfläche | 1.037 m² |
Objekt Adresse
Friedhofsweg 3
18181 Graal-Müritz
- Mecklenburg-Vorpommern
Sonstige Angaben
| Baujahr | 1931 |
| Zimmer | 8 |
| Verfügbar ab | sofort |
| Garage/Stellplätze | 1 |
| Anzahl der Etagen im Haus | 3 |
| Inserat befindet sich im Stockwerk | 0 |
| Küche | Einbauküche |
| Bad | Dusche |
| Boden | Fliesen, Laminat |
| Garten | Ja |
| Garage/Stellplätze | 1 |
| Keller | Ja |
| Energieausweistyp | Bedarfsausweis |
| Ausstellungsdatum | 14. 05. 2021 |
| Gültig bis | 13.05.2031 |
| Energieeffizienzklasse | H |
| Endenergiebedarf | 265.5 kWh/(m²*a) |
| Heizungsart | Zentralheizung |
| Wesentlicher Energieträger | Erdgas Leicht |
Objektbeschreibung
Brauchen Sie eine Pause vom stressigen Alltag oder sehnen Sie sich einfach nach ein bisschen Erholung direkt am Strand?
Sollte eher die gewerbliche Anmietung im Fokus stehen ist dies selbstverständlich auch zu realisieren. Ob für
Ihre Hotelmitarbeiter, Pflegekräfte oder anderes Personal, wir bieten die passende Unterkunft.
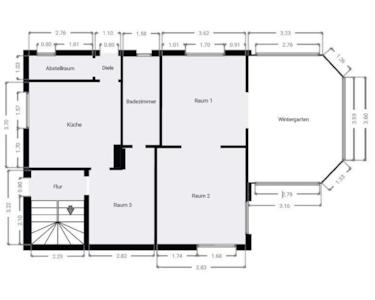
Bei diesem Vermietungsangebot handelt es sich um ein Einfamilienhaus mit Wintergarten im wunderschönen Graal-Müritz direkt an der Ostsee. Das Haus enthält zudem eine weitere, separate Wohneinheit im Obergeschoss. Insgesamt beträgt die Gesamtwohnfläche ca. 132m² verteilt auf 8 Zimmer und 3 Bäder, zwei davon mit Dusche oder Wanne.
Das insgesamt idyllisch gelegene Objekt ist umgeben von Wald und befindet sich nur ca. 10 min fußläufig vom Ostseestrand.
Zusammengefasst:
- komplettes Haus zur Miete
- nur 10 Minuten Fußweg vom Ostseestrand
- ca. 132m² Wohnfläche
- 3 Bäder, Dusche und Wanne
- 2 Küchen
- 8 Zimmer
- 3 Etagen
- Kellergeschoss vorhanden
- moderner Wintergarten mit Gartenblick
- Stellplatz / Garage
- ruhige Lage
Bitte beachten Sie, dass es sich um eine befristete Vermietung handelt (vorerst 3 Jahre max. mit Option).
Für weitere Fragen stehen wir Ihnen jederzeit gern zur Verfügung!
" frisch, engagiert, solide "
Die Künne Immobilien Gruppe ist professioneller Dienstleister der Immobilienbranche und steht Ihnen in den Bereichen Projektentwicklung, Verkauf, Vermietung, Verwaltung und Facility Management zur Verfügung.
Für weitere Informationen und Einblicke besuchen Sie unsere Homepage: www.kuenne-gruppe.de Sie wollen Ihre Immobilie verkaufen? Egal ob Mehrfamilien- oder Einfamilienhaus, Eigentumswohnung, Grundstück oder Neubau- bzw. Bauträgerprojekt. Wir vermitteln kompetent, transparent und zügig Ihre Immobilie, bundesweit.
Sollte eher die gewerbliche Anmietung im Fokus stehen ist dies selbstverständlich auch zu realisieren. Ob für
Ihre Hotelmitarbeiter, Pflegekräfte oder anderes Personal, wir bieten die passende Unterkunft.
Bei diesem Vermietungsangebot handelt es sich um ein Einfamilienhaus mit Wintergarten im wunderschönen Graal-Müritz direkt an der Ostsee. Das Haus enthält zudem eine weitere, separate Wohneinheit im Obergeschoss. Insgesamt beträgt die Gesamtwohnfläche ca. 132m² verteilt auf 8 Zimmer und 3 Bäder, zwei davon mit Dusche oder Wanne.
Das insgesamt idyllisch gelegene Objekt ist umgeben von Wald und befindet sich nur ca. 10 min fußläufig vom Ostseestrand.
Zusammengefasst:
- komplettes Haus zur Miete
- nur 10 Minuten Fußweg vom Ostseestrand
- ca. 132m² Wohnfläche
- 3 Bäder, Dusche und Wanne
- 2 Küchen
- 8 Zimmer
- 3 Etagen
- Kellergeschoss vorhanden
- moderner Wintergarten mit Gartenblick
- Stellplatz / Garage
- ruhige Lage
Bitte beachten Sie, dass es sich um eine befristete Vermietung handelt (vorerst 3 Jahre max. mit Option).
Für weitere Fragen stehen wir Ihnen jederzeit gern zur Verfügung!
" frisch, engagiert, solide "
Die Künne Immobilien Gruppe ist professioneller Dienstleister der Immobilienbranche und steht Ihnen in den Bereichen Projektentwicklung, Verkauf, Vermietung, Verwaltung und Facility Management zur Verfügung.
Für weitere Informationen und Einblicke besuchen Sie unsere Homepage: www.kuenne-gruppe.de Sie wollen Ihre Immobilie verkaufen? Egal ob Mehrfamilien- oder Einfamilienhaus, Eigentumswohnung, Grundstück oder Neubau- bzw. Bauträgerprojekt. Wir vermitteln kompetent, transparent und zügig Ihre Immobilie, bundesweit.
Lage des Objektes
Das Seeheilbad Graal-Müritz ist mit rund 4.000 Einwohnern eine amtsfreie Gemeinde im Landkreis Rostock in Mecklenburg-Vorpommern und erstreckt sich über eine Länge von 5 Kilometern den Ostseestrand entlang. Der Ort ist gekennzeichnet durch die Rockstocker Heide, die idyllische Lage als Tor zum Darß und die Nähe zur Hansestadt Rockstock. Die Architektur wird wie in vielen anderen Kur- und Badeorten an der Ostseeküste durch zahlreiche Bauten im Stil der norddeutschen Bäderarchitektur geprägt. Graal-Müritz liegt an der Landesstraße L 22 zwischen Rostock und Ribnitz-Damgarten. Die nächstgelegene Autobahnanschlussstelle ist Rostock-Nord an der A 19. Der Bahnhof Graal-Müritz liegt an der Bahnstrecke Rövershagen–Graal-Müritz und wird von der Regionalbahnlinie RB 12 bedient.
Als Erholungsort bietet Graal-Müritz nicht nur eine attraktive Natur- und Küstenlandschaft, sondern auch diverse Freizeitaktivitäten in unmittelbarer Nähe.
Als Erholungsort bietet Graal-Müritz nicht nur eine attraktive Natur- und Küstenlandschaft, sondern auch diverse Freizeitaktivitäten in unmittelbarer Nähe.
Sonstige Informationen
Alle Angaben sind ohne Gewähr und basieren ausschließlich auf Informationen, die uns von unserem Auftraggeber zur Verfügung gestellt wurden. Wir übernehmen keine Gewähr für die Vollständig, Richtigkeit und Aktualität dieser Angaben
Karte Entfernung Strand
Frontansicht
Wohnzimmer EG
Wintergarten
Wintergarten
Wohnzimmer
Wohnzimmer EG
Wohnzimmer EG
Wohnzimmer 1.OG
Bad
Zweites Bad
Küche EG
Küche 1. OG
Schlafzimmer 1.OG
Schlafzimmer
Schlafzimmer
Treppenaufgang
Rückansicht
Gartenansicht Haus
Garten
Umgebung
Ostseestrand
Umgebungsplan
Grundriss EG
Grundriss 1.OG
Grundriss 2.OG
Grundriss Keller