Exposé
Objektart:
Haus
» Mehrfamilienhaus
» Kauf
Standort: Haus »
Deutschland » Bayern » Neustadt a.d.Waldnaab (Kreis) » Mantel
Wir bieten in Mantel ein kernsaniertes Mehrfamilienhaus mit hochwertiger Ausstattung!
Ansicht Hofseite
Das Wichtigste auf einen Blick:
| Objektnummer: | 9183214 |
Preise
| Kaufpreis | 1.000.000 € |
| Nebenkosten | keine Angabe |
Flächen
| Wohnfläche | 262 m² |
| Grundstücksfläche | 605 m² |
| Maklerprovision | 3,57 % inkl. gesetzl. MwSt. |
Objekt Adresse
92708 Mantel
Sonstige Angaben
| Baujahr | 1910 |
| Verfügbar ab | sofort |
| Garage/Stellplätze | 3 |
| Balkone | 2 |
| Terrassen | 1 |
| Garage/Stellplätze | 3 |
| Keller | Ja |
| Energieausweistyp | Bedarfsausweis |
| Gültig bis | 2035-07-22 |
| Baujahr (laut Energieausweis) | 1910 |
| Energieeffizienzklasse | A+ |
| Endenergiebedarf | 28.70 kWh/(m²*a) |
| Heizungsart | Zentralheizung |
Objektbeschreibung
Das Wohnhaus wurde im Ursprung 1910 erbaut, 1975 angebaut und aufgestockt, in den Jahren 2023 bis Mitte 2025 kernsaniert. Das Objekt bietet drei Wohnungen mit einer Wohnfläche von 262 m² und besticht mit klaren Linien. Die Grundstücksgröße beträgt 605 m².
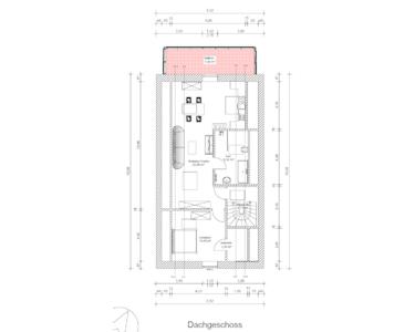
Beim Betreten des Hauses empfängt Sie ein einladender Flur, der Zugang zu den verschiedenen Wohneinheiten bietet. Die Wohnungen EG und 1. OG verfügen jeweils über knapp 100 m² Wohnfläche, das DG bietet 65 m² Wohnfläche.
Die Wohn- und Essbereiche mit integrierten Küchen sind hell und geräumig, mit großen Fenstern, die viel Tageslicht hereinlassen.
Die Schlafzimmer sind großzügig geschnitten und bieten viel Raum zur Entfaltung.
Ein besonderes Highlight bieten Terrasse und die Balkone, hier gibt´s Raum den Sommer nach draußen zu verlagern sowie zum Entspannen.
Die Bäder sind funktional gestaltet, ausgestattet mit Wanne, einer komfortablen Dusche sowie Waschbecken und WC.
Jede Partei erhält einen großen Kellerraum, es bietet zusätzlichen Stauraum und Funktionalität. Zusätzlich ist ein Wasch- und Trockenraum vorhanden.
Im Außenbereich befinden sich die Garagen.
Für die Wohnungen EG und OG gibt's hier ausreichend Platz für Fahrzeuge und Stellraum im ausgebauten Dachgeschoß.
Der Hof ist gepflastert und deshalb pflegeleicht zu händeln.
Ein Käufer hat die Möglichkeit ein günstiges KFW-Darlehen mit Tilgungszuschuss in Anspruch zu nehmen.
Rufen Sie uns an - wir beraten Sie gerne!
Beim Betreten des Hauses empfängt Sie ein einladender Flur, der Zugang zu den verschiedenen Wohneinheiten bietet. Die Wohnungen EG und 1. OG verfügen jeweils über knapp 100 m² Wohnfläche, das DG bietet 65 m² Wohnfläche.
Die Wohn- und Essbereiche mit integrierten Küchen sind hell und geräumig, mit großen Fenstern, die viel Tageslicht hereinlassen.
Die Schlafzimmer sind großzügig geschnitten und bieten viel Raum zur Entfaltung.
Ein besonderes Highlight bieten Terrasse und die Balkone, hier gibt´s Raum den Sommer nach draußen zu verlagern sowie zum Entspannen.
Die Bäder sind funktional gestaltet, ausgestattet mit Wanne, einer komfortablen Dusche sowie Waschbecken und WC.
Jede Partei erhält einen großen Kellerraum, es bietet zusätzlichen Stauraum und Funktionalität. Zusätzlich ist ein Wasch- und Trockenraum vorhanden.
Im Außenbereich befinden sich die Garagen.
Für die Wohnungen EG und OG gibt's hier ausreichend Platz für Fahrzeuge und Stellraum im ausgebauten Dachgeschoß.
Der Hof ist gepflastert und deshalb pflegeleicht zu händeln.
Ein Käufer hat die Möglichkeit ein günstiges KFW-Darlehen mit Tilgungszuschuss in Anspruch zu nehmen.
Rufen Sie uns an - wir beraten Sie gerne!
Ausstattung
- Mehrfamilienhaus mit 262 m² Wohnfläche
- Grundstücksfläche 605 m²
- Terrasse und Balkone
- Badezimmer mit Badewanne und Dusche
- Hochwertige Fliesen in Bad und Flur
- Vinylboden in Wohn- und Schlafbereichen
- Großzügiger Wohn-Essbereich
- Drei Garagen auf dem Grundstück
- Keller mit Waschkeller
- Gepflegtes Treppenhaus mit Fliesenbelag
- Große Fenster für viel Tageslicht
- Zentralheizung mit Wärmepumpe
- Ruhige Lage mit guter Anbindung
- Grundstücksfläche 605 m²
- Terrasse und Balkone
- Badezimmer mit Badewanne und Dusche
- Hochwertige Fliesen in Bad und Flur
- Vinylboden in Wohn- und Schlafbereichen
- Großzügiger Wohn-Essbereich
- Drei Garagen auf dem Grundstück
- Keller mit Waschkeller
- Gepflegtes Treppenhaus mit Fliesenbelag
- Große Fenster für viel Tageslicht
- Zentralheizung mit Wärmepumpe
- Ruhige Lage mit guter Anbindung
Lage des Objektes
Mantel, mit der Postleitzahl 92708, ist eine kleine Gemeinde in Bayern mit einer Einwohnerzahl von etwa 2.500 Personen. Die Gemeinde liegt in der Oberpfalz und bietet eine gute Anbindung an das Verkehrsnetz. Die Autobahn A93 ist in kurzer Zeit erreichbar und ermöglicht eine zügige Verbindung in Richtung Regensburg, das etwa 100 Kilometer entfernt liegt. Die Bundesstraße B22 verläuft ebenfalls in der Nähe und bietet eine direkte Verbindung zu umliegenden Städten.
Für Reisende ist der nächstgelegene größere Bahnhof in Weiden in der Oberpfalz, der etwa 10 Kilometer entfernt ist. Von dort aus bestehen regelmäßige Zugverbindungen in verschiedene Richtungen. Die Stadt München ist etwa 160 Kilometer entfernt und über die Autobahn gut erreichbar.
In Mantel selbst gibt es eine Grundschule sowie mehrere Kindergärten, die eine Betreuung und Bildung für die jüngsten Einwohner sicherstellen. Die medizinische Versorgung wird durch nahegelegene Arztpraxen gewährleistet, während das nächstgelegene Krankenhaus in Weiden in der Oberpfalz zu finden ist.
Für Reisende ist der nächstgelegene größere Bahnhof in Weiden in der Oberpfalz, der etwa 10 Kilometer entfernt ist. Von dort aus bestehen regelmäßige Zugverbindungen in verschiedene Richtungen. Die Stadt München ist etwa 160 Kilometer entfernt und über die Autobahn gut erreichbar.
In Mantel selbst gibt es eine Grundschule sowie mehrere Kindergärten, die eine Betreuung und Bildung für die jüngsten Einwohner sicherstellen. Die medizinische Versorgung wird durch nahegelegene Arztpraxen gewährleistet, während das nächstgelegene Krankenhaus in Weiden in der Oberpfalz zu finden ist.
Grundriss EG
Grundriss OG
Grundriss DG
Grundriss KG