Exposé
Objektart:
Büro / Praxen
» Bueroflaeche
» Miete
Standort: Büro / Praxen »
Deutschland » Hamburg » Hamburg, Freie und Hansestadt (Kreis) » Hamburg
KLAUS MEYER IMMOBILIEN - PROVISIONSFREI - 1a Lage in der Fußgängerzone
repräsentativer Eingang
Das Wichtigste auf einen Blick:
| Objektnummer: | 9179643 |
Preise
| Kaltmiete | 35.132,5 € |
| Warmmiete | 41.112,5 € |
| Nebenkosten | 5980 € |
| Heizkosten enthalten | Ja |
| Mietpreis pro m² | 23,5 € |
Flächen
| Bürofläche | 1.495 m² |
| Fläche teilbar ab | 382 m² |
Objekt Adresse
20095 Hamburg
Sonstige Angaben
| Baujahr | 1910 |
| Verfügbar ab | nach Vereinbarung |
| Inserat befindet sich im Stockwerk | 2 |
| Fahrstuhl | Ja |
| Energieausweistyp | Verbrauch |
| Gültig bis | 2030-05-17 |
| Baujahr (laut Energieausweis) | 2010 |
| Heizungsart | Zentralheizung |
| Wesentlicher Energieträger | Fern |
Objektbeschreibung
Das vom Architekten Fritz Höger geplante Gebäude ist ein liebevoll revitalisiertes Kontorhaus, das in den Jahren 1911 / 12 erbaut wurde und bis zur heutigen Zeit mehrfach modernisiert bzw. saniert wurde.
Das achtgeschossige Gebäude verfügt über eine Gesamtmietfläche von ca. 13.536 m². Die Büroetagen werden über einen sehr repräsentativen Eingangsbereich und 2 Personenaufzüge erschlossen.
Flächen und Preise:
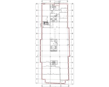
2.OG ca. 1.495,00 m²
teilbar in:
ca. 382 m²
ca. 416 m²
ca. 697,5 m²
die jeweils benachbarten Flächen können zusammengelegt / verbunden werden.
Miete ab ab € 23,50 pro m²
4. OG ca. 463,93 m² ab € 23,50 pro m²
Das achtgeschossige Gebäude verfügt über eine Gesamtmietfläche von ca. 13.536 m². Die Büroetagen werden über einen sehr repräsentativen Eingangsbereich und 2 Personenaufzüge erschlossen.
Flächen und Preise:
2.OG ca. 1.495,00 m²
teilbar in:
ca. 382 m²
ca. 416 m²
ca. 697,5 m²
die jeweils benachbarten Flächen können zusammengelegt / verbunden werden.
Miete ab ab € 23,50 pro m²
4. OG ca. 463,93 m² ab € 23,50 pro m²
Lage des Objektes
Das sanierte Gebäude befindet sich im Herzen Hamburgs, in der Mönckebergstraße, der traditionsreichsten und bekanntesten Einkaufsstraße. Zusammen mit der Einkaufsstraße Spitalerstraße, die auf die Möckebergstraße zuläuft, bildet sie den Haupteinkaufsbereich in der Innenstadt Hamburgs.
Die Möckebergstraße, eine breite Straße, mit breitem Fußgängerbereich, verbindet den Hamburger Hauptbahnhof und den Rathausmarkt. Zahlreiche Restaurants und Geschäfte befinden sich direkt vor der Haustür.
Der Hamburger Hauptbahnhof mit allen S- Bahnen sowie der Fernbahn befindet sich in 400m Entfernung.Der U-bahnhof Mönckebergstraße ( U3) liegt direkt vor der Haustür. Die Buslinien 4, 5, 6, 31, 34, 35, 36, 37 und 109 befinden sich fußläufig am Gerhardt-Hauptmann-Platz ca. 170m entfernt. Zum Hamburger Airport sind es ca. 10,9 km.
Die Möckebergstraße, eine breite Straße, mit breitem Fußgängerbereich, verbindet den Hamburger Hauptbahnhof und den Rathausmarkt. Zahlreiche Restaurants und Geschäfte befinden sich direkt vor der Haustür.
Der Hamburger Hauptbahnhof mit allen S- Bahnen sowie der Fernbahn befindet sich in 400m Entfernung.Der U-bahnhof Mönckebergstraße ( U3) liegt direkt vor der Haustür. Die Buslinien 4, 5, 6, 31, 34, 35, 36, 37 und 109 befinden sich fußläufig am Gerhardt-Hauptmann-Platz ca. 170m entfernt. Zum Hamburger Airport sind es ca. 10,9 km.
Sonstige Informationen
Die Provisionsfreiheit dieser Vermietung setzt einen Mietvertragsabschluss mit einer Mindest-Vertragslaufzeit von 5 Jahren voraus.
Für den Fall der kurzfristigeren Vertragslaufzeit wird dem Mieter eine Courtage in Höhe von 3,57 Brutto-Monatsmieten inkl. 19% Umsatzsteuer berechnet.
Alle Preise verstehen sich zzgl. 19% Umsatzsteuer.
Irrtum, Änderungen und Zwischenvermietung bleiben ausdrücklich vorbehalten.
Datenschutzhinweise Kontaktformular:
Mit dem Kontaktformular können Sie an uns eine Anfrage zu den Immobilien richten. Die von Ihnen eingegebenen Daten werden über unseren Providerservice per E-Mail an uns weitergeleitet. Die im Rahmen dieser Anfrage erhobenen personenbezogenen Daten werden nur zur Vertragsanbahnung und Bearbeitung Ihrer Anfragen genutzt und danach umgehend, spätestens nach 60 Tage der Erhebung, gelöscht
Wir verarbeiten personenbezogene Daten im Einklang mit den Bestimmungen der Europäischen Datenschutz-Grundverordnung (DS-GVO) und dem Bundesdatenschutzgesetz (BDSG).
Verantwortlicher für den Datenschutz von Klaus Meyer Immobilien: Herr Klaus Meyer, Marmstorfer Weg 52, 21077 Hamburg - E-Mail: info@klausmeyerimmobilien.de
IHR FLÄCHENGESUCH:
Sie haben noch nicht das passende Objekt gefunden? Bitte füllen Sie alle notwendigen Kontaktdaten von Ihnen in der Anfrage aus, sodass wir diese schnellstmöglich bearbeiten können.
Wir freuen uns aber auch auf Ihren Anruf um gemeinschaftlich Ihr Anforderungsprofil im Detail aufzunehmen. Sicherlich finden wir auch IHR Wunschobjekt!
Ansicht
im Eingang
im Eingang
Treppenhaus
große Aufzüge
2. OG
2. OG Teilung
4. OG