Exposé
Objektart:
Haus
» Doppelhaushaelfte
» Kauf
Doppelhaushälfte, Vodice, Dalmatien
Angeboten von:
Bilan-agencija
Ive Cace 1
22211 Vodice
Kroatien
Telefon:00385 (0) 98266440
Ansprechpartner/in
Bilan nekretnine| Mobil | +385 (0)98 266 440 |
Das Wichtigste auf einen Blick:
| Objektnummer: | 9164108 |
Preise
| Kaufpreis | 320.000 € |
| Nebenkosten | keine Angabe |
Flächen
| Gesamtfläche | 91 m² |
| Grundstücksfläche | 70 m² |
Objekt Adresse
22211 Vodice
- Dalmatien-Sibenik [Sibensko-Kninska]
Sonstige Angaben
| Baujahr | 2025 |
| Zimmer | 4 |
| Verfügbar ab | keine Angabe |
| Bad | 2 |
| Anzahl der Etagen im Haus | 0 |
| Bad | 2 |
Objektbeschreibung
Doppelhaushälfte, Vodice, Dalmatien
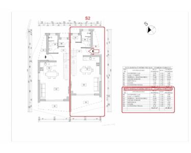
In Vodice, in ruhiger Lage, verkaufen wir ein Doppelhaus. Es besteht aus Erdgeschoss und Obergeschoss.
Im Erdgeschoss der Haushälfte S2 befinden sich Eingang, Treppenhaus, Kochessbereich, Wohnzimmer, Bad, Abstellraum und Ausgang zu einer überdachten Terrasse.
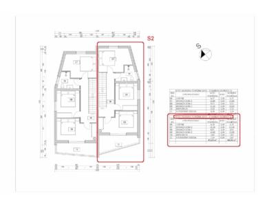
Im Obergeschoss befinden sich drei Schlafzimmer, Flur, Bad und überdachte Terrasse. Die Wohnfläche beträgt 91,04 m².
Zu dieser Haushälfte gehört außerdem ein eingezäunter Hof mit eigenem Garten und zwei Parkplätzen.
Die Lage ist ausgezeichnet, in der Nähe von Geschäften, öffentlichen Verkehrsmitteln, 600 m vom Markt und dem Zentrum entfernt.
Das Gebäude ist hochwertig gebaut. Es wird mit Inverter-Klimaanlagen, hochwertigen Türen und Fenstern mit elektrischen Rollläden und Insektenschutz sowie hochwertiger Keramik und Badezimmerausstattung ausgestattet. Die Fertigstellung ist für Frühjahr 2026 geplant.
Der Preis für jede Haushälfte beträgt 320.000 Euro.
ID CODE: YU-S2
In Vodice, in ruhiger Lage, verkaufen wir ein Doppelhaus. Es besteht aus Erdgeschoss und Obergeschoss.
Im Erdgeschoss der Haushälfte S2 befinden sich Eingang, Treppenhaus, Kochessbereich, Wohnzimmer, Bad, Abstellraum und Ausgang zu einer überdachten Terrasse.
Im Obergeschoss befinden sich drei Schlafzimmer, Flur, Bad und überdachte Terrasse. Die Wohnfläche beträgt 91,04 m².
Zu dieser Haushälfte gehört außerdem ein eingezäunter Hof mit eigenem Garten und zwei Parkplätzen.
Die Lage ist ausgezeichnet, in der Nähe von Geschäften, öffentlichen Verkehrsmitteln, 600 m vom Markt und dem Zentrum entfernt.
Das Gebäude ist hochwertig gebaut. Es wird mit Inverter-Klimaanlagen, hochwertigen Türen und Fenstern mit elektrischen Rollläden und Insektenschutz sowie hochwertiger Keramik und Badezimmerausstattung ausgestattet. Die Fertigstellung ist für Frühjahr 2026 geplant.
Der Preis für jede Haushälfte beträgt 320.000 Euro.
ID CODE: YU-S2