Exposé
Objektart:
Haus
» Doppelhaushaelfte
» Kauf
Standort: Haus »
Deutschland » Bayern » Rosenheim (Kreis) » Bernau am Chiemsee
2 Doppelhaushälften von STREIF im Niedrigenergiestandart KfW 40
DH (2)
Das Wichtigste auf einen Blick:
| Objektnummer: | 9163165 |
Preise
| Kaufpreis | 808.000 € |
| Nebenkosten | keine Angabe |
Flächen
| Wohnfläche | 130 m² |
| Grundstücksfläche | 435 m² |
Objekt Adresse
83233 Bernau am Chiemsee
Sonstige Angaben
| Zimmer | 5 |
| Verfügbar ab | keine Angabe |
| Bad | 1 |
| Bad | 1 |
Objektbeschreibung
Willkommen in Ihrem neuen Traumhaus in Bernau am Chiemsee! Diese moderne Doppelhaushälfte bietet Ihnen auf einer großzügigen Wohnfläche von 130 m² alles, was das Herz begehrt. Mit 5 Zimmern, darunter 3 Schlafzimmer, einem Badezimmer und einem zusätzlichen Gäste-WC, ist dieses Projekt perfekt für Paare und Familien, die komfortables und gleichzeitig effizientes Wohnen suchen. Die durchdachten Raumkonzepte ermöglichen es, auch auf kleineren Grundstücken von 435 m² großzügig zu leben. Lassen Sie sich von der Möglichkeit inspirieren, mit mehreren Generationen unter einem Dach zu wohnen und genießen Sie die Vorteile der STREIF-Bauweise, die Ihnen nicht nur Zeit, sondern auch Geld spart. Unsere Doppelhaushälften und Generationenhäuser sind so konzipiert, dass sie den steigenden Grundstückspreisen in den Städten gerecht werden und gleichzeitig ein hohes Maß an Wohnkomfort bieten. Jeder Fertighausneubau bei STREIF ist zudem ein Energieeffizienzhaus KfW 40 EE, was Ihnen nicht nur eine hohe Energieeffizienz, sondern auch eine hervorragende Schallisolierung garantiert. Genießen Sie ruhiges Wohnen, auch in unmittelbarer Nachbarschaft zu Freunden oder Familienmitgliedern!
Ausstattung
Das Doppelhaus wird in der Ausbaustufe 4 - Schlüsselfertig angeboten. Dies bedeutet, dass sämtliche Wand- und Bodenbeläge sowie Zimmertüren bereits integriert sind. Sie profitieren von einem durchgängig hohen Qualitätsstandard und zeitgemäßen Materialien. Durch die Schlüsselfertigkeit haben Sie alles aus einer Hand und können die Vorteile der STREIF-Bauweise in vollem Umfang nutzen. Ab einem Preis von 381.371 EUR können Sie sich Ihr neues Zuhause realisieren.
Lage des Objektes
Bernau am Chiemsee ist ein wunderschöner Ort, der eine ideale Kombination aus Natur und Infrastruktur bietet. Die Lage in der Ortslage sorgt dafür, dass Sie sowohl die Ruhe der Natur als auch die Annehmlichkeiten des städtischen Lebens genießen können. Einkaufsmöglichkeiten, Schulen und Freizeitangebote sind in unmittelbarer Nähe verfügbar, was die Attraktivität dieses Standorts weiter erhöht. Zudem profitieren Sie von den zahlreichen Freizeitmöglichkeiten rund um den Chiemsee, ideal für aktive Familien und Naturliebhaber.
Sonstige Informationen
Bei STREIF haben Sie die Wahl zwischen 4 verschiedenen Ausbaustufen, sodass Sie entsprechend Ihrer Wünsche und finanziellen Möglichkeiten entscheiden können. Die Eigenleistung, die Sie in Form einer Muskelhypothek einbringen können, spart bares Geld und ermöglicht Ihnen niedrigere Kredite oder verkürzte Kreditlaufzeiten. Die Standard-Ausbaustufe Fast-Fertig Plus sorgt für ein hohes Maß an Flexibilität und Anpassungsfähigkeit an Ihre individuellen Bedürfnisse. Lassen Sie sich von unseren verschiedenen Dienstleistungspaketen überzeugen, die Ihnen den Bauprozess so angenehm wie möglich gestalten.
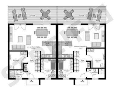
mögliches EG (Vorschlag)
mögliches DG (Vorschlag)
mögliche Einrichtung
mögliche Einrichtung
mögliche Einrichtung
mögliche Einrichtung
mögliche Einrichtung
mögliche Einrichtung
Streif Haus- ausgezeichnet
Streif Haus- ausgezeichnet
Auszeichnung-NH