Exposé
Objektart:
Haus
» Mehrfamilienhaus
» Kauf
Standort: Haus »
Deutschland » Sachsen-Anhalt » Salzlandkreis (Kreis) » Biere
6,77 % IST Rendite - Kauf vom Eigentümer - MFH mit 9 Wohnungen
Hausansicht
Angeboten von:
IPC Immobilien
Stolper Str. 4c
22149 Hamburg
Deutschland
Telefon:040/ 22693140
www.ipc-immobilien.de
Ansprechpartner/in
IPC Immobilien
Firma
| Telefon: | 00494022693140 |
Das Wichtigste auf einen Blick:
| Objektnummer: | 9162316 |
Preise
| Kaufpreis | 649.000 € |
| Nebenkosten | keine Angabe |
Flächen
| Wohnfläche | 683 m² |
| Nutzfläche | 683 m² |
| Grundstücksfläche | 1.140 m² |
Objekt Adresse
39221 Biere
Sonstige Angaben
| Baujahr | 1996 |
| Zimmer | 18 |
| Verfügbar ab | keine Angabe |
| Bad | 9 |
| Anzahl der Etagen im Haus | 2 |
| Bad | 9 |
| Energieausweistyp | Verbrauch |
| Gültig bis | 2028-03-27 |
| Baujahr (laut Energieausweis) | 1996 |
| Energieeffizienzklasse | D |
| Energieverbrauchkennwert | 118.00 kWh/(m²*a) |
| Heizungsart | Zentralheizung |
| Wesentlicher Energieträger | Gas |
| Energieträger/Befeuerung | Gas |
Objektbeschreibung
In einer ruhigen Lage präsentieren wir Ihnen diese charmante Wohnanlage mit ingesamt 9 Wohnungen, 9 PKW Stellplätzen und Vollkeller. Erbaut wurde die Wohnanlage 1995/96 in solider, massiver Bauweise.
Aktuell ist die Wohnanlage komplett vermietet, alle Wohnungen verfügen über ansprechende Grundrisse, Balkone oder Terrassen.
Beheizt wird die Wohnanlage zentral über einen Wärmeversorgungsvertrag mt der Erdgas Mittelsachsen GmbH.
Bei konkretem Interesse lassen Sie uns gerne über die Details sprechen.
Aktuell ist die Wohnanlage komplett vermietet, alle Wohnungen verfügen über ansprechende Grundrisse, Balkone oder Terrassen.
Beheizt wird die Wohnanlage zentral über einen Wärmeversorgungsvertrag mt der Erdgas Mittelsachsen GmbH.
Bei konkretem Interesse lassen Sie uns gerne über die Details sprechen.
Ausstattung
+ 9 Wohnungen
+ 9 PKW Stellplätze
+ Laminatboden/ Helle Bäder
+ Vollkeller
+ Balkone oder Terrassen
+ Tolle Lage
+ nach WEG aufgeteilt
+ aktuelle Nettomieteinnahme 43.944,00 € p.a.
Pflichtangaben gem. EnEV
Energieausweistyp : Verbrauchsausweis
Hauptenergieträger : Gas
Baujahr gem. Energieausweis : 1996
Endenergiebedarf : 118 kWh/(m2*a)
Warmwasser enthalten : ja
Energieausweis gültig bis : 27.03..2028
Energieeffizienzklasse: D
+ 9 PKW Stellplätze
+ Laminatboden/ Helle Bäder
+ Vollkeller
+ Balkone oder Terrassen
+ Tolle Lage
+ nach WEG aufgeteilt
+ aktuelle Nettomieteinnahme 43.944,00 € p.a.
Pflichtangaben gem. EnEV
Energieausweistyp : Verbrauchsausweis
Hauptenergieträger : Gas
Baujahr gem. Energieausweis : 1996
Endenergiebedarf : 118 kWh/(m2*a)
Warmwasser enthalten : ja
Energieausweis gültig bis : 27.03..2028
Energieeffizienzklasse: D
Lage des Objektes
Der kleine Ort befindet sich in der Gemeinde Bördeland, in der Nachbarschaft zur Stadt Schönebeck / Elbe und Magdeburg. Die Anbindung an Schönebeck und die Landeshauptstadt Magdeburg ist über gut ausgebaute Straßen und die Autobahn perfekt gegeben. Die nächste Autobahnauffahrt (A14) ist ca. 6 km entfernt.
Beispielwohnung
Beispielwohnung Küche
Beispielwohnung 2. Ebene
Beispielwohnung Wannenbad
L1000795
Beispielwohnung Wohnen
L1000814
Beispielwohnung Wohnen
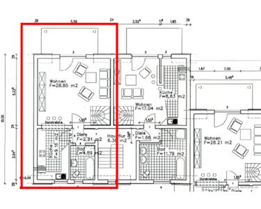
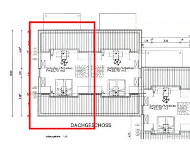
Beispielwohnung Grundriss
Beispielwohnung Grundriss