Exposé
Objektart:
Zinshaus Renditeobjekt
» Wohn & Geschaeftshaus
» Kauf
Standort: Zinshaus Renditeobjekt »
Deutschland » Bayern » Garmisch-Partenkirchen (Kreis) » Oberammergau
Investieren Sie in Betongold!
II. OG rechts 013
Das Wichtigste auf einen Blick:
| Objektnummer: | 9156731 |
Preise
| Kaufpreis | 638.000 € |
| Nebenkosten | keine Angabe |
Flächen
| Wohnfläche | 178 m² |
| Nutzfläche | 102 m² |
| Gesamtfläche | 280 m² |
| Grundstücksfläche | 371 m² |
| Maklerprovision | 3,57% inklusive gesetzlicher MwSt. aus dem Kaufpreis, zahlbar bei notariellem Kaufvertrag |
Objekt Adresse
82487 Oberammergau
Sonstige Angaben
| Baujahr | 1961 |
| Verfügbar ab | keine Angabe |
| Energieausweistyp | Bedarfsausweis |
| Gültig bis | 08.08.2033 |
| Energieeffizienzklasse | H |
| Endenergiebedarf | 312,75 kWh/(m²*a) |
| Energieträger/Befeuerung | Öl |
Objektbeschreibung
Investieren Sie in Betongold!
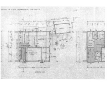
Wohn- und Geschäftshaus in zentraler Lage, ca. 185 m² Wfl. und ca. 130 m² Gewerbefläche, voll unterkellert, 371 m² Grd. , BJ: '61, Hzg. 2007, ÖZH, kleiner Garten, Garage
Wohn- und Geschäftshaus in zentraler Lage, ca. 185 m² Wfl. und ca. 130 m² Gewerbefläche, voll unterkellert, 371 m² Grd. , BJ: '61, Hzg. 2007, ÖZH, kleiner Garten, Garage
Ausstattung
Bitte fordern Sie unser Expose an
Lage des Objektes
Das angebotene Objekt liegt im Zentrum unweit der Kirche. Fußläufig erreichen Sie alle Geschäfte des täglichen Bedarfs, Banken, Ärzte, Zahnärzte, Schule und Kindergarten. Selbst die Bushaltestelle ist in wenigen Gehminuten erreichbar.
www.gemeinde-oberammergau.de
www.gemeinde-oberammergau.de
Sonstige Informationen
Das Objekt ist frei und kann sofort übernommen werden.
1
Südseite
Grundriss EG
Grundriss OG
Grundriss Keller
Grundriss OG
II. OG rechts 013