Exposé
Objektart:
Haus
» Reihenhaus
» Kauf
Standort: Haus »
Deutschland » Bayern » München, Landeshauptstadt (Kreis) » München
AIGNER - Stilvolles Stadthaus in Bestlage des Glockenbachviertels
Koch- Essbereich
Das Wichtigste auf einen Blick:
| Objektnummer: | 9150623 |
Preise
| Kaufpreis | 2.490.000 € |
| Nebenkosten | keine Angabe |
| Hausgeld | 285 € |
Flächen
| Wohnfläche | 133,4 m² |
| Nutzfläche | 143 m² |
| Grundstücksfläche | 56 m² |
| Maklerprovision | 3,57% |
Objekt Adresse
80469 München
Sonstige Angaben
| Baujahr | 2005 |
| Zimmer | 4 |
| Verfügbar ab | ab sofort |
| Bad | 2 |
| Küche | Einbauküche |
| Bad | 2 |
| Heizungsart | Zentralheizung |
| Energieträger/Befeuerung | Gas |
Objektbeschreibung
Willkommen in einem einzigartigen, stilvollen und repräsentativen Stadthaus mitten im Herzen der Stadt. Eingebettet in einen grünen, ruhigen Innenhof, zwischen dem beliebten Viktualienmarkt und dem Isartor, bietet diese Immobilie Wohnen auf höchstem Niveau.
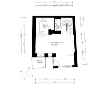
Im Erdgeschoss erwartet Sie eine helle, hochwertig ausgestattete Küche, die nahtlos in den einladenden Wohn- und Essbereich übergeht. Große Fensterfronten sorgen für eine freundliche Atmosphäre, während die angrenzende Frühstücksterrasse einen perfekten Ort für entspannte Morgenstunden bietet. Ein Gäste-WC rundet diese Ebene ab.
Im ersten Obergeschoss sind Ihren Bedürfnissen keine Grenzen gesetzt. Egal ob Sie sich einen repräsentativen Wohnbereich wünschen, der mit seiner luftigen Gestaltung und einem voll ausgestatteten Badezimmer ein perfekter Rückzugsort ist oder zwei große, gut geschnittene Schlafzimmer benötigen - Sie haben hier die Möglichkeit sich individuell zu entfalten. Besonders praktisch ist der angrenzende Hauswirtschaftsraum, der durch eine Schiebetür direkt vom Badezimmer aus zugänglich ist.
Das zweite Obergeschoss beeindruckt mit einem großzügigen Schlafzimmer im Loftstil, das durch ein en-suite Badezimmer mit Walk-in-Dusche und freistehender Badewanne ergänzt wird. Hohe Decken und eine offene Gestaltung verleihen diesem Bereich ein besonders exklusives Ambiente.
Ein weiteres Highlight erwartet Sie im obersten Stockwerk: Ein gemütlicher, lichtdurchfluteter Wohnbereich führt auf eine beeindruckende Dachterrasse mit perfekter Südausrichtung. Diese seltene Oase mitten in der Stadt bietet Ihnen individuelles Wohnen auf höchstem Niveau und lädt zum Entspannen oder geselligen Beisammensein ein – ein echtes Juwel in dieser einmaligen Lage.
Im Erdgeschoss erwartet Sie eine helle, hochwertig ausgestattete Küche, die nahtlos in den einladenden Wohn- und Essbereich übergeht. Große Fensterfronten sorgen für eine freundliche Atmosphäre, während die angrenzende Frühstücksterrasse einen perfekten Ort für entspannte Morgenstunden bietet. Ein Gäste-WC rundet diese Ebene ab.
Im ersten Obergeschoss sind Ihren Bedürfnissen keine Grenzen gesetzt. Egal ob Sie sich einen repräsentativen Wohnbereich wünschen, der mit seiner luftigen Gestaltung und einem voll ausgestatteten Badezimmer ein perfekter Rückzugsort ist oder zwei große, gut geschnittene Schlafzimmer benötigen - Sie haben hier die Möglichkeit sich individuell zu entfalten. Besonders praktisch ist der angrenzende Hauswirtschaftsraum, der durch eine Schiebetür direkt vom Badezimmer aus zugänglich ist.
Das zweite Obergeschoss beeindruckt mit einem großzügigen Schlafzimmer im Loftstil, das durch ein en-suite Badezimmer mit Walk-in-Dusche und freistehender Badewanne ergänzt wird. Hohe Decken und eine offene Gestaltung verleihen diesem Bereich ein besonders exklusives Ambiente.
Ein weiteres Highlight erwartet Sie im obersten Stockwerk: Ein gemütlicher, lichtdurchfluteter Wohnbereich führt auf eine beeindruckende Dachterrasse mit perfekter Südausrichtung. Diese seltene Oase mitten in der Stadt bietet Ihnen individuelles Wohnen auf höchstem Niveau und lädt zum Entspannen oder geselligen Beisammensein ein – ein echtes Juwel in dieser einmaligen Lage.
Ausstattung
- heller Parkettboden
- Glasschiebetüren
- hochwertige Einbauküche mit Weinkühlschrank
- bodentiefe Fenster
- Fußbodenheizung
- geräumiges Duschbad
- Gäste-WC
- Hauswirtschaftsraum
- En-suite Badezimmer mit Walk-in-Dusche und freistehender Badewanne
- großformatige Fliesen
- Innenhof Lage
- Frühstücksterrasse
- Dachterrasse
- Glasschiebetüren
- hochwertige Einbauküche mit Weinkühlschrank
- bodentiefe Fenster
- Fußbodenheizung
- geräumiges Duschbad
- Gäste-WC
- Hauswirtschaftsraum
- En-suite Badezimmer mit Walk-in-Dusche und freistehender Badewanne
- großformatige Fliesen
- Innenhof Lage
- Frühstücksterrasse
- Dachterrasse
Lage des Objektes
Stellen Sie sich vor, Sie leben inmitten einer pulsierenden, modernen Metropole – und doch herrscht um Sie herum Stille. Genauso wurde das exklusive Stadthaus inmitten der Münchner Innenstadt zwischen Marienplatz, Karlsplatz/Stachus, Viktualienmarkt und Frauenkirche konzipiert.
Obwohl Sie nur wenige Minuten von den beliebtesten und exklusivsten Highlights von München trennen, wohnen Sie in dieser einzigartigen Immobilie dank einer besonderen, in sich geschlossenen Bauweise ruhig, geschützt und völlig ungestört. Hier inmitten der besten und begehrtesten Wohngegenden Münchens in der Sendlinger Straße wurden für Sie alle Annehmlichkeiten des modernen Lebens zusammengeführt.
Genießen Sie fußläufig und ganz nah das berühmte Münchner Flair der charmanten Altstadt mit ihren historischen Schätzen, den weltbekannten Prachtmeilen, exklusiven Läden und kulinarischen Highlights. Lassen Sie sich vom Duft des Münchner Viktualienmarkts verführen, von Glanz und Magie herrlicher Architektur verzaubern und von Schönheit und Luxus gegenwärtiger Pracht in den Bann schlagen. München und besonders die Münchner Innenstadt bieten hier die absoluten Topadressen für gehobene Ansprüche jeglicher Couleur. Neben dem flirrenden Leben der Innenstadt finden sich im stetig schlagenden Herzen der Stadt auch ruhige Plätze: Verträumte Gassen, verwunschene Winkel, hochherrschaftliche Parkanlagen und die nahen Isarstrände laden zum Entspannen ein.
Mit diesem außergewöhnlichen Wohnhaus, das bald Ihr Zuhause sein könnte, erhalten Sie eine Essenz aus all dem Schönen, das die Münchner Innenstadt bietet – für Sie räumlich nah, perfekt angebunden und mit allen Auswahlmöglichkeiten, die Sie sich wünschen.
Obwohl Sie nur wenige Minuten von den beliebtesten und exklusivsten Highlights von München trennen, wohnen Sie in dieser einzigartigen Immobilie dank einer besonderen, in sich geschlossenen Bauweise ruhig, geschützt und völlig ungestört. Hier inmitten der besten und begehrtesten Wohngegenden Münchens in der Sendlinger Straße wurden für Sie alle Annehmlichkeiten des modernen Lebens zusammengeführt.
Genießen Sie fußläufig und ganz nah das berühmte Münchner Flair der charmanten Altstadt mit ihren historischen Schätzen, den weltbekannten Prachtmeilen, exklusiven Läden und kulinarischen Highlights. Lassen Sie sich vom Duft des Münchner Viktualienmarkts verführen, von Glanz und Magie herrlicher Architektur verzaubern und von Schönheit und Luxus gegenwärtiger Pracht in den Bann schlagen. München und besonders die Münchner Innenstadt bieten hier die absoluten Topadressen für gehobene Ansprüche jeglicher Couleur. Neben dem flirrenden Leben der Innenstadt finden sich im stetig schlagenden Herzen der Stadt auch ruhige Plätze: Verträumte Gassen, verwunschene Winkel, hochherrschaftliche Parkanlagen und die nahen Isarstrände laden zum Entspannen ein.
Mit diesem außergewöhnlichen Wohnhaus, das bald Ihr Zuhause sein könnte, erhalten Sie eine Essenz aus all dem Schönen, das die Münchner Innenstadt bietet – für Sie räumlich nah, perfekt angebunden und mit allen Auswahlmöglichkeiten, die Sie sich wünschen.
Sonstige Informationen
Heizungsart: Zentralheizung
Baujahr: 2005
Befeuerung/Energieträger: Erdgas hoch
Energieausweistyp: Verbrauchsausweis
Energiekennwert: 35,3 kWh/(m²*a)
Energieeffizienzklasse: A
Koch- Essbereich
Koch- Essbereich
Eingangsbereich
Schalfzimmer
Schlafzimmer
Studio
Terrasse
Duschbad
Gäste-WC
Grundriss Erdgeschoss
Grundriss 1 Obergeschoss
Grundriss 2 Obergeschoss
Grundriss Dachgeschoss
Rumfordstr_29-7340