Exposé
Objektart:
Büro / Praxen
» Bueroflaeche
» Miete
Standort: Büro / Praxen »
Deutschland » Nordrhein-Westfalen » Düsseldorf, Stadt (Kreis) » Düsseldorf
Repräsentative Loftflächen in Derendorf | Hochwertige Büroausstattung | Parkettboden | Tiefgarage
Außenaufnahme 1
Das Wichtigste auf einen Blick:
| Objektnummer: | 9140515 |
Preise
| Nebenkosten | keine Angabe |
| Mietpreis pro m² | 17,5 € |
Flächen
| Gesamtfläche | 2.602 m² |
| Bürofläche | 2.547 m² |
Objekt Adresse
40476 Düsseldorf
- Nordrhein-Westfalen
Sonstige Angaben
| Verfügbar ab | kurzfristig |
| Inserat befindet sich im Stockwerk | 5 |
Innenaufnahme 1
Innenaufnahme 2
Innenaufnahme 3
Innenaufnahme 48239_original
Innenaufnahme 5
Innenaufnahme 6
Innenaufnahme 7
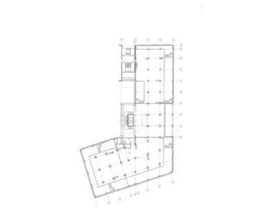
Grundriss Ebene 4
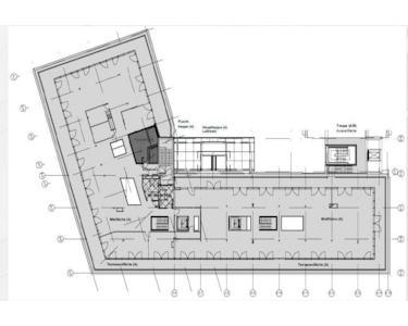
Grundriss Ebene 3
Grundriss