Exposé
Objektart:
Büro / Praxen
» Bueroflaeche
» Miete
Standort: Büro / Praxen »
Deutschland » Bayern » Neumarkt i.d.OPf. (Kreis) » Parsberg
VB3811d Helle Büro- oder Praxisräume / Parsberg
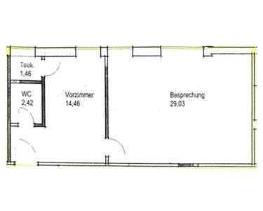
Bild/Grundriss 1
Das Wichtigste auf einen Blick:
| Objektnummer: | 9133624 |
Preise
| Kaltmiete | 423 € |
| Kaltmiete (netto) | 423 € |
| Nebenkosten | 118 € |
| Kaution | 846 € |
Flächen
| Nutzfläche | 47 m² |
| Bürofläche | 47 m² |
| Maklerprovision | Ortsübliche Provision vom Käufer/Mieter nur im Erfolgsfalle |
Objekt Adresse
92331 Parsberg
- Bayern
Sonstige Angaben
| Zimmer | 2 |
| Verfügbar ab | sofort |
| Boden | Kunststoff |
| Energieträger/Befeuerung | Öl |
Objektbeschreibung
Die Vermietflächen befinden sich im Zentrum von Parsberg, ca. 30 km westlich von Regensburg. Eine Bushaltestelle befindet sich in der Nähe. Durch die nahegelegen Autobahn A3 und den fußläufig erreichbaren Bahnhof besteht eine hervorragende Anbindung an Regensburg, Neumarkt und Nürnberg.
Das Wohn- und Geschäftshaus befindet sich an einer viel befahrenen Straße und wird mit einer Ölzentralheizung beheizt. Ein Glasfaseranschluss ist möglich.
Die Büro- oder Praxisflächen sind mit PVC-, Teppich- und Fliesenboden ausgestattet. Aufgrund der hohen umlaufenden Fenster sind die Räume sehr hell und freundlich. In den abgehängten Decken sind Leuchten integriert. Die EDV- und Telefonverkabelung verläuft in Brüstungskanälen. In der Küche ist ein Küchenanschluss vorhanden. Die WCs sind hell deckenhoch gefliest.
Der Eigentümer ist bereit Umbaumaßnahmen durchzuführen. Der genaue Umfang ist Verhandlungssache. Es besteht die Möglichkeit angrenzende Räume noch hinzu zu mieten.
Vor dem Haus stehen viele kostenlose Kunden- und Mitarbeiterstellplätze zur Verfügung.
Das Wohn- und Geschäftshaus befindet sich an einer viel befahrenen Straße und wird mit einer Ölzentralheizung beheizt. Ein Glasfaseranschluss ist möglich.
Die Büro- oder Praxisflächen sind mit PVC-, Teppich- und Fliesenboden ausgestattet. Aufgrund der hohen umlaufenden Fenster sind die Räume sehr hell und freundlich. In den abgehängten Decken sind Leuchten integriert. Die EDV- und Telefonverkabelung verläuft in Brüstungskanälen. In der Küche ist ein Küchenanschluss vorhanden. Die WCs sind hell deckenhoch gefliest.
Der Eigentümer ist bereit Umbaumaßnahmen durchzuführen. Der genaue Umfang ist Verhandlungssache. Es besteht die Möglichkeit angrenzende Räume noch hinzu zu mieten.
Vor dem Haus stehen viele kostenlose Kunden- und Mitarbeiterstellplätze zur Verfügung.
Ausstattung
Lage: Parsberg
Mietpreis: EUR 423,-
Nebenkosten: EUR 118,-
Fläche: ca. 47 m²
Zimmeranzahl: 2
Kaution: EUR 846,-
Geschoss(e): 1. OG
Bezug: sofort
teilbar ab: nein
Stellplatzanzahl: ausreichend vorhanden
Stellplatzpreis: EUR 0,-
Fußweg zum RVV: 2 min.
Fahrtzeit Bahnhof: 10 min.
Fahrtzeit Autobahn: 5 min.
Fahrtzeit Flughafen: 80 min.
Objekttyp: Büro
Zustand: renoviert
Stellplatz: Außenstellplatz
Ausstattung: normal
Bodenbelag: PVC
Heizung: Öl-Heizung
Energieträger: Öl
Starkstrom: ja
DV-Verkabelung: ja
Mietpreis: EUR 423,-
Nebenkosten: EUR 118,-
Fläche: ca. 47 m²
Zimmeranzahl: 2
Kaution: EUR 846,-
Geschoss(e): 1. OG
Bezug: sofort
teilbar ab: nein
Stellplatzanzahl: ausreichend vorhanden
Stellplatzpreis: EUR 0,-
Fußweg zum RVV: 2 min.
Fahrtzeit Bahnhof: 10 min.
Fahrtzeit Autobahn: 5 min.
Fahrtzeit Flughafen: 80 min.
Objekttyp: Büro
Zustand: renoviert
Stellplatz: Außenstellplatz
Ausstattung: normal
Bodenbelag: PVC
Heizung: Öl-Heizung
Energieträger: Öl
Starkstrom: ja
DV-Verkabelung: ja
Lage des Objektes
Parsberg
Sonstige Informationen
Um eine schnelle Bearbeitung zu gewähren benötigen wir Ihre Telefonnummer sowie Ihre komplette Adresse.
Bild/Grundriss 2
Bild/Grundriss 3
Logo