Exposé
Objektart:
Büro / Praxen
» Bueroflaeche
» Miete
Standort: Büro / Praxen »
Deutschland » Bayern » Neumarkt i.d.OPf. (Kreis) » Parsberg
VB3811 Helle, teilbare Büro- oder Praxisräume / Parsberg
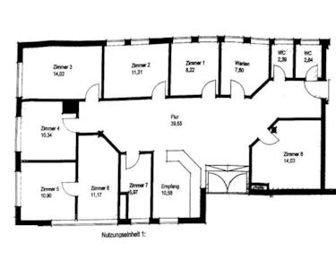
Bild/Grundriss 1
Das Wichtigste auf einen Blick:
| Objektnummer: | 9133623 |
Preise
| Kaltmiete | 2.471 € |
| Kaltmiete (netto) | 2.471 € |
| Nebenkosten | 883 € |
| Kaution | 4.942 € |
Flächen
| Nutzfläche | 353 m² |
| Bürofläche | 353 m² |
| Fläche teilbar ab | 100 m² |
| Maklerprovision | Ortsübliche Provision vom Käufer/Mieter nur im Erfolgsfalle |
Objekt Adresse
92331 Parsberg
- Bayern
Sonstige Angaben
| Zimmer | 18 |
| Verfügbar ab | sofort |
| Boden | Kunststoff |
| Energieträger/Befeuerung | Öl |
Objektbeschreibung
Die Vermietflächen befinden sich im Zentrum von Parsberg, ca. 30 km westlich von Regensburg. Für die Mitarbeiter stehen in der Nähe mehrere Verbrauchermärkte zur Verfügung. Eine Bushaltestelle befindet sich in der Nähe. Durch die nahegelegen Autobahn A3 und den fußläufig erreichbaren Bahnhof besteht eine hervorragende Anbindung an Regensburg, Neumarkt und Nürnberg.
Das Wohn- und Geschäftshaus befindet sich an einer viel befahrenen Straße und wird mit einer Ölzentralheizung beheizt.
Die Büro- oder Praxisflächen sind mit PVC-, Teppich- und Fliesenboden ausgestattet. Aufgrund der hohen umlaufenden Fenster sind die Räume sehr hell und freundlich. In den abgehängten Decken sind Leuchten integriert. Die EDV- und Telefonverkabelung verläuft in Brüstungskanälen. In den Küchen sind Küchenanschlüsse vorhanden. Die WCs sind hell deckenhoch gefliest.
Der Eigentümer ist bereit bei Umbaumaßnahmen durchzuführen. Der genaue Umfang ist Verhandlungssache.
Vor dem Haus stehen viele kostenlose zum Haus gehörende Kunden- und Mitarbeiterstellplätze zur Verfügung.
Das Wohn- und Geschäftshaus befindet sich an einer viel befahrenen Straße und wird mit einer Ölzentralheizung beheizt.
Die Büro- oder Praxisflächen sind mit PVC-, Teppich- und Fliesenboden ausgestattet. Aufgrund der hohen umlaufenden Fenster sind die Räume sehr hell und freundlich. In den abgehängten Decken sind Leuchten integriert. Die EDV- und Telefonverkabelung verläuft in Brüstungskanälen. In den Küchen sind Küchenanschlüsse vorhanden. Die WCs sind hell deckenhoch gefliest.
Der Eigentümer ist bereit bei Umbaumaßnahmen durchzuführen. Der genaue Umfang ist Verhandlungssache.
Vor dem Haus stehen viele kostenlose zum Haus gehörende Kunden- und Mitarbeiterstellplätze zur Verfügung.
Ausstattung
Lage: Parsberg
Mietpreis: EUR 2.471,00
Nebenkosten: EUR 883,-
Fläche: ca. 353 m²
Zimmeranzahl: 18
Kaution: EUR 4.942,-
Geschoss(e): 1. OG
Bezug: sofort
teilbar ab: ca. 100 m²
Stellplatzanzahl: ausreichend vorhanden
Stellplatzpreis: EUR 0,-
Fußweg zum RVV: 2 min.
Fahrtzeit Bahnhof: 10 min.
Fahrtzeit Autobahn: 5 min.
Fahrtzeit Flughafen: 80 min.
Objekttyp: Büro
Zustand: renoviert
Stellplatz: Außenstellplatz
Ausstattung: normal
Bodenbelag: PVC
Heizung: Öl-Heizung
Energieträger: Öl
Starkstrom: ja
DV-Verkabelung: ja
Mietpreis: EUR 2.471,00
Nebenkosten: EUR 883,-
Fläche: ca. 353 m²
Zimmeranzahl: 18
Kaution: EUR 4.942,-
Geschoss(e): 1. OG
Bezug: sofort
teilbar ab: ca. 100 m²
Stellplatzanzahl: ausreichend vorhanden
Stellplatzpreis: EUR 0,-
Fußweg zum RVV: 2 min.
Fahrtzeit Bahnhof: 10 min.
Fahrtzeit Autobahn: 5 min.
Fahrtzeit Flughafen: 80 min.
Objekttyp: Büro
Zustand: renoviert
Stellplatz: Außenstellplatz
Ausstattung: normal
Bodenbelag: PVC
Heizung: Öl-Heizung
Energieträger: Öl
Starkstrom: ja
DV-Verkabelung: ja
Lage des Objektes
Parsberg
Sonstige Informationen
Um eine schnelle Bearbeitung zu gewähren benötigen wir Ihre Telefonnummer sowie Ihre komplette Adresse.
Bild/Grundriss 2
Bild/Grundriss 3
Bild/Grundriss 4
Bild/Grundriss 5
Logo