Exposé
Objektart:
Büro / Praxen
» Buerohaus
» Miete
Standort: Büro / Praxen »
Deutschland » Sachsen » Leipzig, Stadt (Kreis) » Leipzig
BUERO.LADEN.fläche mit 433,81 m² in Atrio Quartier
Außenansicht
Das Wichtigste auf einen Blick:
| Objektnummer: | 9132481 |
Preise
| Miete für das Objekt | Auf Anfrage |
| Nebenkosten | keine Angabe |
Flächen
| Ladenfläche | 433,81 m² |
| Verkaufsfläche | m² |
| Maklerprovision | provisionsfrei |
Objekt Adresse
Lutherstraße 6-8
04315 Leipzig
Sonstige Angaben
| Verfügbar ab | keine Angabe |
Objektbeschreibung
In dem neu errichtetem mehrgeschossigen Wohnensemble entstehen im Erdgeschoss Flächen die vielfältig genutzt werden können. Die Einheiten können nach den Anforderungen des Mieters ausgebaut und ausgestattet werden.
Des Weiteren gibt es bis zu 260 Fahrradplätze und Zugang zum begrünten Innerhof "Atrium" .
Des Weiteren gibt es bis zu 260 Fahrradplätze und Zugang zum begrünten Innerhof "Atrium" .
Lage des Objektes
Das Bürohaus befindet sich in unmittelbarer Nähe zum Graphischen Viertel östlich des Leipziger Zentrums. Die Nähe zur Innenstadt und zum Leipziger Hauptbahnhof zeichnet die Attraktivität dieses Standortes aus. Die Innenstadt kann in weniger als 10 Minuten mit dem Auto erreicht werden und mit der Straßenbahn werden ebenfalls nur wenige Minuten benötigt. Mit der vorbeiführenden Verkehrsachse B2 sind sowohl die Neue Messe Leipzig, die Autobahnen A14 und A9 als auch der Flughafen Leipzig/Halle sehr schnell und unkompliziert erreichbar.
Sonstige Informationen
Der Mietpreis richtet sich nach Ausstattung, Mietvertragslaufzeit und Lage im Objekt und liegt
ca. zwischen 15,00 und 16,00 EUR/m² zzgl. Nebenkosten. Gern unterbreiten wir Ihnen Ihr persönliches Mietangebot.
BUEROanmietung leicht gemacht?
Bitte sprechen Sie uns an, gern stellen wir Ihnen eine Auswahl geeigneter Büroflächenangebote zusammen.
Für Fragen, ein persönliches Gespräch oder auch eine persönliche Terminvereinbarung
stehen wir Ihnen gern telefonisch unter 0341 | 5643000 zur Verfügung.
Außenansicht
Außenansicht
Außenansicht
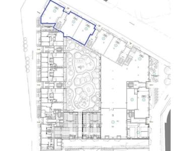
Grundriss