Exposé
Objektart:
Büro / Praxen
» Bueroflaeche
» Miete
Standort: Büro / Praxen »
Deutschland » Bayern » Starnberg (Kreis) » Planegg
SCHÖNE BÜROS IN MARTINSRIED - provisionsfrei
A1
Angeboten von:
Harald Dördrechter Immobilien Consulting
Schluchtweg 23
82340 Feldafing
Deutschland
Telefon:08157-924772
Fax:08157-924771
www.hdic.de
Ansprechpartner/in
Harald Dördrechter ImmobilienConsulting
Herr Harald Dördrechter
| Telefon: | 08157 - 92 47 72 |
| Fax: | 08157 - 92 47 71 |
Das Wichtigste auf einen Blick:
| Objektnummer: | 9131884 |
Preise
| Warmmiete | 3.500 € |
| Nebenkosten | 4 € |
| Mietpreis pro m² | 14,9 € |
Flächen
| Gesamtfläche | 1.900 m² |
| Bürofläche | 380 m² |
| Fläche teilbar ab | 190 m² |
Objekt Adresse
82152 Planegg
Sonstige Angaben
| Verfügbar ab | 01.10.2025 |
| Inserat befindet sich im Stockwerk | 2 |
Objektbeschreibung
Attraktives, multifunktionales Gebäude in idyllischer Waldrandlage. Die hellen, freundlichen Büros werden über einen Personenaufzug und ein lichtdurchflutendes Treppenhaus erschlossen. Pro Etage gibt es jeweils 2 Einheiten.
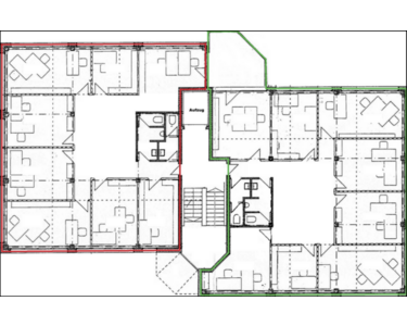
Die ruhig gelegene Büroeinheit im zweiten Obergeschoss mit Dachterrasse erfüllt alle Voraussetzungen einer kompakten und hochwertigen Büroeinheit. Zu vermieten sind 190m², die im Grundriss grün markiert sind. Weitere 190m² können bei Bedarf hinzugemietet werden, eventuell auch zu einem späteren Zeitpunkt. Ein weiteres Highlight ist die objekteigene Dachterrasse, die der zukünftige Mieter jederzeit mitnutzen kann (zzgl. 20m² Dachterrassenmiete (12,90€/m²) zur gemeinschaftlichen Nutzung). Die gewünschte Vertragslaufzeit beträgt 4 Jahre. Die Büroeinheit ist ideal für Start-ups und Firmen mit akutem Expansionsbedarf geeignet.
Freie Flächen :
Büro 2.OG 190 m² bzw. 380 m² à € 14,90 /m²/mon. + NKV € 4,00 /m²/mon. + Mwst.
Die ruhig gelegene Büroeinheit im zweiten Obergeschoss mit Dachterrasse erfüllt alle Voraussetzungen einer kompakten und hochwertigen Büroeinheit. Zu vermieten sind 190m², die im Grundriss grün markiert sind. Weitere 190m² können bei Bedarf hinzugemietet werden, eventuell auch zu einem späteren Zeitpunkt. Ein weiteres Highlight ist die objekteigene Dachterrasse, die der zukünftige Mieter jederzeit mitnutzen kann (zzgl. 20m² Dachterrassenmiete (12,90€/m²) zur gemeinschaftlichen Nutzung). Die gewünschte Vertragslaufzeit beträgt 4 Jahre. Die Büroeinheit ist ideal für Start-ups und Firmen mit akutem Expansionsbedarf geeignet.
Freie Flächen :
Büro 2.OG 190 m² bzw. 380 m² à € 14,90 /m²/mon. + NKV € 4,00 /m²/mon. + Mwst.
Ausstattung
Balkone - Dachterrasse zur gemeinschaftlichen Nutzung - attraktiver Eingangsbereich - Personenaufzug - Lastenaufzug ins Untergeschoss - außenliegender Sonnenschutz - bap-gerechte Beleuchtung - getr. WC`s D/H -
Lage des Objektes
Martinsried, an der südwestlichen Stadtgrenze Münchens, ist das führende Biotech-Zentrum in Deutschland und Europa. In der direkten Nachbarschaft finden Sie das Max-Planck-Institut, das Innovations- und Gründerzentrum Martinsried, das Klinikum Großhadern und viele Unternehmen aus dem Bereich der Biotechnologie. Beste Verkehrsanbindung an die A96 Lindau und A 95 (München). ÖPNV ist fußläufig erreichbar (Bus). Einzelhandelsnahversorgung, Mittagsverpflegung ca. 500 m fußläufig. Günstiger Gewerbesteuer-Hebesatz von 310%. Münchner Telefonvorwahl 089.
Balkone
A4
Dachterrasse
bsp. innen
bsp. innen
GR 1.OG 190m2-380m2