Exposé
Objektart:
Grundstück
» Wohnen
» Kauf
Standort: Grundstück »
Deutschland » Sachsen » Leipzig, Stadt (Kreis) » Leipzig
Voll erschlossenes Baugrundstück in Leipzig-Stötteritz
Ansicht Hofseite
Angeboten von:
Marko Künne Immobilien
Käthe-Kollwitz-Str. 58c
04109 Leipzig
Deutschland
Telefon:+49(0)341-4429566
Fax:+49(0)341-2253930
www.kuenne-immobilien.de
| Telefon: | 0341 442 9566 |
| Fax: | 0341 2253930 |
Das Wichtigste auf einen Blick:
| Objektnummer: | 9123819 |
Preise
| Kaufpreis | 1.300.000 € |
| Nebenkosten | keine Angabe |
Flächen
| Grundstücksfläche | 1.030 m² |
Objekt Adresse
04299 Leipzig
- Sachsen
Sonstige Angaben
| Verfügbar ab | keine Angabe |
| Garage/Stellplätze | 10 |
| Garage/Stellplätze | 10 |
Objektbeschreibung
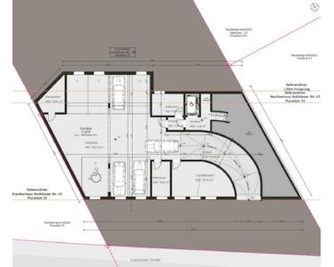
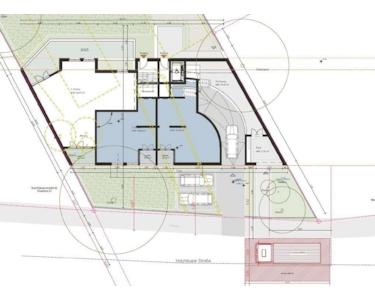
Bei diesem Verkaufsangebot handelt es sich um ein ca. 1030 m² großes Grundstück, welches derzeit mit 12 Garagen bebaut ist. Das Grundstück ist im Flächennutzungsplan als Wohnbaufläche ausgewiesen. Es liegt im Innenbereich nach § 34 BauGB.
Für das Flurstück liegt eine Baugenehmigung vor, welche die Errichtung eines mehrgeschossigen Wohnhauses ermöglicht. Vorgesehen sind ca. 1.513,62 m² Wohnfläche. Die insgesamt 20 Wohneinheiten verteilen sich auf das Erdgeschoss, vier Vollgeschosse und das Dachgeschoss. Jede Einheit verfügt über einen Balkon und/oder eine Loggia. Ein Highlight der beiden Dachgeschosseinheiten sind die zusätzlichen Dachgärten. Eine Abgeschlossenheitsbescheinigung wurde zum Projekt bereits erteilt.
Die Garagen und Außenstellplätze sind derzeit verpachtet. Derzeit sind die Garagen, zu 65,00 € - 80,00 € monatlich zzgl. MwSt., verpachtet. Alle 12 Stellplätze sind zu 50,00 € zzgl. MwSt. verpachtet. Die Pachtverträge können beiderseitig, mit einer 3-monatigen Frist, gekündigt werden.
Zudem befindet sich auf dem Grundstück alter Baumbestand. Die Medien, Elektrizität, Gas, Wasser/Abwasser, Telefon und Kabelfernsehen liegen vor dem Grundstück in der Straße.
" frisch, engagiert, solide "
Die Künne Immobilien Gruppe ist professioneller Dienstleister der Immobilienbranche und steht Ihnen in den Bereichen Projektentwicklung, Verkauf, Vermietung, Verwaltung und Facility Management zur Verfügung.
Für weitere Informationen und Einblicke besuchen Sie unsere Homepage: www.kuenne-gruppe.de Sie wollen Ihre Immobilie verkaufen? Egal ob Mehrfamilien- oder Einfamilienhaus, Eigentumswohnung, Grundstück oder Neubau- bzw. Bauträgerprojekt. Wir vermitteln kompetent, transparent und zügig Ihre Immobilie, bundesweit.
Für das Flurstück liegt eine Baugenehmigung vor, welche die Errichtung eines mehrgeschossigen Wohnhauses ermöglicht. Vorgesehen sind ca. 1.513,62 m² Wohnfläche. Die insgesamt 20 Wohneinheiten verteilen sich auf das Erdgeschoss, vier Vollgeschosse und das Dachgeschoss. Jede Einheit verfügt über einen Balkon und/oder eine Loggia. Ein Highlight der beiden Dachgeschosseinheiten sind die zusätzlichen Dachgärten. Eine Abgeschlossenheitsbescheinigung wurde zum Projekt bereits erteilt.
Die Garagen und Außenstellplätze sind derzeit verpachtet. Derzeit sind die Garagen, zu 65,00 € - 80,00 € monatlich zzgl. MwSt., verpachtet. Alle 12 Stellplätze sind zu 50,00 € zzgl. MwSt. verpachtet. Die Pachtverträge können beiderseitig, mit einer 3-monatigen Frist, gekündigt werden.
Zudem befindet sich auf dem Grundstück alter Baumbestand. Die Medien, Elektrizität, Gas, Wasser/Abwasser, Telefon und Kabelfernsehen liegen vor dem Grundstück in der Straße.
" frisch, engagiert, solide "
Die Künne Immobilien Gruppe ist professioneller Dienstleister der Immobilienbranche und steht Ihnen in den Bereichen Projektentwicklung, Verkauf, Vermietung, Verwaltung und Facility Management zur Verfügung.
Für weitere Informationen und Einblicke besuchen Sie unsere Homepage: www.kuenne-gruppe.de Sie wollen Ihre Immobilie verkaufen? Egal ob Mehrfamilien- oder Einfamilienhaus, Eigentumswohnung, Grundstück oder Neubau- bzw. Bauträgerprojekt. Wir vermitteln kompetent, transparent und zügig Ihre Immobilie, bundesweit.
Lage des Objektes
Der Leipziger Stadtteil Stötteritz liegt etwa 4 km südöstlich vom Stadtzentrum. Stötteritz ist ein Stadtviertel in Leipzig, das sich weniger großstädtisch zeigt, sondern eher von kleinstädtischen oder sogar dörflichen Strukturen gekennzeichnet ist. Es wird durch die Innenstadt mit der Tramlinie 4 verbunden.
Das Stadtviertel beherbergt im Zentrum eine schöne Barockkirche, um die sich der kleinstädtisch-vertraute Charakter von Stötteritz entfaltet. Ein alter Gutshof, der als soziokulturelles Begegnungszentrum genutzt wird, befindet sich gleich gegenüber. Das Stötteritzer Wäldchen grenzt unmittelbar in Richtung Norden an die Stötteritzer Straßenzüge an und bietet als Naherholungsgebiet genügend Raum zur Entspannung und Gestaltung der freien Zeit.
In unmittelbarer Umgebung befinden sich zahlreiche Einkaufsmöglichkeiten für den täglichen Bedarf. Das Ärztehaus von Stötteritz kann leicht zu Fuß in ca. 10 min erreicht werden.
Das Stadtviertel beherbergt im Zentrum eine schöne Barockkirche, um die sich der kleinstädtisch-vertraute Charakter von Stötteritz entfaltet. Ein alter Gutshof, der als soziokulturelles Begegnungszentrum genutzt wird, befindet sich gleich gegenüber. Das Stötteritzer Wäldchen grenzt unmittelbar in Richtung Norden an die Stötteritzer Straßenzüge an und bietet als Naherholungsgebiet genügend Raum zur Entspannung und Gestaltung der freien Zeit.
In unmittelbarer Umgebung befinden sich zahlreiche Einkaufsmöglichkeiten für den täglichen Bedarf. Das Ärztehaus von Stötteritz kann leicht zu Fuß in ca. 10 min erreicht werden.
Grundstück Vogelperspektive
Grundstück mit Umgebung
Stellplatz
Rückansicht von oben
Garagen
Vogelperspektive
Stellplätze
Zufahrt
Schnitt AA
Grundriss UG
Grundriss EG
Grundriss Regelgeschoss
Grundriss DG