Exposé
Objektart:
Büro / Praxen
» Buerohaus
» Miete
Standort: Büro / Praxen »
Deutschland » Sachsen » Leipzig, Stadt (Kreis) » Leipzig
Hochwertige Büroeinheiten in zentraler Lage mit 982,47m² im LISTHAUS
Außenansicht 1
Das Wichtigste auf einen Blick:
| Objektnummer: | 9122682 |
Preise
| Miete für das Objekt | Auf Anfrage |
| Nebenkosten | keine Angabe |
| Mietpreis pro m² | 15 € |
Flächen
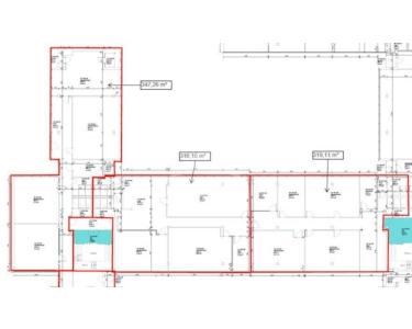
| Bürofläche | 982,47 m² |
| Bürofläche | 316,1 m² |
| Fläche teilbar ab | 316,1 m² |
| Maklerprovision | provisionsfrei |
Objekt Adresse
Friedrich-List-Platz 1-2
04103 Leipzig
Sonstige Angaben
| Baujahr | 1933 | 1998 |
| Zimmer | 14 |
| Verfügbar ab | keine Angabe |
Objektbeschreibung
Das Gesamtensemble "LISTHAUS" umfasst sechs eigenständige Gebäude mit insgesamt ca. 36.000 m² Fläche, die sich in der äußeren Darstellung autark und werbewirksam präsentieren. Im Gebäude haben sich bereits viele Unternehmen aus den verschiedensten Branchen niedergelassen, wie z.B. Leipzig Fernsehen oder auch Rechtsanwälte, Werbeagenturen und Bildungsträger. Die Büroflächen in den sechsgeschossigen Gebäuden werden über moderne Aufzugsanlagen erschlossen. Auf den Etagen befinden sich helle und flexible Flächen. Diese sind nach dem spezifischen Raum- und Ausstattungsprofil des Mieters aufteilbar. PKW-Stellplätze für Mitarbeiter und Ihre Kunden stehen in der hauseigenen Tiefgarage zur Verfügung. Im Objekt gibt es Büroflächen von ca. 200 m² bis ca. 5000 m²
Ausstattung
Die Flächen verfügen über folgende Grundausstattung:
- hochwertige ableitfähige Teppichbodenbeläge
- EDV-geeignete und abgependelte Beleuchtungskörper
- Hohlraumboden für die Verkabelung
- Energiespeicherdecken
- Teeküchen und Sanitärbereiche
- hochwertige ableitfähige Teppichbodenbeläge
- EDV-geeignete und abgependelte Beleuchtungskörper
- Hohlraumboden für die Verkabelung
- Energiespeicherdecken
- Teeküchen und Sanitärbereiche
Lage des Objektes
Das LISTHAUS befindet sich im Graphischen Viertels - nur fünf Gehminuten vom Leipziger Hauptbahnhof entfernt. Direkt vor dem Gebäude verkehren mehrere Straßenbahnlinien, so das Sie das LISTHAUS schnell aus allen Stadtteilen und dem Umland Leipzigs zu erreichen können. Über die nahegelegene B2 ist ein zügiger Anschluss zur A 14, A 38, der Neuen Messe und dem Flughafen Leipzig-Halle gewährleistet.
Sonstige Informationen
Der Mietbereich ist ab dem 01.04.2026 verfügbar. PKW-Stellplätze für Mitarbeiter und Ihre Kunden stehen in der hauseigenen Tiefgarage zur Verfügung.
Der angegebene Mietpreis richtet sich nach Mietvertragslaufzeit, Ausstattungsmerkmalen und Lage im Gebäude und liegt zwischen 15,00 EUR/m² und 17,00 EUR/m².
Büroanmietung leicht gemacht?
Bitte übermitteln Sie uns dazu Ihr konkretes Raumprofil und Ihre Kontaktdaten. Wir treffen eine Vorauswahl für Sie und stellen wir Ihnen eine Auswahl geeigneter Büroflächenangebote zusammen.
Innenansicht
Innenansicht
Außenansicht
Außenansicht
Außenansicht
Außenansicht
Grundrisse