Exposé
Objektart:
Wohnung
» Etage
» Miete
Standort: Wohnung »
Deutschland » Sachsen » Delitzsch (Kreis) » Eilenburg
Modern & effizient | Fußbodenheizung & Luft-Wärme-Pumpe | eigener Grillplatz & Spielplatz
Titel
Das Wichtigste auf einen Blick:
| Objektnummer: | 9120678 |
Preise
| Kaltmiete | 900 € |
| Warmmiete | 1.170 € |
| Nebenkosten | 170 € |
| Kaution | 2 Kaltmieten |
Flächen
| Wohnfläche | 88 m² |
Objekt Adresse
04838 Eilenburg
- Sachsen
Sonstige Angaben
| Baujahr | 2027 |
| Zimmer | 3 |
| Verfügbar ab | keine Angabe |
| Bad | 1 |
| Anzahl der Etagen im Haus | 2 |
| Inserat befindet sich im Stockwerk | 1 |
| Bad | 1 |
| Bad | Dusche, Wanne, Fenster |
| Boden | Fliesen, Laminat |
| Balkone | 1 |
Objektbeschreibung
Diese hochwertige Wohnung entsteht in einem idyllischen Wohngebiet, das durch einen eigenen Spielplatz und einen gemeinschaftlich nutzbaren Grillplatz besonders familienfreundlich gestaltet ist. Wer ruhiges Wohnen im Grünen mit Nähe zur Stadt sucht, wird sich hier rundum wohlfühlen.
Diese Wohnung überzeugt durch ihre erstklassige Ausstattung sowie eine durchdachte Raumaufteilung. Die Wohnräume sind mit hochwertigem Laminat ausgelegt, während stilvolle Fliesen in Küche und Bad für ein elegantes, zeitloses Ambiente sorgen.
Das großzügige, lichtdurchflutete Wohnzimmer bietet direkten Zugang zu einem geräumigen Balkon – ideal zum Entspannen oder gemeinsamen Essen im Freien. Die offen gestaltete Küche besticht durch ihr modernes Design und einen einladenden Essbereich.
Das helle Tageslichtbad ist mit Badewanne und Dusche ausgestattet und bietet so maximalen Komfort. Ein praktischer Hauswirtschaftsraum schafft zusätzlichen Stauraum und Platz für Waschmaschine und Trockner.
Zur Wohnung gehört ein Außenstellplatz (25 €/Monat) und eine Garage (60 €/Monat).
Die Wohnanlage ist mit einer energieeffizienten Luft-Wärme-Pumpe ausgestattet. Die Stromversorgung erfolgt zentral über den Eigentümer, ein Anbieterwechsel ist daher nicht möglich. Die monatlichen Stromkosten betragen 100 € und werden verbrauchsgenau zum Tarif der Stadtwerke abgerechnet.
Kostenübersicht:
• Nebenkosten: 170 €
• Stromkosten: 100 €
• Außenstellplatz: 25 €/Monat
• Garage: 60 €/Monat
Hinweis:
Die beigefügten Fotos zeigen eine Musterwohnung mit identischem Grundriss, aufgenommen vor Fertigstellung.
Diese Wohnung überzeugt durch ihre erstklassige Ausstattung sowie eine durchdachte Raumaufteilung. Die Wohnräume sind mit hochwertigem Laminat ausgelegt, während stilvolle Fliesen in Küche und Bad für ein elegantes, zeitloses Ambiente sorgen.
Das großzügige, lichtdurchflutete Wohnzimmer bietet direkten Zugang zu einem geräumigen Balkon – ideal zum Entspannen oder gemeinsamen Essen im Freien. Die offen gestaltete Küche besticht durch ihr modernes Design und einen einladenden Essbereich.
Das helle Tageslichtbad ist mit Badewanne und Dusche ausgestattet und bietet so maximalen Komfort. Ein praktischer Hauswirtschaftsraum schafft zusätzlichen Stauraum und Platz für Waschmaschine und Trockner.
Zur Wohnung gehört ein Außenstellplatz (25 €/Monat) und eine Garage (60 €/Monat).
Die Wohnanlage ist mit einer energieeffizienten Luft-Wärme-Pumpe ausgestattet. Die Stromversorgung erfolgt zentral über den Eigentümer, ein Anbieterwechsel ist daher nicht möglich. Die monatlichen Stromkosten betragen 100 € und werden verbrauchsgenau zum Tarif der Stadtwerke abgerechnet.
Kostenübersicht:
• Nebenkosten: 170 €
• Stromkosten: 100 €
• Außenstellplatz: 25 €/Monat
• Garage: 60 €/Monat
Hinweis:
Die beigefügten Fotos zeigen eine Musterwohnung mit identischem Grundriss, aufgenommen vor Fertigstellung.
Ausstattung
- Fußbodenheizung
- 3 Zimmer
- Rollläden
- Tageslichtbad mit Wanne und Dusche
- großer Balkon
- Garage
- Außenstellplatz
- Spielplatz und Grillplatz für Anwohner
- 3 Zimmer
- Rollläden
- Tageslichtbad mit Wanne und Dusche
- großer Balkon
- Garage
- Außenstellplatz
- Spielplatz und Grillplatz für Anwohner
Lage des Objektes
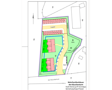
Zschettgau, ein idyllischer Ortsteil von Eilenburg, besticht durch seine ländliche Ruhe und die Nähe zur Natur. Hier genießen Sie die Vorzüge des dörflichen Lebens, ohne auf die Annehmlichkeiten der Stadt verzichten zu müssen. Die Umgebung lädt zu Spaziergängen und Radtouren ein und bietet gleichzeitig eine gute Anbindung an das städtische Leben.
Freizeitangebote in der Anlage:
- ein eigener Grillplatz für die Anwohner
- ein eigener Spielplatz für die Kinder der Anwohner zum spielen
- eigener Garagenpark
Verkehrsanbindung:
- Bushaltestelle "Zschettgau": ca. 180 m entfernt, bedient von der Linie 212 (Eilenburg – Selben)
- Bahnhof Eilenburg: ca. 6,7 km entfernt, mit der S-Bahn-Linie S4 erreichen Sie den Leipziger Hauptbahnhof in ca. 27 Minuten
- Autobahnanschluss A14 (Anschlussstelle Leipzig-Nordost): ca. 12,5 km entfernt
Einkaufen & Versorgung:
- Aldi Nord: ca. 4,5 km
- REWE Supermarkt: ca. 5 km entfernt
- Netto Marken-Discount: ca. 6 km entfernt
- Apotheke "Berg Apotheke": ca. 5 km entfernt
- Postfiliale Eilenburg: ca. 6,5 km entfernt
Erholung & Natur:
- Stadtpark Eilenburg: ca. 6,3 km entfernt, ideal für Spaziergänge und Erholung
- Rund herum viele Wanderwege mit viel grün zum entspannen
Kultur & Freizeit:
- Tierpark Eilenburg: ca. 6,3 km entfernt, ein beliebtes Ausflugsziel für Familien
- Sportplatz 2,5 m entfernt, für Fußball und andere Sportarten
- Volkshaus Eilenburg: ca. 6,5 km entfernt, Veranstaltungsort für kulturelle Events
Bildungseinrichtungen:
- Kita "Tausend-Fühler": ca. 450 m entfernt
- Grundschule Eilenburg-Berg: ca. 5,3 km entfernt
- Oberschule Eilenburg-Mitte: ca. 6,2 km entfernt
- Rinckart-Gymnasium Eilenburg: ca. 8,5 km entfernt
- Berufliches Schulzentrum Eilenburg: ca. 14 km entfernt
Die Lage bietet eine harmonische Verbindung von ländlicher Idylle und städtischer Nähe. Mit guter Verkehrsanbindung, vielfältigen Einkaufsmöglichkeiten, zahlreichen Freizeit- und Erholungsangeboten sowie einer soliden Bildungsinfrastruktur ist Zschettgau ein attraktiver Wohnort für Familien, Paare und Berufspendler.
Freizeitangebote in der Anlage:
- ein eigener Grillplatz für die Anwohner
- ein eigener Spielplatz für die Kinder der Anwohner zum spielen
- eigener Garagenpark
Verkehrsanbindung:
- Bushaltestelle "Zschettgau": ca. 180 m entfernt, bedient von der Linie 212 (Eilenburg – Selben)
- Bahnhof Eilenburg: ca. 6,7 km entfernt, mit der S-Bahn-Linie S4 erreichen Sie den Leipziger Hauptbahnhof in ca. 27 Minuten
- Autobahnanschluss A14 (Anschlussstelle Leipzig-Nordost): ca. 12,5 km entfernt
Einkaufen & Versorgung:
- Aldi Nord: ca. 4,5 km
- REWE Supermarkt: ca. 5 km entfernt
- Netto Marken-Discount: ca. 6 km entfernt
- Apotheke "Berg Apotheke": ca. 5 km entfernt
- Postfiliale Eilenburg: ca. 6,5 km entfernt
Erholung & Natur:
- Stadtpark Eilenburg: ca. 6,3 km entfernt, ideal für Spaziergänge und Erholung
- Rund herum viele Wanderwege mit viel grün zum entspannen
Kultur & Freizeit:
- Tierpark Eilenburg: ca. 6,3 km entfernt, ein beliebtes Ausflugsziel für Familien
- Sportplatz 2,5 m entfernt, für Fußball und andere Sportarten
- Volkshaus Eilenburg: ca. 6,5 km entfernt, Veranstaltungsort für kulturelle Events
Bildungseinrichtungen:
- Kita "Tausend-Fühler": ca. 450 m entfernt
- Grundschule Eilenburg-Berg: ca. 5,3 km entfernt
- Oberschule Eilenburg-Mitte: ca. 6,2 km entfernt
- Rinckart-Gymnasium Eilenburg: ca. 8,5 km entfernt
- Berufliches Schulzentrum Eilenburg: ca. 14 km entfernt
Die Lage bietet eine harmonische Verbindung von ländlicher Idylle und städtischer Nähe. Mit guter Verkehrsanbindung, vielfältigen Einkaufsmöglichkeiten, zahlreichen Freizeit- und Erholungsangeboten sowie einer soliden Bildungsinfrastruktur ist Zschettgau ein attraktiver Wohnort für Familien, Paare und Berufspendler.
Lageplan
Musterhaus - Treppenhaus
Musterwohnung - Flur
Musterwohnung - Wohnbereich
Musterwohnung - Balkon
Musterwohnung - Küche
Musterwohnung - Badezimmer
Musterwohnung - Schlafzimmer
Musterhaus - Erstbezug
Exposé anfordern
Über uns
Immobilienbewertung
Grundriss 1. OG