Exposé
Objektart:
Hallen / Lager / Produktion
» Miete
Standort: Hallen / Lager / Produktion »
Deutschland » Sachsen » Leipzig, Stadt (Kreis) » Leipzig
Werkstatt-, Produktions und Logistikflächen in Leipzig-Plagwitz
NEXT360_Visualisierung_außen
Das Wichtigste auf einen Blick:
| Objektnummer: | 9115157 |
Preise
| Miete für das Objekt | Auf Anfrage |
| Nebenkosten | keine Angabe |
Flächen
| Maklerprovision | provisionsfrei |
Objekt Adresse
04179 Leipzig
Sonstige Angaben
| Verfügbar ab | keine Angabe |
Objektbeschreibung
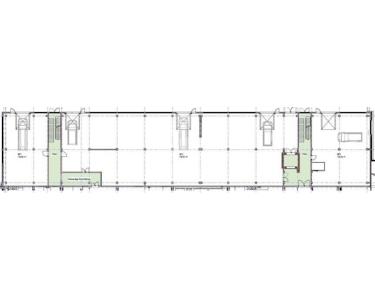
Die im NEXT360 entstehenden individuell nutzbare Flächen im rückwärtigen, zweigeschossiger Anbau des CUBE360 eigenen sich für Nutzungen wir CallCenter, Möbeltischlerei, Werkstätten, Zahnmedizinische Labore, Rechenzentrum, Handwerksbetriebe o.ä. und können individuell nach dem Raumprofil des Mieters gestaltet werden. Insgesamt entstehen Flächen bis zu 2.300 m² die insgesamt oder in Teilflächen angemietet werden können. Die Flächen im Erdgschoss bis 1.000 m² haben eine Deckenhöhe von 4,80 m und verfügen über Sektionaltore über die eine Anlieferung erfolgen kann. Traglasten EG 10,00 kN/m² / OG 5,00 kN/m². Stellplätze können auf dem Grundstück angemietet werden. Eine Fertigstellung ist für das 2. Quartal 2026 geplant.
Lage des Objektes
Plagwitz liegt ungefähr 3 Kilometer westlich des Stadtzentrums und ist von dort in kurzer Zeit erreichbar. Der Stadtteil überzeugt mit einer sehr gut ausgebildeten Infrastruktur: Schulen, Kindergärten, Einkaufsmöglichkeiten und öffentliche Verkehrsmittel finden sich oftmals in unmittelbarer Nähe. In der Umgebung befindet sich die Baumwollspinnerei und der S-Bahnhof Leipzig Plagwitz.
Sonstige Informationen
Der Mietpries richtet sich nach dem Ausbaustandard und liegt zwischen 10,50 EUR/m² bis ca. 12,50 m²
CUBE360_Nachbar SENEC_Visualisierung_außen
Grundriss EG