Exposé
Objektart:
Grundstück
» Kauf
Baugrundstück mit Konzeptprojekt, Krnica | Istrien
Das Wichtigste auf einen Blick:
| Objektnummer: | 9111889 |
Preise
| Kaufpreis | 55.000 € |
| Nebenkosten | keine Angabe |
Flächen
| Gesamtfläche | 669 m² |
Objekt Adresse
Marčana
- Istrien
Sonstige Angaben
| Verfügbar ab | keine Angabe |
Objektbeschreibung
Baugrundstück mit Konzeptentwurf in Krnica | Istrien | Kroatien
Zum Verkauf steht ein quadratisch geschnittenes Baugrundstück im malerischen Ort Krnica an der Ostküste Istriens, nur wenige Minuten vom Meer entfernt. Das Grundstück ist gepflegt, verfügt über eine gesicherte Zufahrtsstrasse und ist vollständig bereit für die Planung und den Bau Ihres Hauses – sei es nach dem bestehenden Konzeptentwurf oder ganz nach Ihren individuellen Wünschen und Bedürfnissen.
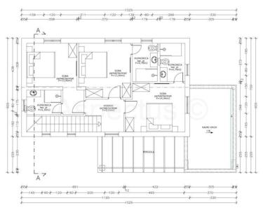
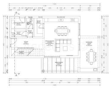
Laut Entwurf ist das Haus funktional geplant und umfasst: einen Eingangsflur, einen Abstellraum, einen Technikraum, eine Küche, einen Essbereich sowie ein grosszügiges Wohnzimmer mit Zugang zu einer überdachten Terrasse und einer Sonnenterrasse mit Pool. Auf der Südseite befinden sich eine nicht überdachte Terrasse und ein angelegter Garten. Eine Innentreppe führt in das Obergeschoss, wo sich drei Schlafzimmer befinden, jedes mit eigenem Badezimmer, sowie eine überdachte Terrasse – eine Pergola mit herrlichem Panoramablick auf das Meer und die unberührte Natur.
Krnica ist ein authentisches istrisches Dorf mit einer reichen Fischereitradition, bekannt für seine ruhige Umgebung und die Nähe zu unberührten Stränden und Buchten. Lokale Fischer bieten täglich frischen Fisch direkt aus dem Hafen Krnički porat, dem Hauptzentrum des Dorfes, an. Das historische Erbe des Ortes reicht bis in die Römerzeit zurück, und heute versprüht Krnica mediterranen Charme durch gut erhaltene traditionelle Häuser und historische Trockenmauern. Dieser Ort bietet eine perfekte Kombination aus Ruhe, Natur und reichem kulturellem Erbe – ideal für alle, die ein friedliches Leben am Meer suchen.
Nutzen Sie diese einzigartige Gelegenheit, Ihr Traumhaus in diesem wunderschönen Teil Istriens zu verwirklichen – genau nach Ihren Vorstellungen.
Für weitere Informationen und Kaufmöglichkeiten kontaktieren Sie uns gerne!
Zum Verkauf steht ein quadratisch geschnittenes Baugrundstück im malerischen Ort Krnica an der Ostküste Istriens, nur wenige Minuten vom Meer entfernt. Das Grundstück ist gepflegt, verfügt über eine gesicherte Zufahrtsstrasse und ist vollständig bereit für die Planung und den Bau Ihres Hauses – sei es nach dem bestehenden Konzeptentwurf oder ganz nach Ihren individuellen Wünschen und Bedürfnissen.
Laut Entwurf ist das Haus funktional geplant und umfasst: einen Eingangsflur, einen Abstellraum, einen Technikraum, eine Küche, einen Essbereich sowie ein grosszügiges Wohnzimmer mit Zugang zu einer überdachten Terrasse und einer Sonnenterrasse mit Pool. Auf der Südseite befinden sich eine nicht überdachte Terrasse und ein angelegter Garten. Eine Innentreppe führt in das Obergeschoss, wo sich drei Schlafzimmer befinden, jedes mit eigenem Badezimmer, sowie eine überdachte Terrasse – eine Pergola mit herrlichem Panoramablick auf das Meer und die unberührte Natur.
Krnica ist ein authentisches istrisches Dorf mit einer reichen Fischereitradition, bekannt für seine ruhige Umgebung und die Nähe zu unberührten Stränden und Buchten. Lokale Fischer bieten täglich frischen Fisch direkt aus dem Hafen Krnički porat, dem Hauptzentrum des Dorfes, an. Das historische Erbe des Ortes reicht bis in die Römerzeit zurück, und heute versprüht Krnica mediterranen Charme durch gut erhaltene traditionelle Häuser und historische Trockenmauern. Dieser Ort bietet eine perfekte Kombination aus Ruhe, Natur und reichem kulturellem Erbe – ideal für alle, die ein friedliches Leben am Meer suchen.
Nutzen Sie diese einzigartige Gelegenheit, Ihr Traumhaus in diesem wunderschönen Teil Istriens zu verwirklichen – genau nach Ihren Vorstellungen.
Für weitere Informationen und Kaufmöglichkeiten kontaktieren Sie uns gerne!