Exposé
Objektart:
Wohnung
» Erdgeschoss
» Miete
Standort: Wohnung »
Deutschland » Sachsen » Delitzsch (Kreis) » Eilenburg
Terrassentraum – Fußbodenheizung | kleiner Garten | Stellplatz | Spiel- & Grillplatz
Titel
Das Wichtigste auf einen Blick:
| Objektnummer: | 9104603 |
Preise
| Kaltmiete | 950 € |
| Warmmiete | 1.220 € |
| Nebenkosten | 170 € |
| Kaution | 2 Kaltmieten |
Flächen
| Wohnfläche | 88 m² |
Objekt Adresse
04838 Eilenburg
- Sachsen
Sonstige Angaben
| Baujahr | 2027 |
| Zimmer | 3 |
| Verfügbar ab | keine Angabe |
| Bad | 1 |
| Anzahl der Etagen im Haus | 2 |
| Inserat befindet sich im Stockwerk | 0 |
| Bad | 1 |
| Bad | Dusche, Wanne, Fenster |
| Boden | Fliesen, Laminat |
| Balkone | 1 |
| Garten | Ja |
Objektbeschreibung
Diese hochwertige Wohnung entsteht in einem idyllischen Wohngebiet, das durch einen eigenen Spielplatz und einen gemeinschaftlich nutzbaren Grillplatz besonders familienfreundlich gestaltet ist. Wer ruhiges Wohnen im Grünen mit Nähe zur Stadt sucht, wird sich hier rundum wohlfühlen.
Die Wohnung überzeugt mit einer durchdachten Raumaufteilung und einer gehobenen Ausstattung. In den Wohnräumen sorgt attraktives Laminat für ein warmes Ambiente, während stilvolle Fliesen in Küche und Bad ein zeitlos elegantes Gesamtbild abrunden.
Das großzügige, lichtdurchflutete Wohnzimmer führt direkt auf eine geräumige Terrasse mit eigener Gartenfläche – ideal zum Entspannen oder für gesellige Stunden im Freien. Die offen gestaltete Küche bietet einen einladenden Essbereich und überzeugt mit edlem Design.
Das helle Tageslichtbad ist mit Badewanne und ebenerdiger Dusche ausgestattet und sorgt für maximalen Komfort. Ein praktischer Hauswirtschaftsraum schafft zusätzlichen Stauraum sowie Platz für Waschmaschine und Trockner.
Zur Wohnung gehört ein Außenstellplatz (25 €/Monat) und eine Garage für 60 €/Monat.
Die Wohnanlage ist mit einer energieeffizienten Luft-Wärme-Pumpe ausgestattet. Die Stromversorgung erfolgt zentral über den Eigentümer, ein Anbieterwechsel ist nicht möglich. Die monatlichen Stromkosten betragen 100 € und werden zum Tarif der Stadtwerke nach tatsächlichem Verbrauch abgerechnet.
Kostenübersicht:
• Nebenkosten: 170 €
• Stromkosten: 100 €
• Außenstellplatz: 25 €/Monat
• Garage (optional): 60 €/Monat
Hinweis:
Die beigefügten Fotos zeigen eine Musterwohnung mit identischem Grundriss, aufgenommen vor Fertigstellung.
Die Wohnung überzeugt mit einer durchdachten Raumaufteilung und einer gehobenen Ausstattung. In den Wohnräumen sorgt attraktives Laminat für ein warmes Ambiente, während stilvolle Fliesen in Küche und Bad ein zeitlos elegantes Gesamtbild abrunden.
Das großzügige, lichtdurchflutete Wohnzimmer führt direkt auf eine geräumige Terrasse mit eigener Gartenfläche – ideal zum Entspannen oder für gesellige Stunden im Freien. Die offen gestaltete Küche bietet einen einladenden Essbereich und überzeugt mit edlem Design.
Das helle Tageslichtbad ist mit Badewanne und ebenerdiger Dusche ausgestattet und sorgt für maximalen Komfort. Ein praktischer Hauswirtschaftsraum schafft zusätzlichen Stauraum sowie Platz für Waschmaschine und Trockner.
Zur Wohnung gehört ein Außenstellplatz (25 €/Monat) und eine Garage für 60 €/Monat.
Die Wohnanlage ist mit einer energieeffizienten Luft-Wärme-Pumpe ausgestattet. Die Stromversorgung erfolgt zentral über den Eigentümer, ein Anbieterwechsel ist nicht möglich. Die monatlichen Stromkosten betragen 100 € und werden zum Tarif der Stadtwerke nach tatsächlichem Verbrauch abgerechnet.
Kostenübersicht:
• Nebenkosten: 170 €
• Stromkosten: 100 €
• Außenstellplatz: 25 €/Monat
• Garage (optional): 60 €/Monat
Hinweis:
Die beigefügten Fotos zeigen eine Musterwohnung mit identischem Grundriss, aufgenommen vor Fertigstellung.
Ausstattung
- Fußbodenheizung
- 3 Zimmer
- Rollläden
- Tageslichtbad mit Wanne und Dusche
- große Terrasse mit kleinem Garten
- Garage
- Außenstellplatz
- 3 Zimmer
- Rollläden
- Tageslichtbad mit Wanne und Dusche
- große Terrasse mit kleinem Garten
- Garage
- Außenstellplatz
Lage des Objektes
Zschettgau, ein idyllischer Ortsteil von Eilenburg, besticht durch seine ländliche Ruhe und die Nähe zur Natur. Hier genießen Sie die Vorzüge des dörflichen Lebens, ohne auf die Annehmlichkeiten der Stadt verzichten zu müssen. Die Umgebung lädt zu Spaziergängen und Radtouren ein und bietet gleichzeitig eine gute Anbindung an das städtische Leben.
Freizeitangebote in der Anlage:
- ein eigener Grillplatz für die Anwohner
- ein eigener Spielplatz für die Kinder der Anwohner zum spielen
- eigener Garagenpark
Verkehrsanbindung:
- Bushaltestelle "Zschettgau": ca. 180 m entfernt, bedient von der Linie 212 (Eilenburg – Selben)
- Bahnhof Eilenburg: ca. 6,7 km entfernt, mit der S-Bahn-Linie S4 erreichen Sie den Leipziger Hauptbahnhof in ca. 27 Minuten
- Autobahnanschluss A14 (Anschlussstelle Leipzig-Nordost): ca. 12,5 km entfernt
Einkaufen & Versorgung:
- Aldi Nord: ca. 4,5 km
- REWE Supermarkt: ca. 5 km entfernt
- Netto Marken-Discount: ca. 6 km entfernt
- Apotheke "Berg Apotheke": ca. 5 km entfernt
- Postfiliale Eilenburg: ca. 6,5 km entfernt
Erholung & Natur:
- Stadtpark Eilenburg: ca. 6,3 km entfernt, ideal für Spaziergänge und Erholung
- Rund herum viele Wanderwege mit viel grün zum entspannen
Kultur & Freizeit:
- Tierpark Eilenburg: ca. 6,3 km entfernt, ein beliebtes Ausflugsziel für Familien
- Sportplatz 2,5 m entfernt, für Fußball und andere Sportarten
- Volkshaus Eilenburg: ca. 6,5 km entfernt, Veranstaltungsort für kulturelle Events
Bildungseinrichtungen:
- Kita "Tausend-Fühler": ca. 450 m entfernt
- Grundschule Eilenburg-Berg: ca. 5,3 km entfernt
- Oberschule Eilenburg-Mitte: ca. 6,2 km entfernt
- Rinckart-Gymnasium Eilenburg: ca. 8,5 km entfernt
- Berufliches Schulzentrum Eilenburg: ca. 14 km entfernt
Die Lage bietet eine harmonische Verbindung von ländlicher Idylle und städtischer Nähe. Mit guter Verkehrsanbindung, vielfältigen Einkaufsmöglichkeiten, zahlreichen Freizeit- und Erholungsangeboten sowie einer soliden Bildungsinfrastruktur ist Zschettgau ein attraktiver Wohnort für Familien, Paare und Berufspendler.
Freizeitangebote in der Anlage:
- ein eigener Grillplatz für die Anwohner
- ein eigener Spielplatz für die Kinder der Anwohner zum spielen
- eigener Garagenpark
Verkehrsanbindung:
- Bushaltestelle "Zschettgau": ca. 180 m entfernt, bedient von der Linie 212 (Eilenburg – Selben)
- Bahnhof Eilenburg: ca. 6,7 km entfernt, mit der S-Bahn-Linie S4 erreichen Sie den Leipziger Hauptbahnhof in ca. 27 Minuten
- Autobahnanschluss A14 (Anschlussstelle Leipzig-Nordost): ca. 12,5 km entfernt
Einkaufen & Versorgung:
- Aldi Nord: ca. 4,5 km
- REWE Supermarkt: ca. 5 km entfernt
- Netto Marken-Discount: ca. 6 km entfernt
- Apotheke "Berg Apotheke": ca. 5 km entfernt
- Postfiliale Eilenburg: ca. 6,5 km entfernt
Erholung & Natur:
- Stadtpark Eilenburg: ca. 6,3 km entfernt, ideal für Spaziergänge und Erholung
- Rund herum viele Wanderwege mit viel grün zum entspannen
Kultur & Freizeit:
- Tierpark Eilenburg: ca. 6,3 km entfernt, ein beliebtes Ausflugsziel für Familien
- Sportplatz 2,5 m entfernt, für Fußball und andere Sportarten
- Volkshaus Eilenburg: ca. 6,5 km entfernt, Veranstaltungsort für kulturelle Events
Bildungseinrichtungen:
- Kita "Tausend-Fühler": ca. 450 m entfernt
- Grundschule Eilenburg-Berg: ca. 5,3 km entfernt
- Oberschule Eilenburg-Mitte: ca. 6,2 km entfernt
- Rinckart-Gymnasium Eilenburg: ca. 8,5 km entfernt
- Berufliches Schulzentrum Eilenburg: ca. 14 km entfernt
Die Lage bietet eine harmonische Verbindung von ländlicher Idylle und städtischer Nähe. Mit guter Verkehrsanbindung, vielfältigen Einkaufsmöglichkeiten, zahlreichen Freizeit- und Erholungsangeboten sowie einer soliden Bildungsinfrastruktur ist Zschettgau ein attraktiver Wohnort für Familien, Paare und Berufspendler.
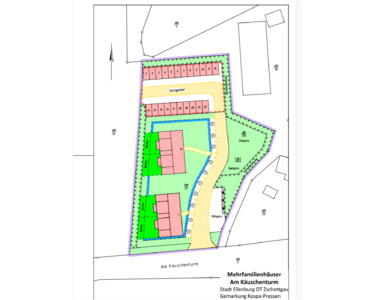
Lageplan
Musterhaus - Treppenhaus
Musterwohnung - Flur
Musterwohnung - Wohnbereich
Musterwohnung - Küche
Musterwohnung - Bad
Musterwohnung - Tageslichtbad
Musterwohnung - Schlafzimmer
Musterhaus
Erstbezug
Grundriss Erdgeschoss
Kontakt
Über uns
Immobilienbewertung
Grundriss