Exposé
Objektart:
Büro / Praxen
» Buerohaus
» Miete
Standort: Büro / Praxen »
Deutschland » Bayern » Nürnberg, Stadt (Kreis) » Nürnberg
BÜRO: ca. 228 m² - 1.OG - Nürnberg Nordwest
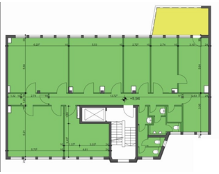
Grundriss
Angeboten von:
CONZEPTA Immobilien
Kaiserstr. 20
90403 Nürnberg
Telefon:0911 241058
Ansprechpartner/in
CONZEPTA City-Immobilien
Herr Uwe Fraass
| Telefon: | +49 911 241058 |
| Fax: | +49 911 224029 |
Das Wichtigste auf einen Blick:
| Objektnummer: | 9104221 |
Preise
| Kaltmiete | 2.375 € |
| Kaltmiete (netto) | 2.375 € |
| Nebenkosten | 700 € |
Flächen
| Maklerprovision | Wir berechnen dem Mieter eine Vermittlungsprovision von 3,57 Nettomonatsmieten der vertraglich vereinbarten Nettomieten inkl. MwSt. |
Objekt Adresse
90429 Nürnberg
Sonstige Angaben
| Baujahr | 1960 |
| Verfügbar ab | keine Angabe |
Beschreibung der Immobilie
Büro-/Praxisfläche in Nürnbergs Nordwesten ab sofort frei!
Weitere angebotene Objekte finden Sie auf unserer Internetseite
Eckdaten:
- 228 m²
- 1.OG
- Aufzug vorhanden
- 3 getrennte Toiletten
- 7 abgeschlossene Räume zur Nutzung
- Kat-6a Verkabelung
- steuerbare Büroraumkühlung
- Sanitär und Küche in sehr guten Zustand
- Heizung: Fernwärme
- bepflanzter Innenhof
- Möglichkeit der Anmietung von Tiefgaragenstellplätzen
- Bilder folgen demnächst.
Besichtigungen können jederzeit mit unserem Büro telefonisch abgesprochen werden.
Weitere angebotene Objekte finden Sie auf unserer Internetseite
Eckdaten:
- 228 m²
- 1.OG
- Aufzug vorhanden
- 3 getrennte Toiletten
- 7 abgeschlossene Räume zur Nutzung
- Kat-6a Verkabelung
- steuerbare Büroraumkühlung
- Sanitär und Küche in sehr guten Zustand
- Heizung: Fernwärme
- bepflanzter Innenhof
- Möglichkeit der Anmietung von Tiefgaragenstellplätzen
- Bilder folgen demnächst.
Besichtigungen können jederzeit mit unserem Büro telefonisch abgesprochen werden.
Lage & Infrastruktur
U1- Haltestelle ca. 150 m entfernt
kurzer Weg zur A73 und in die Fürther Straße
kurzer Weg zur A73 und in die Fürther Straße
Sonstige Informationen
WICHTIG:
Einige weitere Objekte finden Sie auf unserer Internetseite ((https://www.conzepta-immobilien.de).
Schauen Sie dort regelmäßig vorbei und teilen Sie uns Ihr Gesuch mit. (https://www.conzepta-immobilien.de/gesuche)