Exposé
Objektart:
Büro / Praxen
» Buerohaus
» Miete
Standort: Büro / Praxen »
Deutschland » Sachsen » Leipzig, Stadt (Kreis) » Leipzig
Repräsentative BUERO.flächen mit 862 m² direkt im Zentrum
Ansicht
Das Wichtigste auf einen Blick:
| Objektnummer: | 9103290 |
Preise
| Miete für das Objekt | Auf Anfrage |
| Nebenkosten | keine Angabe |
| Heizkosten enthalten | Ja |
| Mietpreis pro m² | 17,5 € |
Flächen
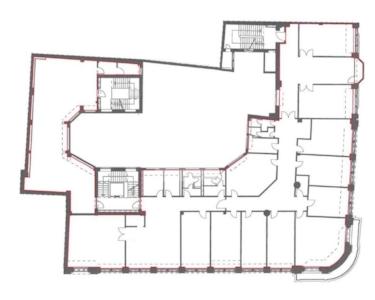
| Bürofläche | 862 m² |
| Bürofläche | 680 m² |
| Fläche teilbar ab | 680 m² |
| Maklerprovision | provisionsfrei |
Objekt Adresse
Reichsstraße 2
04109 Leipzig
Sonstige Angaben
| Zimmer | 14 |
| Verfügbar ab | keine Angabe |
Objektbeschreibung
Der Reichshof mit seiner markanten, historischen Fassade, befindet sich in Mitten der Fußgängerzone an der Reichsstraße Ecke Grimmaische Straße, gegenüber von Galeria Kaufhof. Die Büroetagen auf den Obergeschossen werden über den Eingang Reichsstraße oder Grimmaische Straße über Aufzuganlagen und Treppenhäuser erschlossen. Im Gebäude haben sich sowohl in den Büro- als auch in den Einzelhandelsflächen im Erdgeschoss bereits viele renommierte Unternehmen angesiedelt. Die Fläche im 3. Obergeschoss verfügt in Summe über 862 m² und ist bereits fertig ausgebaut. Sie kann entsprechend dem Raumprofil des Mieters ausgebaut und ausgestattet werden.
Die Büros verfügen derzeit über folgende Ausstattungsmerkmale:
- hochwertiger Vinylboden
- Bodentanks für die DV-Verkabelung
- getrennte Sanitäranlagen
- großer Besprechungsraum
Aktuell stehen folgende Flächen zur Verfügung, welche sowohl einzeln als auch zusammen angemietet werden können:
- ca. 862m² im 3. OG, teilbar ab 182m²
- ca. 560m² im 4. OG
Stellplätze stehen in den umliegenden Tiefgaragen und Parkplätzen zur Verfügung.
Die Büros verfügen derzeit über folgende Ausstattungsmerkmale:
- hochwertiger Vinylboden
- Bodentanks für die DV-Verkabelung
- getrennte Sanitäranlagen
- großer Besprechungsraum
Aktuell stehen folgende Flächen zur Verfügung, welche sowohl einzeln als auch zusammen angemietet werden können:
- ca. 862m² im 3. OG, teilbar ab 182m²
- ca. 560m² im 4. OG
Stellplätze stehen in den umliegenden Tiefgaragen und Parkplätzen zur Verfügung.
Lage des Objektes
Die zentrale Lage und das gewachsene, vielfältige Umfeld haben die historische Innenstadt zu einer der beliebtesten Geschäftsstandorte werden lassen. Alle wichtigen Institutionen, wie das Neue Rathaus, die verschiedensten Banken und die Leipziger Universität sind von hier aus innerhalb weniger Minuten zu erreichen. Von der S-Bahnstation am Markt sind es 2 Minuten zu Fuß, zum Hauptbahnhof 5 Minuten.
Sonstige Informationen
Der angegebene Mietpreis von 17,50 EUR/m² bis 19,50 EUR/m² abhängig von den mieterspezifischen Ausbaukosten und der Vertragslaufzeit und versteht sich zzgl. MwSt. & Betriebskostenvorauszahlung
Gern unterbreiten wir Ihnen Ihr persönliches Mietangebot.
Flur
Konferenzraum
Büro
Reichshof 3. OG