Exposé
Objektart:
Büro / Praxen
» Bueroflaeche
» Miete
Standort: Büro / Praxen »
Deutschland » Nordrhein-Westfalen » Mettmann (Kreis) » Ratingen
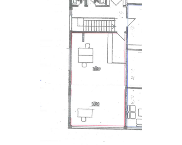
Ca. 60 m² großes Einzelbüro mit optionalem Lager und idealer Anbindung in Ratingen
Büro
Das Wichtigste auf einen Blick:
| Objektnummer: | 9101700 |
Preise
| Kaltmiete | 360 € |
| Nebenkosten | 200 € |
| Kaution | 1.050 € |
Flächen
| Nutzfläche | 60 m² |
| Gesamtfläche | 60 m² |
| Bürofläche | 60 m² |
Objekt Adresse
40878 Ratingen
Sonstige Angaben
| Baujahr | 1970 |
| Zimmer | 1 |
| Verfügbar ab | 01.01.2025 |
| Inserat befindet sich im Stockwerk | 1 |
Objektbeschreibung
Das ca. 60 m² große Büro befindet sich im 1. Obergeschoss eines Hallen- und Bürogebäudes in zentraler Lage mit guter Anbindung. Das Büro ist über eine Treppe erreichbar.
Optional können ein Lager auf zwei Ebenen und weitere ca. 85 m² Bürofläche und Sozialräume mit angemietet werden.
Der Energieausweis ist bestellt und liegt zur Besichtigung vor.
Optional können ein Lager auf zwei Ebenen und weitere ca. 85 m² Bürofläche und Sozialräume mit angemietet werden.
Der Energieausweis ist bestellt und liegt zur Besichtigung vor.
Ausstattung
Das Büro verfügt über einen Laminatboden in Holzoptik und Akkustikdecken.
Weitere Ausstattungsmerkmale stellen wir Ihnen gerne in der ersten Besichtigung vor.
Weitere Ausstattungsmerkmale stellen wir Ihnen gerne in der ersten Besichtigung vor.
Lage des Objektes
Das Büro befindet sich zwischen den Stadtteilen Mitte, Tiefenbroich und West zentral in Ratingen und ist direkt von der Kaiserswerther Straße aus erreichbar. Von hier aus erreichen Sie jeden Stadtteil in Kürze, auch zum Flughafen sind es nur knapp 10 Minuten.
Ratingen - die größte Stadt im Kreis Mettmann - ist durch ihre günstige Lage zwischen den Großstädten Essen und Düsseldorf, der Nähe zum Flughafen Düsseldorf und der ausgeprägten Infrastruktur, ein attraktiver Wohn- und Gewerbestandort. Optimale Verkehrsanbindung an die Autobahnen A3 Köln-Oberhausen, die A44 Ratingen-Mönchengladbach und die Autobahn A52 Essen-Düsseldorf / Roermond (NL). Sämtliche Schulformen, Kindergärten, Tagesstätten etc. sind in Ratingen vorhanden. Düsseldorf - die Landeshauptstadt von NRW - grenzt direkt an Ratingen. Das mittelalterliche Stadtzentrum, der Marktplatz mit denkmalgeschützten Gebäuden, die Stadtmauer, die Stadttore, die Wasserburg und die erste mechanische Baumwollspinnerei Cromford, dokumentieren die historische Kultur und sind attraktive Sehenswürdigkeiten. Das Kultur- und Freizeitangebot mit Museen, Veranstaltungen in der Stadthalle, im Stadttheater, auf der Freilichtbühne Blauer See und am Grünen See ist äußerst vielfältig. Zahlreiche Sportangebote bieten Vereine, Sportplätze, Eislaufhalle, Hallen- und Freibad. Die umfangreichen Wälder und Seen sind die grüne Lunge, der ruhende Pol und beliebtes Naherholungsgebiet der Ratinger Bevölkerung.
Ratingen - die größte Stadt im Kreis Mettmann - ist durch ihre günstige Lage zwischen den Großstädten Essen und Düsseldorf, der Nähe zum Flughafen Düsseldorf und der ausgeprägten Infrastruktur, ein attraktiver Wohn- und Gewerbestandort. Optimale Verkehrsanbindung an die Autobahnen A3 Köln-Oberhausen, die A44 Ratingen-Mönchengladbach und die Autobahn A52 Essen-Düsseldorf / Roermond (NL). Sämtliche Schulformen, Kindergärten, Tagesstätten etc. sind in Ratingen vorhanden. Düsseldorf - die Landeshauptstadt von NRW - grenzt direkt an Ratingen. Das mittelalterliche Stadtzentrum, der Marktplatz mit denkmalgeschützten Gebäuden, die Stadtmauer, die Stadttore, die Wasserburg und die erste mechanische Baumwollspinnerei Cromford, dokumentieren die historische Kultur und sind attraktive Sehenswürdigkeiten. Das Kultur- und Freizeitangebot mit Museen, Veranstaltungen in der Stadthalle, im Stadttheater, auf der Freilichtbühne Blauer See und am Grünen See ist äußerst vielfältig. Zahlreiche Sportangebote bieten Vereine, Sportplätze, Eislaufhalle, Hallen- und Freibad. Die umfangreichen Wälder und Seen sind die grüne Lunge, der ruhende Pol und beliebtes Naherholungsgebiet der Ratinger Bevölkerung.
Büro
Büro
Büro
Grundriss