Exposé
Objektart:
Grundstück
» Wohnen
» Kauf
Skitača, Istrien: Baugrundstück mit Villenprojekt
Angeboten von:
Alpha Luxe Group d.o.o.
Mate Vlasica 17
52440 Porec
Kroatien
www.alphaluxegroup.nekretnine1.hr
Ansprechpartner/in
Marijana Budimir| Mobil | +385 95 363 1892 |
Das Wichtigste auf einen Blick:
| Objektnummer: | 9091768 |
Preise
| Kaufpreis | 260.000 € |
| Nebenkosten | keine Angabe |
Flächen
| Gesamtfläche | 260 m² |
| Grundstücksfläche | 1 m² |
Objekt Adresse
52223 Raša
- Istrien
Sonstige Angaben
| Zimmer | 3 |
| Verfügbar ab | keine Angabe |
| Bad | 3 |
| Anzahl der Etagen im Haus | 0 |
| Bad | 3 |
Objektbeschreibung
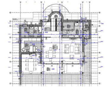
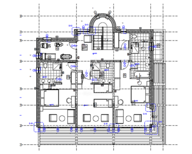
Auf einem 420 Meter über dem Meeresspiegel gelegenen Grundstück im ruhigen Ort Skitača bietet dieses außergewöhnliche Neubauanwesen luxuriöses Wohnen inmitten der Natur. Die Hauptvilla mit 260 m² Wohnfläche auf zwei Etagen wurde vom renommierten internationalen Architekten Valentin Bačić entworfen. Sie verfügt über ein großzügiges Wohn- und Esszimmer mit direktem Zugang zur Terrasse mit Meerblick, eine moderne Küche sowie einen Wellnessbereich mit Infrarotsauna. Im Obergeschoss befinden sich drei Schlafzimmer mit jeweils eigenem Bad, ein Fitnessraum und zusätzlicher Stauraum. Fußbodenheizung, Klimaanlage in allen Räumen und eine Genehmigung für eine 15-kW-Solaranlage sorgen für ganzjährigen Komfort und Energieeffizienz.
Das Anwesen umfasst zudem einen Infinity-Pool (50 m²) mit Meerblick, ein separates Gäste- oder Personalhaus (50 m²), einen Technikraum unter dem Pool sowie einen 30.000-Liter-Wassertank. Eine biologische Kläranlage liefert Grauwasser zur Gartenbewässerung. Optional ist ein Brunnen mit einer natürlichen Fördermenge von 250 Litern pro Minute möglich. Das rund 1.600 m² große Grundstück garantiert absolute Privatsphäre mit unverbaubarem Blick auf das Meer, da es im Süden an nicht bebaubares Land grenzt.
Nur 2,5 km vom herrlichen Strand von Ravni entfernt, gehört Skitača zu den unberührtesten und aussichtsreichsten Lagen Ostistriens. Die erhöhte Position bietet spektakuläre Meerblicke, Ruhe und viel Tageslicht – eine seltene Gelegenheit für Ferien oder Dauerwohnsitz.
Ihre Zufriedenheit ist unsere Mission. Wir freuen uns auf die Zusammenarbeit!
https://alphaluxegroup.de
ID CODE: ALG-3274
Das Anwesen umfasst zudem einen Infinity-Pool (50 m²) mit Meerblick, ein separates Gäste- oder Personalhaus (50 m²), einen Technikraum unter dem Pool sowie einen 30.000-Liter-Wassertank. Eine biologische Kläranlage liefert Grauwasser zur Gartenbewässerung. Optional ist ein Brunnen mit einer natürlichen Fördermenge von 250 Litern pro Minute möglich. Das rund 1.600 m² große Grundstück garantiert absolute Privatsphäre mit unverbaubarem Blick auf das Meer, da es im Süden an nicht bebaubares Land grenzt.
Nur 2,5 km vom herrlichen Strand von Ravni entfernt, gehört Skitača zu den unberührtesten und aussichtsreichsten Lagen Ostistriens. Die erhöhte Position bietet spektakuläre Meerblicke, Ruhe und viel Tageslicht – eine seltene Gelegenheit für Ferien oder Dauerwohnsitz.
Ihre Zufriedenheit ist unsere Mission. Wir freuen uns auf die Zusammenarbeit!
https://alphaluxegroup.de
ID CODE: ALG-3274