Exposé
Objektart:
Haus
» Einfamilienhaus
» Kauf
VODICE, Neubau, möbliertes Einfamilienhaus, Swimmingpool, Garten, Dachterrasse, Keller
Das Wichtigste auf einen Blick:
| Objektnummer: | 9079149 |
Preise
| Kaufpreis | 550.000 € |
| Nebenkosten | keine Angabe |
Flächen
| Gesamtfläche | 197 m² |
| Grundstücksfläche | 433 m² |
Objekt Adresse
22211 Vodice
- Dalmatien-Sibenik [Sibensko-Kninska]
Sonstige Angaben
| Baujahr | 2025 |
| Zimmer | 5 |
| Verfügbar ab | keine Angabe |
| Bad | 3 |
| Anzahl der Etagen im Haus | 0 |
| Bad | 3 |
Objektbeschreibung
!!!SUPER GELEGENHEIT!!!
VODICE – Zum Verkauf steht ein neues, modern eingerichtetes Familienhaus mit Swimmingpool in ruhiger Umgebung, 1000 m vom Stadtzentrum und 1400 m vom Meer entfernt!
Das interessante Einfamilienhaus steht auf einem 629 m2 großen Grundstück und verfügt über einen eingezäunten, gepflasterten Hof mit 433 m2, wo sich ein Swimmingpool mit 32 m2 großem Sonnendeck, ein Grill und ein Parkplatz befinden.
Das Haus ist aus hochwertigen Materialien gebaut und hat ein modernes Aussehen. Es ist ausgestattet mit einer Wasser-Fußbodenheizung in allen Räumen, Ariston-Klimaanlagen in allen Räumen, einem Heizsystem über eine Wärmepumpe, Vorbereitung für Sonnenkollektoren, einem Kamin, Qualitätskeramik in allen Räumen, PVC-Fenstern mit Rollläden, einer Steintreppe mit schmiedeeisernem Geländer, einer Pergola auf der Terrasse.
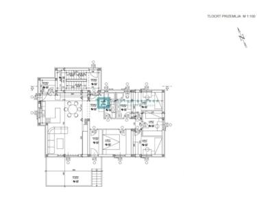
Das Haus verfügt über eine Gesamtnutzfläche von 197 m2 und erstreckt sich über drei Etagen: Keller + Erdgeschoss + Dachterrasse. Im Untergeschoss befindet sich ein 44,25 m² großer Mehrzweckraum. Über eine 12 m2 große Innentreppe gelangt man in das Erdgeschoss mit einer Gesamtfläche von 114,77 m2, das aus einem Eingang, Flur, Hauswirtschaftsraum, zwei Bädern, drei Schlafzimmern, einer geräumigen Küche mit offenem Esszimmer und einem Wohnzimmer mit Zugang zu einer schönen 20,70 m2 großen Terrasse besteht. Über eine geschlossene Treppe gelangt man auf eine 111,47 m2 große Dachterrasse, die als geselliger Außenbereich genutzt werden kann. Es verfügt auch über eine Whirlpool-Anlage.
Die Eigentumsdokumentation ist vollständig.
Das Haus wird voll möbliert verkauft.
Der Preis beträgt 550.000 €.
Für weitere Informationen kontaktieren Sie uns per E-Mail oder Telefon.
ID CODE: H-151-M
VODICE – Zum Verkauf steht ein neues, modern eingerichtetes Familienhaus mit Swimmingpool in ruhiger Umgebung, 1000 m vom Stadtzentrum und 1400 m vom Meer entfernt!
Das interessante Einfamilienhaus steht auf einem 629 m2 großen Grundstück und verfügt über einen eingezäunten, gepflasterten Hof mit 433 m2, wo sich ein Swimmingpool mit 32 m2 großem Sonnendeck, ein Grill und ein Parkplatz befinden.
Das Haus ist aus hochwertigen Materialien gebaut und hat ein modernes Aussehen. Es ist ausgestattet mit einer Wasser-Fußbodenheizung in allen Räumen, Ariston-Klimaanlagen in allen Räumen, einem Heizsystem über eine Wärmepumpe, Vorbereitung für Sonnenkollektoren, einem Kamin, Qualitätskeramik in allen Räumen, PVC-Fenstern mit Rollläden, einer Steintreppe mit schmiedeeisernem Geländer, einer Pergola auf der Terrasse.
Das Haus verfügt über eine Gesamtnutzfläche von 197 m2 und erstreckt sich über drei Etagen: Keller + Erdgeschoss + Dachterrasse. Im Untergeschoss befindet sich ein 44,25 m² großer Mehrzweckraum. Über eine 12 m2 große Innentreppe gelangt man in das Erdgeschoss mit einer Gesamtfläche von 114,77 m2, das aus einem Eingang, Flur, Hauswirtschaftsraum, zwei Bädern, drei Schlafzimmern, einer geräumigen Küche mit offenem Esszimmer und einem Wohnzimmer mit Zugang zu einer schönen 20,70 m2 großen Terrasse besteht. Über eine geschlossene Treppe gelangt man auf eine 111,47 m2 große Dachterrasse, die als geselliger Außenbereich genutzt werden kann. Es verfügt auch über eine Whirlpool-Anlage.
Die Eigentumsdokumentation ist vollständig.
Das Haus wird voll möbliert verkauft.
Der Preis beträgt 550.000 €.
Für weitere Informationen kontaktieren Sie uns per E-Mail oder Telefon.
ID CODE: H-151-M