Exposé
Objektart:
Büro / Praxen
» Buerohaus
» Miete
Standort: Büro / Praxen »
Deutschland » Sachsen » Leipzig, Stadt (Kreis) » Leipzig
BUERO.flächen mit 258 m² am Innenstadtring
Außenansicht
Das Wichtigste auf einen Blick:
| Objektnummer: | 9079544 |
Preise
| Miete für das Objekt | Auf Anfrage |
| Nebenkosten | 2,8 € |
| Heizkosten enthalten | Ja |
| Mietpreis pro m² | 14,5 € |
Flächen
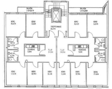
| Bürofläche | 258,59 m² |
| Bürofläche | 258,59 m² |
| Fläche teilbar ab | 258,59 m² |
| Maklerprovision | 3,0 Nettomonatsmieten 3,0 Nettomonatsmieten |
Objekt Adresse
04109 Leipzig
Sonstige Angaben
| Baujahr | 1996/1997 |
| Zimmer | 10 |
| Verfügbar ab | keine Angabe |
Objektbeschreibung
Die Büroeinheiten auf den Etagen werden über einen repräsentativen Eingangsbereich und einen Aufzug erschlossen. Im Gebäude haben sich eine Rechtsanwaltkanzlei, eine Versicherung sowie verschiedene Unternehmen niedergelassen. Der barrierefreie Mietbereich kann nach dem Raumprofil des Mieters ausgebaut und ausgestattet werden. Die Flächen verfügen über folgende Grundausstattung:
- separate WC-Anlagen
- Bodentanks für die Computerverkabelung
- teilweise Außenjalousien sowie Lamellen
- teilweise Deckenbeleuchtung
- 2 Balkone
In der hauseigenen Tiefgarage stehen Stellplätze zur Anmietung für Mitarbeiter zur Verfügung.
- separate WC-Anlagen
- Bodentanks für die Computerverkabelung
- teilweise Außenjalousien sowie Lamellen
- teilweise Deckenbeleuchtung
- 2 Balkone
In der hauseigenen Tiefgarage stehen Stellplätze zur Anmietung für Mitarbeiter zur Verfügung.
Lage des Objektes
Das 7-geschossige, 1996/1997 errichtete Geschäftshaus befindet sich am westlichen Innenstadtring von Leipzig. Von hier aus besteht eine sehr gute Anbindung an die B2 und an die Autobahnen A14 und A9. Das Stadtzentrum und der Hauptbahnhof sind innerhalb weniger Minuten fußläufig zu erreichen. In der unmittelbaren Nachbarschaft befindet sich die Medica Klinik, eine Apotheke und verschiedene Arztpraxen. Eine Straßenbahnstation befindet sich unmittelbar vor dem Gebäude.
Sonstige Informationen
Der Mietpreis richtet sich nach der Vertragslaufzeit sowie gewünschter Ausstattung und liegt voraussichtlich zwischen 14,50 EUR/m² EUR und 16,00 EUR/m². Gern unterbreiten wir Ihnen Ihr persönliches Mietangebot.
Innenansicht
Innenansicht Referenz
Innenansicht Referenz
Innenansicht
13
14
15
Mustergrundriss
Bestandsgrundriss