Exposé
Objektart:
Grundstück
» Wohnen
» Kauf
Standort: Grundstück »
Deutschland » Mecklenburg-Vorpommern » Ludwigslust (Kreis) » Wittenburg
***Wohnen im Grünen – arbeiten in der Stadt: Grundstücke mit bester Anbindung***
Titelbild
Das Wichtigste auf einen Blick:
| Objektnummer: | 9068689 |
Preise
| Kaufpreis | Auf Anfrage |
| Nebenkosten | keine Angabe |
| Kaufpreis pro m² | 180 € |
Flächen
| Gesamtfläche | 11.918 m² |
| Grundstücksfläche | 775 m² |
| Maklerprovision | 7,14% vom notariellen Kaufpreis |
Objekt Adresse
19243 Wittenburg
- Mecklenburg-Vorpommern
Sonstige Angaben
| Verfügbar ab | nach Absprache |
Objektbeschreibung
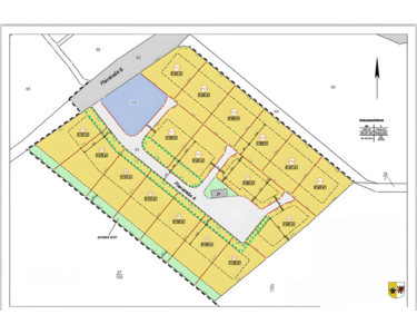
Am Rande eines lebendigen Stadtzentrums und zugleich unmittelbar an weite Feldflächen angrenzend, entsteht ein neues Wohngebiet, das urbanes Leben mit naturnahem Wohnen auf ideale Weise verbindet. Insgesamt 17 großzügig geschnittene Baugrundstücke stehen hier zur Verfügung, mit Grundstücksgrößen zwischen 631 m² und 775 m². Die Parzellierung umfasst unter anderem Flächen mit 631 m², 666 m², 656 m², 650 m², 647 m², 639 m², 708 m², 691 m², 665 m², 697 m², 737 m², 775 m², 746 m², 747 m², 765 m², 768 m² und 730 m².
Das Plangebiet mit einer Gesamtfläche von 18.570 m² bietet insgesamt 11.225 m² Wohnbaufläche im Bereich eines allgemeinen Wohngebietes. Ergänzt wird dies durch Verkehrsflächen für Erschließung, Planstraßen und Parkplätze mit zusammen 5.720 m² sowie Grünflächen für private Hausgärten und öffentliches Siedlungsgrün mit insgesamt 800 m². Ein 825 m² großes Regenrückhaltebecken sorgt für eine nachhaltige Entwässerung des Gebietes.
Die Bauweise ist offen gestaltet, wobei Einzel- und Doppelhäuser realisiert werden dürfen. Die zulässige Grundflächenzahl (GRZ) beträgt 0,3, um eine aufgelockerte Bebauung und großzügige Gartenflächen zu gewährleisten. Die Gebäudehöhe wird durch eine minimale Firsthöhe von 5,00 m und eine maximale Höhe von 8,50 m geregelt. Hinsichtlich der Dachform bietet der Bebauungsplan ebenfalls klare, aber flexible Vorgaben: Erlaubt sind Dachneigungen zwischen 25° und 45°, wobei Sattel-, Walm- und Krüppelwalmdächer realisiert werden dürfen.
Besonders attraktiv für Bauherren ist der große Gestaltungsspielraum innerhalb dieses Rahmens. Neben klassischen Einfamilienhäusern mit Satteldach ist auch der Bau von ebenerdigen Bungalows gestattet, was insbesondere bei barrierefreiem Wohnen von Vorteil ist. Die Stadt verzichtet bewusst auf die Festlegung von RAL-Farben für Dacheindeckungen oder Fassaden. Dadurch haben Bauherren freie Hand bei der Farbgestaltung, sofern diese sich im ortsüblichen Spektrum bewegt.
Der Kaufpreis für die voll erschlossenen Baugrundstücke beträgt 180 € pro Quadratmeter.
Je nach Grundstücksgröße ergibt sich somit ein individueller Gesamtpreis, der eine attraktive Investition in eine hochwertige Wohnlage mit nachhaltiger Wertentwicklung darstellt.
Mit seiner hervorragenden Lage in direkter Nähe zum Stadtzentrum und gleichzeitig mit Ausblick ins Grüne bietet dieses neue Wohngebiet eine seltene Kombination aus Ruhe, Nähe zur Natur und urbaner Infrastruktur. Es richtet sich an Menschen, die großzügiges, individuell gestaltbares Wohnen in einer harmonischen Nachbarschaft zu schätzen wissen.
Das Plangebiet mit einer Gesamtfläche von 18.570 m² bietet insgesamt 11.225 m² Wohnbaufläche im Bereich eines allgemeinen Wohngebietes. Ergänzt wird dies durch Verkehrsflächen für Erschließung, Planstraßen und Parkplätze mit zusammen 5.720 m² sowie Grünflächen für private Hausgärten und öffentliches Siedlungsgrün mit insgesamt 800 m². Ein 825 m² großes Regenrückhaltebecken sorgt für eine nachhaltige Entwässerung des Gebietes.
Die Bauweise ist offen gestaltet, wobei Einzel- und Doppelhäuser realisiert werden dürfen. Die zulässige Grundflächenzahl (GRZ) beträgt 0,3, um eine aufgelockerte Bebauung und großzügige Gartenflächen zu gewährleisten. Die Gebäudehöhe wird durch eine minimale Firsthöhe von 5,00 m und eine maximale Höhe von 8,50 m geregelt. Hinsichtlich der Dachform bietet der Bebauungsplan ebenfalls klare, aber flexible Vorgaben: Erlaubt sind Dachneigungen zwischen 25° und 45°, wobei Sattel-, Walm- und Krüppelwalmdächer realisiert werden dürfen.
Besonders attraktiv für Bauherren ist der große Gestaltungsspielraum innerhalb dieses Rahmens. Neben klassischen Einfamilienhäusern mit Satteldach ist auch der Bau von ebenerdigen Bungalows gestattet, was insbesondere bei barrierefreiem Wohnen von Vorteil ist. Die Stadt verzichtet bewusst auf die Festlegung von RAL-Farben für Dacheindeckungen oder Fassaden. Dadurch haben Bauherren freie Hand bei der Farbgestaltung, sofern diese sich im ortsüblichen Spektrum bewegt.
Der Kaufpreis für die voll erschlossenen Baugrundstücke beträgt 180 € pro Quadratmeter.
Je nach Grundstücksgröße ergibt sich somit ein individueller Gesamtpreis, der eine attraktive Investition in eine hochwertige Wohnlage mit nachhaltiger Wertentwicklung darstellt.
Mit seiner hervorragenden Lage in direkter Nähe zum Stadtzentrum und gleichzeitig mit Ausblick ins Grüne bietet dieses neue Wohngebiet eine seltene Kombination aus Ruhe, Nähe zur Natur und urbaner Infrastruktur. Es richtet sich an Menschen, die großzügiges, individuell gestaltbares Wohnen in einer harmonischen Nachbarschaft zu schätzen wissen.
Ausstattung
- Grundstücksanzahl: 17 voll erschlossene Baugrundstücke
- Grundstücksgrößen: Zwischen 631 m² und 775 m²
- Lage: Stadtnah mit direkter Feldrandlage
- Bauweise: Offene Bauweise
- Zulässige Haustypen: Einfamilienhäuser und Doppelhäuser
- Zulässiger Baustil:
-Klassisches Einfamilienhaus mit Satteldach
-Bungalowstil möglich
- Firsthöhe:
-Mindestens 5,00 m
-Maximal 8,50 m
- Dachformen: Sattel-, Walm- und Krüppelwalmdächer
- Dachneigung: 25° bis 45°
- Grundflächenzahl (GRZ): Max. 0,3
-Flächenaufteilung im Plangebiet:
-Wohnbaufläche: 11.225 m²
-Verkehrsflächen inkl. Straßen und Parkplätze: 5.720 m²
-Grünflächen (privat/öffentlich): 800 m²
-Regenrückhaltebecken: 825 m²
- Farbgestaltung: Keine Festlegung auf RAL-Farben – freie Wahl innerhalb des üblichen Spektrums
- Erschließung: Voll erschlossen inkl. Straßen, Parkplätzen und Entwässerung
- Besonderheit: Großzügiger Gestaltungsspielraum für Bauherren
- Grundstücksgrößen: Zwischen 631 m² und 775 m²
- Lage: Stadtnah mit direkter Feldrandlage
- Bauweise: Offene Bauweise
- Zulässige Haustypen: Einfamilienhäuser und Doppelhäuser
- Zulässiger Baustil:
-Klassisches Einfamilienhaus mit Satteldach
-Bungalowstil möglich
- Firsthöhe:
-Mindestens 5,00 m
-Maximal 8,50 m
- Dachformen: Sattel-, Walm- und Krüppelwalmdächer
- Dachneigung: 25° bis 45°
- Grundflächenzahl (GRZ): Max. 0,3
-Flächenaufteilung im Plangebiet:
-Wohnbaufläche: 11.225 m²
-Verkehrsflächen inkl. Straßen und Parkplätze: 5.720 m²
-Grünflächen (privat/öffentlich): 800 m²
-Regenrückhaltebecken: 825 m²
- Farbgestaltung: Keine Festlegung auf RAL-Farben – freie Wahl innerhalb des üblichen Spektrums
- Erschließung: Voll erschlossen inkl. Straßen, Parkplätzen und Entwässerung
- Besonderheit: Großzügiger Gestaltungsspielraum für Bauherren
Lage des Objektes
Das Baugebiet befindet sich in attraktiver Wohnlage am südwestlichen Stadtrand von Wittenburg, einer charmanten Kleinstadt im Landkreis Ludwigslust-Parchim in Mecklenburg-Vorpommern. Die unmittelbare Nähe zur Natur sowie die ausgezeichnete Anbindung an städtische Infrastruktur machen diesen Standort besonders lebens- und familienfreundlich.
Wittenburg selbst bietet eine sehr gute Nahversorgung mit Supermärkten, Bäckereien, Apotheken, ärztlicher Versorgung sowie mehreren Kindergärten und Schulen. Auch Freizeitmöglichkeiten wie Sportvereine, das Alpincenter Wittenburg und die umliegende Natur mit zahlreichen Rad- und Wanderwegen sorgen für eine hohe Lebensqualität.
Trotz der ruhigen Lage ist die Anbindung an den überregionalen Verkehr hervorragend. Die Autobahn A24 ist in wenigen Minuten erreichbar und verbindet Wittenburg direkt mit den Großstädten Hamburg (ca. 60 Minuten Fahrzeit) und Berlin (ca. 2 Stunden Fahrzeit). Die nahegelegene Bundesstraße B321 führt direkt in die Kreisstadt Ludwigslust sowie weiter in Richtung Schwerin.
Auch der öffentliche Nahverkehr ist gut ausgebaut: Regionale Buslinien binden Wittenburg zuverlässig an das Umland und an den nächsten Bahnhof in Hagenow-Land oder Schwerin, von wo aus eine schnelle Weiterreise per Zug möglich ist.
Durch die Kombination aus idyllischer Feldrandlage, städtischer Nähe und exzellenter Verkehrsanbindung bietet dieses neue Wohngebiet einen idealen Wohnstandort für Familien, Berufspendler und alle, die naturnah und dennoch zentral leben möchten.
Wittenburg selbst bietet eine sehr gute Nahversorgung mit Supermärkten, Bäckereien, Apotheken, ärztlicher Versorgung sowie mehreren Kindergärten und Schulen. Auch Freizeitmöglichkeiten wie Sportvereine, das Alpincenter Wittenburg und die umliegende Natur mit zahlreichen Rad- und Wanderwegen sorgen für eine hohe Lebensqualität.
Trotz der ruhigen Lage ist die Anbindung an den überregionalen Verkehr hervorragend. Die Autobahn A24 ist in wenigen Minuten erreichbar und verbindet Wittenburg direkt mit den Großstädten Hamburg (ca. 60 Minuten Fahrzeit) und Berlin (ca. 2 Stunden Fahrzeit). Die nahegelegene Bundesstraße B321 führt direkt in die Kreisstadt Ludwigslust sowie weiter in Richtung Schwerin.
Auch der öffentliche Nahverkehr ist gut ausgebaut: Regionale Buslinien binden Wittenburg zuverlässig an das Umland und an den nächsten Bahnhof in Hagenow-Land oder Schwerin, von wo aus eine schnelle Weiterreise per Zug möglich ist.
Durch die Kombination aus idyllischer Feldrandlage, städtischer Nähe und exzellenter Verkehrsanbindung bietet dieses neue Wohngebiet einen idealen Wohnstandort für Familien, Berufspendler und alle, die naturnah und dennoch zentral leben möchten.
Sonstige Informationen
Eine Besichtigung sagt mehr als jede Beschreibung, bei Interesse zögern Sie nicht und vereinbaren Sie einen unverbindlichen Termin. Wir bieten nicht nur eine kostenlose Hotline, sondern auch einen Service am Wochenende an.
Bei Interesse geben Sie bitte immer Ihre vollständigen Kontaktdaten an.
Die Objektbeschreibung beruht ganz oder zum Teil auf Angaben des Eigentümers. Für die Richtigkeit oder Vollständigkeit übernehmen wir keine Gewähr. Die Provision in Höhe von 7,14 % des Kaufpreises (inkl.19 %MwSt.) wird vom Käufer getragen und ist verdient und zahlbar an FALC Immobilien Gadebusch bei Kaufvertragsabschluss.
Sie haben auf Anhieb nichts gefunden oder suchen Sie etwas ganz bestimmtes? Teilen Sie uns einfach mit was Sie suchen und wonach wir für Sie die Augen offenhalten dürfen. Profitieren Sie von den Vorteilen einer professionellen Maklersuche. Der Suchauftrag ist unverbindlich. Auf unserer Homepage www.falcimmo.de unter der Rubrik Immobiliensuche halten wir für Sie zum einen den Onlinesuchauftrag bereit, haben aber auch viele andere nützliche Informationen für Kaufinteressenten und Eigentümer.
Parzellenplan Wittenburg
Lageplan