Exposé
Objektart:
Haus
» Einfamilienhaus
» Kauf
Standort: Haus »
Deutschland » Baden-Württemberg » Neckar-Odenwald-Kreis (Kreis) » Buchen
Tolles Anwesen - 4 Schlaf-/Kinder-/Arbeitszimmer - Pool ist nicht inkludiert.
EFH-146-35-150
Angeboten von:
1.2.3. Bauberatung - Horst Hellman
Bahnhofstr. 66
76751 Jockgrim
Telefon:01727689327
Fax:072719812221
Ansprechpartner/in
Herr Horst Hellmann| Telefon: | +49 172 7689327 |
| Mobil | +49 172 7689327 |
| Fax: | +49 7271 9812221 |
Das Wichtigste auf einen Blick:
| Objektnummer: | 9059139 |
Preise
| Kaufpreis | 520.200 € |
| Nebenkosten | keine Angabe |
Flächen
| Wohnfläche | 137,47 m² |
| Nutzfläche | 145,86 m² |
| Grundstücksfläche | 1.010 m² |
| Maklerprovision | Der Maklercourtage für das Grundstück beträgt 4.522 €/brutto. |
Objekt Adresse
74722 Buchen
- Baden-Württemberg
Sonstige Angaben
| Baujahr | 2025 |
| Zimmer | 5 |
| Verfügbar ab | keine Angabe |
| Bad | 1 |
| Anzahl der Etagen im Haus | 2 |
| Küche | Offene Küche |
| Bad | 1 |
| Bad | Dusche, Wanne, Fenster |
| Boden | Fliesen, Estrich |
| Terrassen | 1 |
| Heizungsart | Fußbodenheizung |
| Energieträger/Befeuerung | Luft-Wärme-Pumpe |
Objektbeschreibung
Akzente setzen ist das Stichwort.
Dieses Haus besticht nicht nur durch seine moderne wie auch zeitlose Bauweise, sondern auch durch seine optische Abgrenzung.
Ein offener Wohn- und Essbereich mit offener Küche ist der perfekte Ort für Familienabende. Von Spieleabend bis zum Festmahl sind der Belebung dieser Räume keine Grenzen gesetzt. Das eingeplante Gäste- oder auch Arbeitszimmer erschafft neue Möglichkeiten der räumlichen Nutzung und schafft einen Rückzugsraum im unteren Wohnbereich.
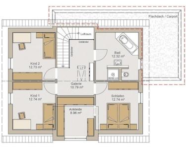
Als Highlight dient in diesem schmucken Wohntraum der Elternbereich mit Ankleidezimmer. Um auch den Kleinsten den größten Platz bieten zu können, bestechen die beiden Kinderzimmer mit einer jeweiligen Größe von 13 m².
Eine Wellness-Oase unter dem heimischen Dach? Mit diesem Entwurf ist das möglich. Er glänzt vor allem durch das große Hauptbadezimmer im Obergeschoss.
Durch den optionalen Carport in Verlängerung zum Vordach des Hauseingangs bieten sich kurze Wege, die Sie vor Wind und Wetter schützen.
Dieses Haus besticht nicht nur durch seine moderne wie auch zeitlose Bauweise, sondern auch durch seine optische Abgrenzung.
Ein offener Wohn- und Essbereich mit offener Küche ist der perfekte Ort für Familienabende. Von Spieleabend bis zum Festmahl sind der Belebung dieser Räume keine Grenzen gesetzt. Das eingeplante Gäste- oder auch Arbeitszimmer erschafft neue Möglichkeiten der räumlichen Nutzung und schafft einen Rückzugsraum im unteren Wohnbereich.
Als Highlight dient in diesem schmucken Wohntraum der Elternbereich mit Ankleidezimmer. Um auch den Kleinsten den größten Platz bieten zu können, bestechen die beiden Kinderzimmer mit einer jeweiligen Größe von 13 m².
Eine Wellness-Oase unter dem heimischen Dach? Mit diesem Entwurf ist das möglich. Er glänzt vor allem durch das große Hauptbadezimmer im Obergeschoss.
Durch den optionalen Carport in Verlängerung zum Vordach des Hauseingangs bieten sich kurze Wege, die Sie vor Wind und Wetter schützen.
Ausstattung
Unser Angebot beinhaltet das angebotene Einfamilienhaus 35-146-150 inklusive dem Grundstück gemäß Bau-und Leistungsbeschreibung in folgender Variante (=Fast Fertig):
Die Highlights Ihres Hauses:
- ENEV: KfW-EH-40-Standard
- Architektenleistung & Statik & Bauleitung inklusive
- Fußbodenheizung im Erdgeschoss & Dachgeschoss
- WÄRMEPUMPE von namhaften Herstellern
- Vorbereitung für Photovoltaikanlage (PV)
- Wärmegedämmte Bodenplatte inklusive
- Wärmedämmende wohngesunde Außenfertigteilwände
- Innenwände zusätzlich beidseitig mit OSB 4 Platten beplankt
- Großzügige Dachüberstände
- Dachkonstruktion mit einer Schneelast von 2,5 kN/m² bereits im Standard
- Kniestockhöhe: 150 cm
- hochwertige Thermofenster mit 3-fach-Verglasung
- gedämmte Rollläden mit ALU-Lamelen in Erdgeschoss & Dachgeschoss
- Außenfensterbänke aus Alu oder Granit
- Innenfensterbänke aus Granit
- hochwertige, repräsentative und sicherheitsgeprüfte Massive Holzhaustüre
- massive Echtholztreppe
- Außenputz in verschiedenen Farben
- exklusive Badkeramik und Armaturen
- Badewanne inklusive Armaturen
- Bad und Gäste-WC inkl. Boden- u. Wandfliesen - bereits gefliest
- Haustechnikraum Bodenfliesen - bereits gefliest
- Barrierefrei und bodenebene geflieste Dusche inkl. Armaturen
Bei der hier angebotenen Variante FAST FERTIG sind ihre Eigenleistungen: Maler-/Spachelarbeiten, Bodenbeläge (außer Bad/Gäste-WC/Hauswirtschaftsraum - die sind bereits gefliest), Innentüren.
Vorteil bei FastFertig:
Ihre Eingenleistungen sind für Sie und die finanzierende Bank echtes Geld wert!
Ihre Eingenleistung ist gleich Ihr zusätzliches Eigenkapital! In der Regel über 20.000 €!
Bei der Variante SCHLÜSSELFERTIG ist das Haus inkl. Maler-/Spachtelarbeiten, Bodenbelägen, Fliesenarbeiten und Innentüren. Also Fertig zum EINZUG.
Wir garantieren Ihnen jederzeit klare Abläufe, eine sichere Preiskalkulation und eine termingerechte Bauübergabe.
Die Highlights Ihres Hauses:
- ENEV: KfW-EH-40-Standard
- Architektenleistung & Statik & Bauleitung inklusive
- Fußbodenheizung im Erdgeschoss & Dachgeschoss
- WÄRMEPUMPE von namhaften Herstellern
- Vorbereitung für Photovoltaikanlage (PV)
- Wärmegedämmte Bodenplatte inklusive
- Wärmedämmende wohngesunde Außenfertigteilwände
- Innenwände zusätzlich beidseitig mit OSB 4 Platten beplankt
- Großzügige Dachüberstände
- Dachkonstruktion mit einer Schneelast von 2,5 kN/m² bereits im Standard
- Kniestockhöhe: 150 cm
- hochwertige Thermofenster mit 3-fach-Verglasung
- gedämmte Rollläden mit ALU-Lamelen in Erdgeschoss & Dachgeschoss
- Außenfensterbänke aus Alu oder Granit
- Innenfensterbänke aus Granit
- hochwertige, repräsentative und sicherheitsgeprüfte Massive Holzhaustüre
- massive Echtholztreppe
- Außenputz in verschiedenen Farben
- exklusive Badkeramik und Armaturen
- Badewanne inklusive Armaturen
- Bad und Gäste-WC inkl. Boden- u. Wandfliesen - bereits gefliest
- Haustechnikraum Bodenfliesen - bereits gefliest
- Barrierefrei und bodenebene geflieste Dusche inkl. Armaturen
Bei der hier angebotenen Variante FAST FERTIG sind ihre Eigenleistungen: Maler-/Spachelarbeiten, Bodenbeläge (außer Bad/Gäste-WC/Hauswirtschaftsraum - die sind bereits gefliest), Innentüren.
Vorteil bei FastFertig:
Ihre Eingenleistungen sind für Sie und die finanzierende Bank echtes Geld wert!
Ihre Eingenleistung ist gleich Ihr zusätzliches Eigenkapital! In der Regel über 20.000 €!
Bei der Variante SCHLÜSSELFERTIG ist das Haus inkl. Maler-/Spachtelarbeiten, Bodenbelägen, Fliesenarbeiten und Innentüren. Also Fertig zum EINZUG.
Wir garantieren Ihnen jederzeit klare Abläufe, eine sichere Preiskalkulation und eine termingerechte Bauübergabe.
Lage des Objektes
Das Grundstück befindet sich in Buchen (Odenwald).
Das Grundstück ist über einen externen Partner/Makler/Eigentümer zu erwerben.
Die Maklercourtage wird NUR für das Grundstück berechnet und fällig.
Das Grundstück ist, nach Auskunft des Verkäufers teilerschlossen. Das Grundstück ist sofort bebaubar.
** BITTE HABEN SIE VERSTÄNDNIS; DASS WIR OHNE EIN PERSÖNLICHES GESPRÄCH ÜBER DAS ANGEBOTENE HAUS KEINE GRUNDSTÜCKSDATEN WEITERLEITEN**
Sie haben bereits ein Grundstück? Dann lassen Sie sich beraten, wie wir Ihre Hausbauwünsche erfüllen können.
Sie möchten ein anderes Haus auf diesem Grundstück, oder Sie möchten ein anderes Grundstück zu diesem Haus? Dann rufen Sie uns einfach an - wir beraten Sie sehr gerne.
Das Grundstück ist über einen externen Partner/Makler/Eigentümer zu erwerben.
Die Maklercourtage wird NUR für das Grundstück berechnet und fällig.
Das Grundstück ist, nach Auskunft des Verkäufers teilerschlossen. Das Grundstück ist sofort bebaubar.
** BITTE HABEN SIE VERSTÄNDNIS; DASS WIR OHNE EIN PERSÖNLICHES GESPRÄCH ÜBER DAS ANGEBOTENE HAUS KEINE GRUNDSTÜCKSDATEN WEITERLEITEN**
Sie haben bereits ein Grundstück? Dann lassen Sie sich beraten, wie wir Ihre Hausbauwünsche erfüllen können.
Sie möchten ein anderes Haus auf diesem Grundstück, oder Sie möchten ein anderes Grundstück zu diesem Haus? Dann rufen Sie uns einfach an - wir beraten Sie sehr gerne.
Sonstige Informationen
INDIVIDUELLE TRAUMHÄUSER
Ihre Vorteile:
* Festpreisgarantie 18 Monate
* Alle Häuser sind bereits im Standard mehr als 50 % besser als es die ENEV-Anforderungen
* Ausstattung mit deutschen Markenprodukten
* Individuelles Bauen nach Ihren Wünschen ist unsere NORMALITÄT!
* mehr als 1.000 Haustypen: schlüsselfertig, energieeffizient - in zertifizierter Qualität.
* wirtschaftliche Planungssicherheit für Sie
* Unterstützung bei Ihre Baufinanzierung (siehe separate Anlage dieses Angebotes)
* Alles aus einer Hand
EFH-146-35-150 - Grundriss EG
EFH-146-35-150 - Grundriss OG