Exposé
Objektart:
Büro / Praxen
» Buerohaus
» Miete
Standort: Büro / Praxen »
Deutschland » Sachsen » Leipzig, Stadt (Kreis) » Leipzig
BUERO. und PRAXIS.flächen mit 160 m² am Hauptbahnhof Leipzig
Außenansicht
Das Wichtigste auf einen Blick:
| Objektnummer: | 9055397 |
Preise
| Miete für das Objekt | Auf Anfrage |
| Nebenkosten | keine Angabe |
| Heizkosten enthalten | Ja |
| Mietpreis pro m² | 15 € |
Flächen
| Bürofläche | 160 m² |
| Bürofläche | 160 m² |
| Fläche teilbar ab | 160 m² |
| Maklerprovision | provisionsfrei |
Objekt Adresse
Rosentalgasse 5
04105 Leipzig
Sonstige Angaben
| Verfügbar ab | keine Angabe |
Objektbeschreibung
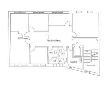
Das kleine Geschäftshaus mit seinen 5 Büroetagen wird über einen barrierefreien Eingang mit Aufzug erschlossen. Die Mietfläche wird aktuell als Praxis genutzt und ist bei Neuvermietung entsprechend des Raumprofils des Nutzers aufteilbar. Aus den Fenstern hat man einen beeindruckenden Blick über den Elstermühlgraben und die villenartige Umgebungsbebauung. Im Objekt haben sich bereits unterschiedlichste Unternehmen angesiedelt.
Die Büroflächen verfügen über folgende Ausstattungsmerkmale:
- hochwertiger Vinylfußboden
- getrennte Toiletten
- Teeküche
In der Rosentalgasse und vor dem nahegelegenen Naturkundemuseum stehen zahlreiche Kurzzeitparkplätze für Ihre Kunden zur Verfügung. Vor dem Gebäude befindet sich ein Parkplatz für Kurzparker und eine Car Sharing Station.
Die Büroflächen verfügen über folgende Ausstattungsmerkmale:
- hochwertiger Vinylfußboden
- getrennte Toiletten
- Teeküche
In der Rosentalgasse und vor dem nahegelegenen Naturkundemuseum stehen zahlreiche Kurzzeitparkplätze für Ihre Kunden zur Verfügung. Vor dem Gebäude befindet sich ein Parkplatz für Kurzparker und eine Car Sharing Station.
Lage des Objektes
Das 1994 errichtete Wohn- und Geschäftshaus am Innenstadtring ist vom Hauptbahnhof in Richtung Waldstraßenviertel in einer kleinen ruhigen Seitenstraße gelegen. Von hier aus sind der Hauptbahnhof, die Leipziger Innenstadt selbst und auch die Straßenbahnstationen am Goerdelerring innerhalb von wenigen Minuten zu Fuß erreichbar. Durch den angrenzenden Innenstadtring sind Sie auch mit den Auto optimal angebunden.
Sonstige Informationen
Die Mietpreise im Gebäude liegen je nach Lage, Ausstattung und Vertragslaufzeit bei 15,00 EUR/m² - 17,50 EUR.
Büroanmietung leicht gemacht?
Bitte sprechen Sie uns an, gern stellen wir Ihnen eine Auswahl geeigneter Flächenangebote zusammen. Für Fragen, ein persönliches Gespräch oder auch eine persönliche Terminvereinbarung stehen wir Ihnen gern telefonisch unter 0341 | 5643000 zur Verfügung.
Außenansicht
Innenansicht
Innenansicht
Innenansicht ohne Aufteilung
Hausflur
Ansicht vom Ring
1.OG Grundriss