Exposé
Objektart:
Haus
» Bungalow
» Kauf
Standort: Haus »
Deutschland » Brandenburg » Havelland (Kreis) » Paaren in Glien
Hier könnten kleine Kinderfüße das Laufen lernen! Bungalow sucht Familie!
Das Wichtigste auf einen Blick:
| Objektnummer: | 9050282 |
Preise
| Kaufpreis | 443.995 € |
| Nebenkosten | keine Angabe |
Flächen
| Wohnfläche | 107,43 m² |
| Nutzfläche | 107 m² |
| Grundstücksfläche | 500 m² |
Objekt Adresse
14621 Paaren in Glien
Sonstige Angaben
| Zimmer | 3 |
| Verfügbar ab | keine Angabe |
| Bad | 1 |
| Anzahl der Etagen im Haus | 1 |
| Küche | Offene Küche |
| Bad | 1 |
| Bad | Dusche, Wanne, Fenster |
| Energietyp | KfW-40 |
| Energieträger/Befeuerung | Luft-Wärme-Pumpe |
Objektbeschreibung
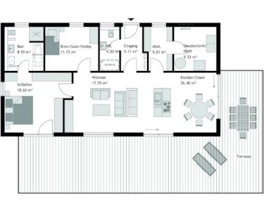
Erleben Sie die Freiheit und Flexibilität, Ihren Traum vom eigenen Bungalow mit STREIF zu verwirklichen. Dieses projektierte Objekt bietet Ihnen auf einer Wohnfläche von 107,43 m² ein durchdachtes Raumkonzept mit 3 Zimmern, das sich perfekt an Ihre Lebensbedürfnisse anpasst. Der Bungalow ist in Paaren in Glien gelegen und verspricht ein komfortables Wohnerlebnis auf einer Ebene. Auf einem großzügigen Grundstück von 500 m² können Sie Ihre Gartenträume wahr werden lassen. Die offene Gestaltung der Räume schafft eine einladende Atmosphäre, die zum Verweilen einlädt. Intelligente Planung und hochwertige Materialien gewährleisten Langlebigkeit und Energieeffizienz im Einklang mit dem KFW40 Standard.
Ausstattung
Der Bungalow besticht durch seine gehobene Ausstattung und moderne technische Lösungen, die höchsten Wohnkomfort garantieren. Das Herzstück bildet das Badezimmer, ausgestattet mit einer Dusche, einer Wanne und einem Fenster sowie einem zusätzlichen Gäste-WC für mehr Flexibilität im Alltag. Eine Klimaanlage sorgt ganzjährig für ein angenehmes Raumklima. Die Befeuerung erfolgt über eine effiziente Wärmepumpe, die nicht nur umweltfreundlich ist, sondern auch langfristig Heizkosten spart.
Lage des Objektes
Paaren in Glien bietet Ihnen eine ruhige Wohnlage mit einer hervorragenden Anbindung an das städtische Leben. Die Umgebung zeichnet sich durch ihre naturnahe Lage aus, die zahlreiche Freizeitmöglichkeiten für Naturliebhaber und Familien bereithält. Gleichzeitig profitieren Sie von der guten Infrastruktur der Region, die Ihnen alle wichtigen Einrichtungen des täglichen Bedarfs in unmittelbarer Nähe bietet.
Sonstige Informationen
Dieses projektiertes Objekt umfasst die Ausbaustufe 3 - FastFertigPlus: Hierbei sind haustechnische Gewerke wie Heizung, Lüftung, Sanitär und Estrich bereits von Fachbetrieben erledigt worden. Diese Ausbaustufe ermöglicht es Ihnen, sich aktiv am Bauprozess Ihres Hauses zu beteiligen und durch Eigenleistung in Form einer Muskelhypothek Kosten zu sparen. Der Einstiegspreis für den Haustyp City beginnt bei 344.375 EUR. Lassen Sie sich von unserem Bauberater-Team umfassend beraten und wählen Sie aus vielfältigen Möglichkeiten das passende Hauskonzept für Ihre individuellen Bedürfnisse.