Exposé
Objektart:
Haus
» Bungalow
» Kauf
Standort: Haus »
Deutschland » Brandenburg » Havelland (Kreis) » Nauen
Traumhaft schöner Bungalow!
Das Wichtigste auf einen Blick:
| Objektnummer: | 9050280 |
Preise
| Kaufpreis | 598.955 € |
| Nebenkosten | keine Angabe |
Flächen
| Wohnfläche | 107,43 m² |
| Nutzfläche | 107 m² |
| Grundstücksfläche | 688 m² |
Objekt Adresse
14641 Nauen
Sonstige Angaben
| Zimmer | 3 |
| Verfügbar ab | keine Angabe |
| Bad | 1 |
| Anzahl der Etagen im Haus | 1 |
| Küche | Offene Küche |
| Bad | 1 |
| Bad | Dusche, Wanne, Fenster |
| Energietyp | KfW-40 |
| Energieträger/Befeuerung | Luft-Wärme-Pumpe |
Objektbeschreibung
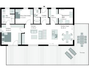
Dieses einzigartige Bungalow-Projekt in Nauen bietet Ihnen die perfekte Möglichkeit, Ihren Traum vom Eigenheim zu verwirklichen. Auf einer großzügigen Wohnfläche von 107,43 m² und einem weitläufigen Grundstück von 688 m² genießen Sie ein Leben in moderner Eleganz und höchstem Wohnkomfort. Der Bungalow mit einem Stockwerk besticht durch seine durchdachte Raumaufteilung mit insgesamt 3 Zimmern, darunter zwei gemütliche Schlafzimmer und ein luxuriöses Badezimmer, das sowohl mit Dusche als auch Wanne ausgestattet ist. Zusätzlich steht Ihnen ein praktisches Gäste-WC zur Verfügung. Dieser Bungalow erfüllt die höchsten Ansprüche an modernes Wohnen und lässt keine Wünsche offen.
Ausstattung
Die gehobene Ausstattung dieses Hauses wird Sie begeistern. Eine integrierte Klimaanlage sorgt für angenehme Temperaturen das ganze Jahr über. Die Beheizung erfolgt umweltfreundlich mittels einer effizienten Wärmepumpe, die nicht nur Ihre Energiekosten senkt, sondern auch einen Beitrag zum Umweltschutz leistet. Das Haus erfüllt den KFW40-Standard, was für eine hervorragende Energieeffizienz steht und sich positiv auf Ihre Nebenkosten auswirkt.
Lage des Objektes
Der Standort in Nauen bietet eine ideale Kombination aus Ruhe und guter Anbindung an die städtische Infrastruktur. Genießen Sie die Vorzüge einer ländlichen Umgebung ohne auf die Nähe zur Stadt verzichten zu müssen. Nauen bietet zahlreiche Freizeitmöglichkeiten und eine gute Infrastruktur mit Schulen, Einkaufsmöglichkeiten und öffentlichen Verkehrsmitteln in unmittelbarer Nähe.
Sonstige Informationen
Dieses projektierte Objekt umfasst die Ausbaustufe 3 - FastFertigPlus: Es beinhaltet bereits eine Sanitär-Grundausstattung, während haustechnische Gewerke wie Heizung, Lüftung, Sanitär und Estrich von Fachbetrieben ausgeführt werden. Der Preis für das Haus City beginnt bei 344.375 EUR. Mit der Möglichkeit, Eigenleistung in Form einer Muskelhypothek einzubringen, sparen Sie bares Geld und profitieren von verkürzten Kreditlaufzeiten oder geringeren Zinsen. Unser Bauberater-Team unterstützt Sie bei allen Entscheidungen rund um die Planung Ihres Fertighaus Bungalows.