Exposé
Objektart:
Haus
» Bungalow
» Kauf
Standort: Haus »
Deutschland » Brandenburg » Havelland (Kreis) » Nauen
"Unabhängig wohnen, frei sein, durchatmen"
Das Wichtigste auf einen Blick:
| Objektnummer: | 9050271 |
Preise
| Kaufpreis | 646.415 € |
| Nebenkosten | keine Angabe |
Flächen
| Wohnfläche | 107,43 m² |
| Nutzfläche | 107 m² |
| Grundstücksfläche | 801 m² |
Objekt Adresse
14641 Nauen
Sonstige Angaben
| Zimmer | 3 |
| Verfügbar ab | keine Angabe |
| Bad | 1 |
| Anzahl der Etagen im Haus | 1 |
| Küche | Offene Küche |
| Bad | 1 |
| Bad | Dusche, Wanne, Fenster |
| Energietyp | KfW-40 |
| Energieträger/Befeuerung | Luft-Wärme-Pumpe |
Objektbeschreibung
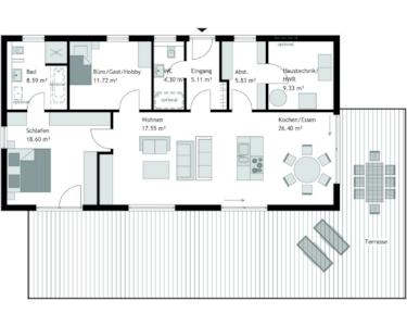
Erleben Sie modernen Wohnkomfort in einem maßgeschneiderten Bungalow, der alle Ihre Wünsche erfüllt. Unser aktuelles Projekt in Nauen bietet Ihnen die Möglichkeit, einen individuellen Bungalow zu gestalten, der auf einem großzügigen Grundstück von 801 m² liegt. Mit einer Wohnfläche von 107,43 m² und einer intelligenten Raumaufteilung über eine Etage hinweg, bietet dieser Bungalow drei helle Zimmer, darunter zwei Schlafzimmer und ein stilvolles Badezimmer mit Dusche, Wanne und Fenster sowie ein zusätzliches Gäste-WC. Perfekt für Paare oder kleine Familien, die das Leben auf einer Ebene genießen möchten.
Ausstattung
Der Bungalow überzeugt durch seine gehobene Ausstattung und moderne Technik. Eine Klimaanlage sorgt auch an heißen Tagen für angenehme Temperaturen. Die Beheizung erfolgt über eine effiziente Wärmepumpe, die nicht nur umweltfreundlich ist, sondern auch Ihren Geldbeutel schont. Das Objekt entspricht dem KFW40 Standard und steht somit für nachhaltiges Wohnen mit geringem Energieverbrauch.
Lage des Objektes
Nauen bietet Ihnen eine ideale Kombination aus ländlicher Ruhe und städtischer Nähe. Die Stadt verfügt über eine hervorragende Infrastruktur mit Schulen, Einkaufsmöglichkeiten und Freizeiteinrichtungen in unmittelbarer Nähe. Genießen Sie entspannte Spaziergänge in der Natur oder nutzen Sie die schnellen Verbindungen nach Berlin für kulturelle Erlebnisse und berufliche Pendelwege.
Sonstige Informationen
Dieses projektierte Objekt umfasst die Ausbaustufe 'FastFertigPlus', welche Ihnen eine perfekte Balance zwischen Eigenleistung und professionellem Handwerk bietet. Während Sie bei der Erstellung Ihres Hauses aktiv mitwirken können, werden haustechnische Gewerke wie Heizung, Lüftung, Sanitär und Estrich von Fachbetrieben übernommen. Der Preis für den Haustyp STREIF-City beginnt ab 344.375 EUR. Mit vier verschiedenen Ausbaustufen bietet STREIF Ihnen Flexibilität: Die Eigenleistung durch Muskelhypothek spart bares Geld und verringert Ihre Finanzierungskosten.