Exposé
Objektart:
Einzelhandel
» Ladenlokal
» Miete
Standort: Einzelhandel »
Deutschland » Bremen » Bremen, Stadt (Kreis) » Bremen
Renovierung vor Bezug – gestalten Sie diese attraktive Fläche mit!
Ladenlokal mieten in Woltmershausen - Hechler & Twachtmann Immobilien GmbH
Das Wichtigste auf einen Blick:
| Objektnummer: | 9044756 |
Preise
| Kaltmiete | 990 € |
| Warmmiete | 1.160 € |
| Kaltmiete (netto) | 990 € |
| Nebenkosten | 170 € |
| Kaution | 1.980 € |
Flächen
| Gesamtfläche | 137 m² |
| Maklerprovision | Im Erfolgsfall ist vom Mieter ein Erfolgshonorar in Höhe von 3,57 Monatskaltmieten inkl. MwSt. zu zahlen! |
Objekt Adresse
28197 Bremen
- Bremen
Sonstige Angaben
| Baujahr | 1957 |
| Verfügbar ab | nach Absprache |
| Boden | Laminat |
| Keller | Ja |
| Energieausweistyp | Bedarfsausweis |
| Gültig bis | 2029-10-22 |
| Baujahr (laut Energieausweis) | 1957 |
| Energieeffizienzklasse | G |
| Endenergiebedarf | 239.00 kWh/(m²*a) |
| Wesentlicher Energieträger | Gas |
Beschreibung der Immobilie
In zentraler Lage von Woltmershausen erwartet Sie dieses attraktive Ladenlokal im Erdgeschoss eines Wohn- und Geschäftshauses.
Vor Ihrem Einzug wird das Ladenlokal von den Vermietern umfassend renoviert. Geplant sind frisch gestrichene Wände in Weiß sowie ein moderner Vinylboden. Selbstverständlich können Ihre individuellen Wünsche berücksichtigt werden, und eine alternative Ausstattung ist in Absprache mit Anpassung der Mietkonditionen möglich.
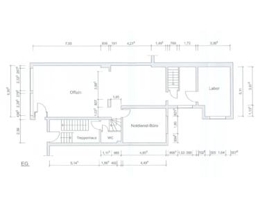
Die ebenerdige Ladenfläche ist bequem über eine automatische Falttür zugänglich. Der ca. 63 m² große Verkaufsraum profitiert von einer großzügigen Schaufensterfront, die den Raum mit natürlichem Licht durchflutet und Ihnen hervorragende Möglichkeiten zur Präsentation Ihrer Waren oder Dienstleistungen bietet.
Ein ansprechender Büroraum sowie ein WC, welches über wenige Treppenstufen erreichbar ist, schließen sich direkt an den Verkaufsraum an. Im hinteren Bereich befindet sich ein Lagerraum, der als Durchgang zum Aufenthaltsraum mit anschließendem Laborraum dient.
Der Keller ist sowohl über eine Treppe vom Lager-/Durchgangsraum als auch über einen Außenzugang erreichbar. Hier stehen Ihnen drei zusätzliche Lagerräume zur Verfügung.
Sie denken darüber danach, sich mit Ihrem Geschäft räumlich verändern zu wollen, suchen dazu eine gute Lauflage? Dann könnte dieses Ladenlokal für Sie passen!
Vor Ihrem Einzug wird das Ladenlokal von den Vermietern umfassend renoviert. Geplant sind frisch gestrichene Wände in Weiß sowie ein moderner Vinylboden. Selbstverständlich können Ihre individuellen Wünsche berücksichtigt werden, und eine alternative Ausstattung ist in Absprache mit Anpassung der Mietkonditionen möglich.
Die ebenerdige Ladenfläche ist bequem über eine automatische Falttür zugänglich. Der ca. 63 m² große Verkaufsraum profitiert von einer großzügigen Schaufensterfront, die den Raum mit natürlichem Licht durchflutet und Ihnen hervorragende Möglichkeiten zur Präsentation Ihrer Waren oder Dienstleistungen bietet.
Ein ansprechender Büroraum sowie ein WC, welches über wenige Treppenstufen erreichbar ist, schließen sich direkt an den Verkaufsraum an. Im hinteren Bereich befindet sich ein Lagerraum, der als Durchgang zum Aufenthaltsraum mit anschließendem Laborraum dient.
Der Keller ist sowohl über eine Treppe vom Lager-/Durchgangsraum als auch über einen Außenzugang erreichbar. Hier stehen Ihnen drei zusätzliche Lagerräume zur Verfügung.
Sie denken darüber danach, sich mit Ihrem Geschäft räumlich verändern zu wollen, suchen dazu eine gute Lauflage? Dann könnte dieses Ladenlokal für Sie passen!
Ausstattung
- ebenerdige Verkaufs-/Bürofläche
- große Schaufensterfront
- automatische Falttür
- ein Büroraum
- Aufenthaltsraum mit Küche
- Labor-/Lagerraum
- Mitarbeiter WC
- Lagerräume im Keller mit Außenzugang
- frisch gestrichene Wände
- neuer Vinylboden
- große Schaufensterfront
- automatische Falttür
- ein Büroraum
- Aufenthaltsraum mit Küche
- Labor-/Lagerraum
- Mitarbeiter WC
- Lagerräume im Keller mit Außenzugang
- frisch gestrichene Wände
- neuer Vinylboden
Lage & Infrastruktur
Der Stadtteil Woltmershausen, auch bekannt unter dem Namen Pusdorf, liegt im Südwesten Bremens und direkt am Weserufer. Die Hauptschlagader des Stadtteils ist die Woltmershauser Straße. Hier gibt es vielfältige Einkaufsmöglichkeiten, Gastronomie, Banken, Ärzte und sonstige Geschäfte des täglichen Bedarfs. Durch den ÖPNV mit den Buslinien 24 und N3 sind die Innenstadt und der Hauptbahnhof in wenigen Minuten erreicht.
Das Ladenlokal befindet sich direkt an der Woltmershauser Straße in zentraler Lage.
Das Ladenlokal befindet sich direkt an der Woltmershauser Straße in zentraler Lage.
Sonstige Informationen
Es liegt ein Energiebedarfsausweis vor.
Dieser ist gültig bis 22.10.2029.
Endenergiebedarf beträgt 239.00 kwh/(m²*a).
Wesentlicher Energieträger der Heizung ist Gas.
Das Baujahr des Objekts lt. Energieausweis ist 1957.
Die Energieeffizienzklasse ist G.
Zu den genannten Nebenkosten rechnen Sie bitte die Kosten für Gas, Strom und Wasser, welche Sie eigenständig mit dem Versorgungsunternehmen abrechnen.
Bitte beachten Sie, dass für die Anmietung dieser Immobilie auf Wunsch des Vermieters folgende Voraussetzungen gelten:
- Mindestvertragslaufzeit von 3 Jahren mit Verlängerungsoption
- Staffelmiete alle 2 Jahre € 50,00
- Nachweis über positive Bonität (durch Vorlage aktueller BWA)
- bei Neugründungen ggf. erhöhte Kaution nach Absprache
- keine negativen Schufa-Einträge
[SCHON GEWUSST...?]
Wir veröffentlichen unsere Immobilienangebote zuerst auf unserer Website. Die Vermarktung in den bekannten Immobilien-Portalen findet – sofern erforderlich – bis zu einer Woche später statt.
Alle Immobilien finden Sie auf www.hechler-twachtmann.de. Sie möchten zukünftig kein Angebot verpassen? Dann legen Sie einfach ein Suchprofil an – ebenfalls bequem online auf unserer Website.
Dieser Service ist natürlich kostenfrei und unverbindlich. Es gelten die AGB.
Hechler und Twachtmann Immobilien GmbH Stellenanzeige Immobilienmakler Portale
Büro
Ladenfläche
Ladenfläche
Ladenfläche mit Blick zum Schaufenster
Labor
Küche
WC
Keller 1
Keller 2
Ladenlokal
Keller