Exposé
Objektart:
Büro / Praxen
» Bueroflaeche
» Miete
Standort: Büro / Praxen »
Deutschland » Bayern » Regensburg (Kreis) » Neutraubling
VB2861VHf Moderne sanierte Bürofläche in guter Lage / Neutraubling
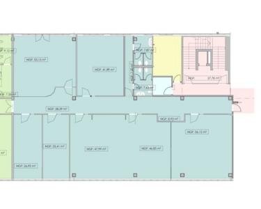
Bild/Grundriss 1
Das Wichtigste auf einen Blick:
| Objektnummer: | 9025711 |
Preise
| Kaltmiete | 5.233 € |
| Kaltmiete (netto) | 5.233 € |
| Nebenkosten | 689 € |
| Kaution | 15.699 € |
Flächen
| Nutzfläche | 459 m² |
| Bürofläche | 459 m² |
| Maklerprovision | Ortsübliche Provision vom Käufer/Mieter nur im Erfolgsfalle |
Objekt Adresse
93073 Neutraubling
- Bayern
Sonstige Angaben
| Zimmer | 6 |
| Verfügbar ab | sofort |
| Boden | Teppich |
| Fahrstuhl | Ja |
| Barrierefrei | |
| Heizungsart | Zentralheizung |
| Energieträger/Befeuerung | Gas |
Objektbeschreibung
Die Flächen befinden sich in verkehrsgünstiger Lage in Neutraubling. Über die nahe Autobahn A 3, Bundesstraßen B 8 und B 15 und die Südumgehung ist eine sehr gute Verkehrsanbindung gegeben. Eine Bushaltestelle befindet sich in unmittelbarer Nähe.
Das Bestandsgebäude wurde vor wenigen Jahren grundlegend saniert und ist in einem Topzustand. Die Büroflächen im 1. Obergeschoss verfügen jeweils über einen separaten Zugang, können auf Wunsch auch zusammen angemietet werden. Sie sind aufgrund der durchgehende Fensterbänder sehr gut belichtet und belüftet. Sie sind mit einer Gas-Zentralheizung, abgehängten Elementdecken mit integrierten Beleuchtungseinheiten sowie EDV- und Telefonverkabelung in Bodentanks ausgestattet. Der Bodenbelag ist eleganter grauer Nadelfilz, in den großzügigen Fluren ist pflegeleichter Granitbelag verlegt. Die Klarglas-Bürotüren sind in Zargen aus hellem Schichtholz gefasst. Neben jeder Bürotür ist ein raumhohes Klarglaselement eingearbeitet, so dass auf dem Flur eine helle und freundliche Atmosphäre vorherrscht. Ein Teil der Büroräume ist an den Zwischenwänden mit einem festverglasten Element mit ca. 2,50 x 0,60 m auf einer Höhe von ca. 1,20 m versehen, sodass sich eine Blickachse durch die Räume ergibt.
Das Bestandsgebäude wurde vor wenigen Jahren grundlegend saniert und ist in einem Topzustand. Die Büroflächen im 1. Obergeschoss verfügen jeweils über einen separaten Zugang, können auf Wunsch auch zusammen angemietet werden. Sie sind aufgrund der durchgehende Fensterbänder sehr gut belichtet und belüftet. Sie sind mit einer Gas-Zentralheizung, abgehängten Elementdecken mit integrierten Beleuchtungseinheiten sowie EDV- und Telefonverkabelung in Bodentanks ausgestattet. Der Bodenbelag ist eleganter grauer Nadelfilz, in den großzügigen Fluren ist pflegeleichter Granitbelag verlegt. Die Klarglas-Bürotüren sind in Zargen aus hellem Schichtholz gefasst. Neben jeder Bürotür ist ein raumhohes Klarglaselement eingearbeitet, so dass auf dem Flur eine helle und freundliche Atmosphäre vorherrscht. Ein Teil der Büroräume ist an den Zwischenwänden mit einem festverglasten Element mit ca. 2,50 x 0,60 m auf einer Höhe von ca. 1,20 m versehen, sodass sich eine Blickachse durch die Räume ergibt.
Ausstattung
Lage: Neutraubling
Mietpreis: EUR 5.233,-
Nebenkosten: EUR 689,-
Fläche: ca. 459 m²
Zimmeranzahl: 6
Kaution: EUR 15.699,-
Geschoss(e): 1. OG
Bezug: sofort
teilbar ab: nein
Stellplatzanzahl: 10
Stellplatzpreis: je EUR 33,-
Fußweg zum RVV: 5 min.
Fahrtzeit Bahnhof: 20 min.
Fahrtzeit Autobahn: 5 min.
Fahrtzeit Flughafen: 80 min.
Objekttyp: Büro
Zustand: saniert
Stellplatz: Außenstellplatz
Ausstattung: gehoben
Bodenbelag: Teppich
Heizung: Zentralheizung
Energieträger: Gas
Starkstrom: ja
barrierefrei: ja
DV-Verkabelung: ja
Lift: ja
Mietpreis: EUR 5.233,-
Nebenkosten: EUR 689,-
Fläche: ca. 459 m²
Zimmeranzahl: 6
Kaution: EUR 15.699,-
Geschoss(e): 1. OG
Bezug: sofort
teilbar ab: nein
Stellplatzanzahl: 10
Stellplatzpreis: je EUR 33,-
Fußweg zum RVV: 5 min.
Fahrtzeit Bahnhof: 20 min.
Fahrtzeit Autobahn: 5 min.
Fahrtzeit Flughafen: 80 min.
Objekttyp: Büro
Zustand: saniert
Stellplatz: Außenstellplatz
Ausstattung: gehoben
Bodenbelag: Teppich
Heizung: Zentralheizung
Energieträger: Gas
Starkstrom: ja
barrierefrei: ja
DV-Verkabelung: ja
Lift: ja
Lage des Objektes
Neutraubling
Sonstige Informationen
Um eine schnelle Bearbeitung zu gewähren benötigen wir Ihre Telefonnummer sowie Ihre komplette Adresse.
Bild/Grundriss 2
Bild/Grundriss 3
Bild/Grundriss 4
Logo