Exposé
Objektart:
Wohnung
» Kauf
Verkauf, Pag, Mandre, Maisonettewohnung, Meerblick, Neubau
Angeboten von:
Biliskov nekretnine d.o.o.
Cesta dr. F. Tudmana 866A
21216 Kastel Stari
Telefon:+38598411775
Das Wichtigste auf einen Blick:
| Objektnummer: | 9021835 |
Preise
| Kaufpreis | 350.000 € |
| Nebenkosten | keine Angabe |
Flächen
| Gesamtfläche | 87,6 m² |
| Fläche Sonstiges | 2 m² |
Objekt Adresse
Kolan
- Dalmatien-Zadar (Region) [Zadarska]
Sonstige Angaben
| Baujahr | 2026 |
| Verfügbar ab | keine Angabe |
| Terrassen | 1 |
| Energieeffizienzklasse | A+ |
Objektbeschreibung
www.biliskov.com ID: 15194
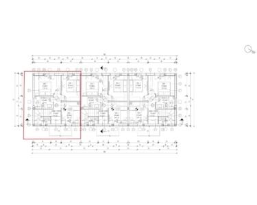
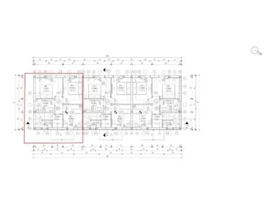
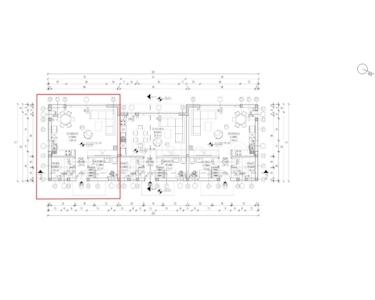
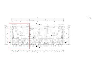
Pag, Mandre Zum Verkauf steht eine Maisonettewohnung mit Meerblick mit einer Fläche von 87,60 m² in einem Neubau mit insgesamt drei Wohneinheiten. Der Baubeginn ist für April 2026 geplant.
Das Erdgeschoss mit 43,50 m² besteht aus einem Flur, Abstellraum, Badezimmer und einem offenen Wohnkonzept mit Küche, Essbereich und Wohnzimmer, mit Zugang zu einer wunderschönen Terrasse mit Pool (6x3 m). Über eine innere Treppe gelangt man in das Obergeschoss mit 44,10 m², das aus einem Flur, drei Schlafzimmern und einem Badezimmer besteht.
Zur Wohnung gehören zwei Aussenstellplätze sowie ein Aussenabstellraum.
Die moderne Wohnanlage besteht aus acht Reihenhäusern im modernen Design und befindet sich in einer ruhigen Wohngegend von Mandre auf der Insel Pag, nur 500 Meter vom Meer und dem Hafen Mandre entfernt.
Energieausweis: Erwartet A, A+ Ausrichtung: Ost–West–Süd Die dreiseitige Ausrichtung sorgt für viel Tageslicht und ausgezeichnete Luftzirkulation. Fenster: PVC-Fenster mit Aluminium, wärmeisolierten Rollläden mit elektrischem Antrieb Heizung / Kühlung: Klimaanlage (in jedem Raum) Preis: 350.000 € Maklerprovision für Käufer: 2 % + MwSt. vom Kaufpreis
Pag, Mandre Zum Verkauf steht eine Maisonettewohnung mit Meerblick mit einer Fläche von 87,60 m² in einem Neubau mit insgesamt drei Wohneinheiten. Der Baubeginn ist für April 2026 geplant.
Das Erdgeschoss mit 43,50 m² besteht aus einem Flur, Abstellraum, Badezimmer und einem offenen Wohnkonzept mit Küche, Essbereich und Wohnzimmer, mit Zugang zu einer wunderschönen Terrasse mit Pool (6x3 m). Über eine innere Treppe gelangt man in das Obergeschoss mit 44,10 m², das aus einem Flur, drei Schlafzimmern und einem Badezimmer besteht.
Zur Wohnung gehören zwei Aussenstellplätze sowie ein Aussenabstellraum.
Die moderne Wohnanlage besteht aus acht Reihenhäusern im modernen Design und befindet sich in einer ruhigen Wohngegend von Mandre auf der Insel Pag, nur 500 Meter vom Meer und dem Hafen Mandre entfernt.
Energieausweis: Erwartet A, A+ Ausrichtung: Ost–West–Süd Die dreiseitige Ausrichtung sorgt für viel Tageslicht und ausgezeichnete Luftzirkulation. Fenster: PVC-Fenster mit Aluminium, wärmeisolierten Rollläden mit elektrischem Antrieb Heizung / Kühlung: Klimaanlage (in jedem Raum) Preis: 350.000 € Maklerprovision für Käufer: 2 % + MwSt. vom Kaufpreis