Exposé
Objektart:
Hallen / Lager / Produktion
» Werkstatt
» Miete
Standort: Hallen / Lager / Produktion »
Deutschland » Bayern » Regensburg (Kreis) » Pentling
VH2776a Moderne Werkstatt-/Lagerhallen mit integrierten Büros und Freiflächen / Pentling
Bild/Grundriss 1
Das Wichtigste auf einen Blick:
| Objektnummer: | 9009473 |
Preise
| Kaltmiete | 6.900 € |
| Kaltmiete (netto) | 6.900 € |
| Nebenkosten | 700 € |
| Kaution | 20.700 € |
Flächen
| Nutzfläche | 816 m² |
| Gesamtfläche | 2.766 m² |
| Freifläche | 1.950 m² |
| Grundstücksfläche | 2.766 m² |
| Fläche teilbar ab | 350 m² |
| Maklerprovision | Ortsübliche Provision vom Käufer/Mieter nur im Erfolgsfalle |
Objekt Adresse
93080 Pentling
- Bayern
Sonstige Angaben
| Baujahr | 2009 |
| Letzte Modernisierung | 2020 |
| Verfügbar ab | sofort |
| Boden | Fliesen |
| Keller | Ja |
| Energieträger/Befeuerung | Gas |
Objektbeschreibung
Die Hallen befinden sich an der südlichen Stadtgrenze von Regensburg. Über die Autobahnen A 93 und A 3 und Bundesstraße B 16 ist eine hervorragende Verkehrsverbindung gegeben. Eine Bushaltestelle befindet sich in der Nähe.
Es stehen zwei Hallen eines großen Gewerbeareals zur Vermietung. Sie wurden in Massivbauweise erstellt. Die Höhe der Hallen beträgt ca. 5 m. Ein Glasfaseranschluss ist vorhanden.
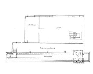
Die Teilfläche 1 besteht aus zwei Hallen mit Betonboden und vielen Starkstromanschlüssen sowie Büro- und Sozialräumen. Sie wird mit einer Ölzentralheizung beheizt. Die LKW-Halle mit Montagegrube mit Rollenprüfstand ist mit zwei Sektionaltoren mit Fensterelementen mit ca. 4,00 x 4,50 m, teilweise mit Schlupftüre sowie zwei Eingangstüren ausgestattet. Eine Fensterfront über eine Hallenseite sorgt für viel Tageslicht, zusätzliche Leuchten sind vorhanden. In der nebenliegenden Werkstatt sind ebenfalls eine Fensterfront und Leuchten vorhanden. Angrenzend befindet sich die geflieste Umkleide mit WC. Über eine Treppe ist das Untergeschoss mit einer weiteren Lagerfläche mit Betonboden sowie das Heizöllager erreichbar. Im Erdgeschoss ist über eine doppelflügelige Türe vom Hof aus der großzügige und geflieste Verkaufsraum erreichbar. Die EDV-Verkabelung verläuft in Bodentanks. Im Büro und Schulungsraum sind Teppichböden verlegt. Von der gefliesten Teeküche mit Küchenanschlüssen ist eine Durchreiche in den Schulungsraum vorhanden. Die beiden WCs sind gefliest. Die weitere Lagerhalle ist ebenfalls mit Betonboden, Leuchten, mehreren Fenstern und einem Rolltor ausgestattet.
Die Teilfläche 2 ist eine moderne und isolierte Halle. Sie ist ausgestattet mit einem ca. 4,50 m breiten und ca. 3,25 m hohen Sektionaltor, Betonboden, Leuchten und Starkstromanschlüssen. Beheizt wird mittels einer Gasgebläseheizung und Heizkörpern. Büro- und Sozialräume wurden vom Hallenbereich abgetrennt. Die beiden Büros mit Fenster zum Hallenbereich sind mit PVC-Boden ausgelegt. In den abgehängten Decken sind Leuchten integriert. Die EDV-Verkabelung verläuft in Kabelkanälen. Der Lagerraum ist sowohl von außen als auch über die Halle erreichbar. Es wurde eine Küchenzeile mit Herd,
Ceranfeld und Geschirrspüler eingebaut. In der hell gefliesten Umkleide mit Dusche ist die Gasheizung untergebracht. Die WCs sind hell deckenhoch gefliest. Über dem Büro- und Sozialtrakt befindet sich eine Mezzanine Fläche.
Interessante Flächen, die wir Ihnen gerne zeigen.
Außenstellplätze stehen zur Verfügung.
Es stehen zwei Hallen eines großen Gewerbeareals zur Vermietung. Sie wurden in Massivbauweise erstellt. Die Höhe der Hallen beträgt ca. 5 m. Ein Glasfaseranschluss ist vorhanden.
Die Teilfläche 1 besteht aus zwei Hallen mit Betonboden und vielen Starkstromanschlüssen sowie Büro- und Sozialräumen. Sie wird mit einer Ölzentralheizung beheizt. Die LKW-Halle mit Montagegrube mit Rollenprüfstand ist mit zwei Sektionaltoren mit Fensterelementen mit ca. 4,00 x 4,50 m, teilweise mit Schlupftüre sowie zwei Eingangstüren ausgestattet. Eine Fensterfront über eine Hallenseite sorgt für viel Tageslicht, zusätzliche Leuchten sind vorhanden. In der nebenliegenden Werkstatt sind ebenfalls eine Fensterfront und Leuchten vorhanden. Angrenzend befindet sich die geflieste Umkleide mit WC. Über eine Treppe ist das Untergeschoss mit einer weiteren Lagerfläche mit Betonboden sowie das Heizöllager erreichbar. Im Erdgeschoss ist über eine doppelflügelige Türe vom Hof aus der großzügige und geflieste Verkaufsraum erreichbar. Die EDV-Verkabelung verläuft in Bodentanks. Im Büro und Schulungsraum sind Teppichböden verlegt. Von der gefliesten Teeküche mit Küchenanschlüssen ist eine Durchreiche in den Schulungsraum vorhanden. Die beiden WCs sind gefliest. Die weitere Lagerhalle ist ebenfalls mit Betonboden, Leuchten, mehreren Fenstern und einem Rolltor ausgestattet.
Die Teilfläche 2 ist eine moderne und isolierte Halle. Sie ist ausgestattet mit einem ca. 4,50 m breiten und ca. 3,25 m hohen Sektionaltor, Betonboden, Leuchten und Starkstromanschlüssen. Beheizt wird mittels einer Gasgebläseheizung und Heizkörpern. Büro- und Sozialräume wurden vom Hallenbereich abgetrennt. Die beiden Büros mit Fenster zum Hallenbereich sind mit PVC-Boden ausgelegt. In den abgehängten Decken sind Leuchten integriert. Die EDV-Verkabelung verläuft in Kabelkanälen. Der Lagerraum ist sowohl von außen als auch über die Halle erreichbar. Es wurde eine Küchenzeile mit Herd,
Ceranfeld und Geschirrspüler eingebaut. In der hell gefliesten Umkleide mit Dusche ist die Gasheizung untergebracht. Die WCs sind hell deckenhoch gefliest. Über dem Büro- und Sozialtrakt befindet sich eine Mezzanine Fläche.
Interessante Flächen, die wir Ihnen gerne zeigen.
Außenstellplätze stehen zur Verfügung.
Ausstattung
Lage: Pentling
Mietpreis: EUR 6.900,-
Nebenkosten: EUR 700,-
Fläche: ca. 816 m²
Grundstück: ca. 2.766 m²
Baujahr: 2009
letzte Modernisierung: 2020
Kaution: EUR 20.700,-
Geschoss(e): Erdgeschoss
Bezug: sofort
teilbar ab: ca. 350 m²
Hallenhöhe: ca. 5 m
Erschließung: erschlossen
Bodenbelastung: 5.000 kg/m²
Fußweg zum RVV: 5 min.
Fahrtzeit Bahnhof: 10 min.
Fahrtzeit Autobahn: 5 min.
Fahrtzeit Flughafen: 70 min.
Objekttyp: Werkstatt
Zustand: saniert
Ausstattung: normal
Bodenbelag: Fliesen
Heizung: Öl-Heizung
Energieträger: Gas
Starkstrom: ja
Keller: ja
Mietpreis: EUR 6.900,-
Nebenkosten: EUR 700,-
Fläche: ca. 816 m²
Grundstück: ca. 2.766 m²
Baujahr: 2009
letzte Modernisierung: 2020
Kaution: EUR 20.700,-
Geschoss(e): Erdgeschoss
Bezug: sofort
teilbar ab: ca. 350 m²
Hallenhöhe: ca. 5 m
Erschließung: erschlossen
Bodenbelastung: 5.000 kg/m²
Fußweg zum RVV: 5 min.
Fahrtzeit Bahnhof: 10 min.
Fahrtzeit Autobahn: 5 min.
Fahrtzeit Flughafen: 70 min.
Objekttyp: Werkstatt
Zustand: saniert
Ausstattung: normal
Bodenbelag: Fliesen
Heizung: Öl-Heizung
Energieträger: Gas
Starkstrom: ja
Keller: ja
Lage des Objektes
Pentling
Sonstige Informationen
Um eine schnelle Bearbeitung zu gewähren benötigen wir Ihre Telefonnummer sowie Ihre komplette Adresse.
Bild/Grundriss 2
Logo