Exposé
Objektart:
Wohnung
» Kauf
ISTRIEN, UMAG – Hochwertige 2-Zimmer-Wohnung mit Balkon in einem Neubau
Angeboten von:
DUX Nekretnine d.o.o.
Tizianova
51000 Rijeka
Telefon:+385 51518-174
www.dux-nekretnine.hr
Ansprechpartner/in
Evan Beaković| Telefon: | +385 91 480 8808 |
| Mobil | +385 91 480 8808 |
Das Wichtigste auf einen Blick:
| Objektnummer: | 9005627 |
Preise
| Kaufpreis | 260.000 € |
| Nebenkosten | keine Angabe |
Flächen
| Gesamtfläche | 71 m² |
Objekt Adresse
52470 Umag
- Istrien
Sonstige Angaben
| Baujahr | 2024 |
| Zimmer | 3 |
| Verfügbar ab | keine Angabe |
| Bad | 1 |
| Anzahl der Etagen im Haus | 3 |
| Inserat befindet sich im Stockwerk | 1 |
| Bad | 1 |
Objektbeschreibung
ISTRIEN, UMAG – Superior-Apartment mit 2 Schlafzimmern und Balkon – Luxus-Neubau
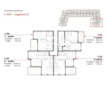
Wir präsentieren Ihnen stolz ein exklusives Apartment mit zwei Schlafzimmern und Aufzug in einem der prestigeträchtigsten Neubauten in Umag. Diese großzügige Wohnung mit einer Gesamtfläche von 77 m2 befindet sich im ersten Stock dieses imposanten Wohnhauses. Das Apartment bietet Eleganz und Komfort und besteht aus einem geräumigen Wohnzimmer mit moderner Küche, zwei luxuriösen Schlafzimmern, einem eleganten Badezimmer und einem 12 Quadratmeter großen Balkon. Die Wohnung verfügt über eine Lagerfläche von 3,38 m2, einen überdachten Parkplatz und einen Garagenstellplatz, was Ihren Alltag äußerst praktisch macht. Dieses Apartmenthaus wurde mit professionellem Ansatz und Liebe zum Detail gebaut. Das Gebäude besteht aus einer monolithischen Stahlbetonkonstruktion mit Mezzaninplatten für zusätzliche Sicherheit und Stabilität. Im Inneren der Wohnungen sind Trennwände mit Gipskartonplatten in doppelter Stärke ausgeführt, die für eine hervorragende Wärme- und Schalldämmung sorgen. Die Fassadenverkleidung erfolgt im WDVS-System mit einer 10 cm dicken Wärmedämmung und sorgt so für Energieeffizienz. Hochwertige PVC-Zimmerei der neuen Generation mit elektrischen Jalousien bietet zusätzlichen Komfort und Sicherheit. Jede Wohnung ist mit einem Top-Multisplit-Heiz- und Kühlsystem ausgestattet, das für perfekte Temperatur und Wirtschaftlichkeit sorgt. Die Wohnungen verfügen über eigene Wasser- und Stromzähler und die Warmwasserbereitung erfolgt über einen Elektroboiler. Darüber hinaus verfügt jede Wohnung über einen Telefon-, Antennen-, TV- und Internetanschluss sowie eine integrierte Video-Gegensprechanlage für mehr Sicherheit. Die Wohnung ist in den Zimmern und im Wohnzimmer mit hochwertigem Parkett ausgelegt, während die Flure und Dielen mit edlen Fliesen ausgestattet sind. Mit hochwertigsten Materialien und Ausstattung bietet diese Wohnung nicht nur außergewöhnlichen Wohnkomfort, sondern eignet sich auch ideal zur Vermietung für touristische Zwecke. Die geplante Baufertigstellung ist Mitte 2025, sodass Sie schnell alle Vorzüge dieser Luxuswohnung genießen können. Die Lage ist perfekt, nur 700 Meter vom Meer und dem Zentrum von Umag entfernt, sodass Sie den ganzen Charme dieser wunderschönen mediterranen Stadt genießen können. Allgemeine Spezifikationen des Gebäudes: Erdgeschoss: - 1x Studio-Apartment mit Garten - 18x Apartments mit einem Schlafzimmer, Wohnzimmer, Terrasse und Garten - 5x Apartments mit zwei Schlafzimmern, Wohnzimmer, Terrasse und Garten - 43x Abstellraum 1. Stock: - 26x Wohnungen mit einem Schlafzimmer, Wohnzimmer, Terrasse und Garten - 7x Wohnungen mit zwei Schlafzimmern, Wohnzimmer, Terrasse und Garten - 16x Abstellraum 2. Etage: - 26x Wohnungen mit einem Schlafzimmer, Wohnzimmer, Terrasse und Garten - 7x Wohnungen mit zwei Schlafzimmer, Wohnzimmer, Terrasse und Garten - 16x Abstellraum 3. Etage: - 24x Wohnungen mit einem Schlafzimmer, Wohnzimmer und Balkon - 7x Wohnungen mit zwei Schlafzimmern, Wohnzimmer und Balkon - 1x Wohnung mit drei Schlafzimmern, Wohnzimmer, Balkon und Loggia - 14x Abstellraum Tiefgarage: - 74 Stellplätze - 33 Stellplätze Tiefgarage: - 26 überdachte Parkplätze - 82 nicht überdachte Parkplätze Verpassen Sie nicht die Gelegenheit, stolzer Besitzer dieser Luxuswohnung in Umag zu werden und ein exklusives Lebenserlebnis zu genießen in einem der attraktivsten Neubauten auf dem Markt. Für weitere Informationen und eine Besichtigung der Wohnung kontaktieren Sie noch heute unsere Agentur.
Sehr geehrte Kunden, die Vermittlungsprovision wird gemäß den Allgemeinen Geschäftsbedingungen berechnet. www.dux-nekretnine.hr/opci-uvjeti-poslovanja
ID CODE: 38356
Wir präsentieren Ihnen stolz ein exklusives Apartment mit zwei Schlafzimmern und Aufzug in einem der prestigeträchtigsten Neubauten in Umag. Diese großzügige Wohnung mit einer Gesamtfläche von 77 m2 befindet sich im ersten Stock dieses imposanten Wohnhauses. Das Apartment bietet Eleganz und Komfort und besteht aus einem geräumigen Wohnzimmer mit moderner Küche, zwei luxuriösen Schlafzimmern, einem eleganten Badezimmer und einem 12 Quadratmeter großen Balkon. Die Wohnung verfügt über eine Lagerfläche von 3,38 m2, einen überdachten Parkplatz und einen Garagenstellplatz, was Ihren Alltag äußerst praktisch macht. Dieses Apartmenthaus wurde mit professionellem Ansatz und Liebe zum Detail gebaut. Das Gebäude besteht aus einer monolithischen Stahlbetonkonstruktion mit Mezzaninplatten für zusätzliche Sicherheit und Stabilität. Im Inneren der Wohnungen sind Trennwände mit Gipskartonplatten in doppelter Stärke ausgeführt, die für eine hervorragende Wärme- und Schalldämmung sorgen. Die Fassadenverkleidung erfolgt im WDVS-System mit einer 10 cm dicken Wärmedämmung und sorgt so für Energieeffizienz. Hochwertige PVC-Zimmerei der neuen Generation mit elektrischen Jalousien bietet zusätzlichen Komfort und Sicherheit. Jede Wohnung ist mit einem Top-Multisplit-Heiz- und Kühlsystem ausgestattet, das für perfekte Temperatur und Wirtschaftlichkeit sorgt. Die Wohnungen verfügen über eigene Wasser- und Stromzähler und die Warmwasserbereitung erfolgt über einen Elektroboiler. Darüber hinaus verfügt jede Wohnung über einen Telefon-, Antennen-, TV- und Internetanschluss sowie eine integrierte Video-Gegensprechanlage für mehr Sicherheit. Die Wohnung ist in den Zimmern und im Wohnzimmer mit hochwertigem Parkett ausgelegt, während die Flure und Dielen mit edlen Fliesen ausgestattet sind. Mit hochwertigsten Materialien und Ausstattung bietet diese Wohnung nicht nur außergewöhnlichen Wohnkomfort, sondern eignet sich auch ideal zur Vermietung für touristische Zwecke. Die geplante Baufertigstellung ist Mitte 2025, sodass Sie schnell alle Vorzüge dieser Luxuswohnung genießen können. Die Lage ist perfekt, nur 700 Meter vom Meer und dem Zentrum von Umag entfernt, sodass Sie den ganzen Charme dieser wunderschönen mediterranen Stadt genießen können. Allgemeine Spezifikationen des Gebäudes: Erdgeschoss: - 1x Studio-Apartment mit Garten - 18x Apartments mit einem Schlafzimmer, Wohnzimmer, Terrasse und Garten - 5x Apartments mit zwei Schlafzimmern, Wohnzimmer, Terrasse und Garten - 43x Abstellraum 1. Stock: - 26x Wohnungen mit einem Schlafzimmer, Wohnzimmer, Terrasse und Garten - 7x Wohnungen mit zwei Schlafzimmern, Wohnzimmer, Terrasse und Garten - 16x Abstellraum 2. Etage: - 26x Wohnungen mit einem Schlafzimmer, Wohnzimmer, Terrasse und Garten - 7x Wohnungen mit zwei Schlafzimmer, Wohnzimmer, Terrasse und Garten - 16x Abstellraum 3. Etage: - 24x Wohnungen mit einem Schlafzimmer, Wohnzimmer und Balkon - 7x Wohnungen mit zwei Schlafzimmern, Wohnzimmer und Balkon - 1x Wohnung mit drei Schlafzimmern, Wohnzimmer, Balkon und Loggia - 14x Abstellraum Tiefgarage: - 74 Stellplätze - 33 Stellplätze Tiefgarage: - 26 überdachte Parkplätze - 82 nicht überdachte Parkplätze Verpassen Sie nicht die Gelegenheit, stolzer Besitzer dieser Luxuswohnung in Umag zu werden und ein exklusives Lebenserlebnis zu genießen in einem der attraktivsten Neubauten auf dem Markt. Für weitere Informationen und eine Besichtigung der Wohnung kontaktieren Sie noch heute unsere Agentur.
Sehr geehrte Kunden, die Vermittlungsprovision wird gemäß den Allgemeinen Geschäftsbedingungen berechnet. www.dux-nekretnine.hr/opci-uvjeti-poslovanja
ID CODE: 38356