Exposé
Objektart:
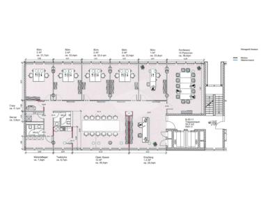
Büro / Praxen
» Bueroflaeche
» Miete
Standort: Büro / Praxen »
Deutschland » Nordrhein-Westfalen » Düsseldorf, Stadt (Kreis) » Düsseldorf
Grand Bateau I Flexible Flächengröße I provisionsfrei
Das Wichtigste auf einen Blick:
| Objektnummer: | 9007073 |
Preise
| Nebenkosten | keine Angabe |
Flächen
| Gesamtfläche | 320 m² |
| Bürofläche | 320 m² |
Objekt Adresse
40221 Düsseldorf
- Nordrhein-Westfalen
Sonstige Angaben
| Verfügbar ab | kurzfristig |
| Anzahl der Etagen im Haus | 5 |
| Inserat befindet sich im Stockwerk | 2 |
| Boden | Teppich |
| Terrassen | 1 |
| Fahrstuhl | Ja |
| Heizungsart | Zentralheizung |
| Energieträger/Befeuerung | Gas |
Objektbeschreibung
Das Objekt befindet sich am Eingangsbereich zum sogenannten Medienhafen. Diese exponierte Lage ermöglicht den Mietern des Grand Bateaus, sich auch bei Anmietung kleinerer Flächen, optimal an diesem etablierten und außergewöhnlichen Bürostandort zu repräsentieren.
Nach den Plänen des rennomierten Architekten Claude Vasconi ist ein modernes Bürogebäude entstanden, welches im Hinblick auf Ausstattung, Effizienz und Repräsentativität höchsten Ansprüchen gerecht wird.
Aluminium und Glas dominieren die geschwungene Fassade mit dem typisch ragenden Überhang eines Schiffbugs. Die Gesamtfigur war demnach namensgebend für das Projetk, welches in seiner Gesamtheit rund 18.000 m² repräsentative Bürofläche bietet.
Nach den Plänen des rennomierten Architekten Claude Vasconi ist ein modernes Bürogebäude entstanden, welches im Hinblick auf Ausstattung, Effizienz und Repräsentativität höchsten Ansprüchen gerecht wird.
Aluminium und Glas dominieren die geschwungene Fassade mit dem typisch ragenden Überhang eines Schiffbugs. Die Gesamtfigur war demnach namensgebend für das Projetk, welches in seiner Gesamtheit rund 18.000 m² repräsentative Bürofläche bietet.
Ausstattung
Eine moderne Büroausstattung sorgt für ein angenehmes Arbeiten. Modernste Technik, ansprechendes Design und eine komfortable Grundausstattung sorgen für die Motivation.
Lage des Objektes
Der Düsseldorfer Hafen, auch bekannt als die "Medienmeile Düsseldorfs", hat sich durch seine spektakulären und zukunftsorientierten Büroneubauten zu einem der gefragtesten Standorte in Düsseldorf entwickelt und wird aktuell durch seine Diversifikation der Branchenvielfalt geprägt. Dienstleister nahezu aller Branchen, internationale Beratungs- und Handelsunternehmen entdecken, genaue so wie einige Modeunternehmen, die Standortvorteile, die der Düsseldorfer Hafen bietet.
Sonstige Informationen
Der Hafen zeichnet sich durch seine verkehrsgünstige Lage aus. In südliche Richtung erreicht man kurzfristig die Autobahnanschlüsse A46 in Richtung Wuppertal, A59 Richtung Leverkusen/Köln, über die Südbrücke der Stadt Neuss. Die Düsseldorfer City ist nur wenige Fahrminuten vom Objekt entfernt. Eine schnelle Verbindung in Richtung Norden und somit zur Messe Düsseldorf und dem Flughafen Düsseldorf International ist durch den Rheinufertunnel gewährleistet. Über die Rheinkniebrücke gelangt man zügig nach Düsseldorf- Oberkassel und ins Seestern-Gebiet.
Eine Haltestelle der Buslinie 725 in Richtung Innenstadt / Hauptbahnhof bzw. Völklinger Straße ist in unmittelbarer Nähe zum Objekt.
IMG
Hammer Straße 13 I 2. OG (Kombiniert mit dem 3. OG)
Hammer Straße 13 I 3. OG (Kombiniert mit dem 2. OG)
Zollhof 4 I 2. OG
Zollhof 4 I 3. OG