Exposé
Objektart:
Büro / Praxen
» Bueroflaeche
» Miete
Standort: Büro / Praxen »
Deutschland » Bayern » Regensburg (Kreis) » Neutraubling
VB3287VHb Neuwertige Bürofläche / Neutraubling
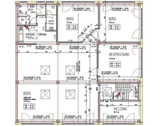
Bild/Grundriss 1
Das Wichtigste auf einen Blick:
| Objektnummer: | 9006934 |
Preise
| Kaltmiete | 2.107 € |
| Kaltmiete (netto) | 2.107 € |
| Nebenkosten | 468 € |
| Kaution | 6.321 € |
Flächen
| Nutzfläche | 234 m² |
| Bürofläche | 234 m² |
| Maklerprovision | Ortsübliche Provision vom Käufer/Mieter nur im Erfolgsfalle |
Objekt Adresse
93073 Neutraubling
- Bayern
Sonstige Angaben
| Baujahr | 2015 |
| Letzte Modernisierung | 2021 |
| Zimmer | 5 |
| Verfügbar ab | sofort |
| Boden | Teppich |
| Energieträger/Befeuerung | Gas |
Objektbeschreibung
Die zur Vermietung angebotene Bürofläche befindet sich sehr verkehrsgünstig gelegen in einem Gewerbegebiet in Neutraubling.
Das mit Glasfaseranschluss ausgestattete Gewerbeanwesen besteht aus mehreren Hallen und einem Bürohaus. Zur Vermietung stehen Teile des Bürogebäudes und der Hallen. Beheizt wird mit einer Gasheizung.
Die klimatisierten Büroflächen im 1. Obergeschoss sind mit Teppichböden ausgelegt. Die Aufenthaltsräume sind mit einer Einbauküche und einer Essgruppe ausgestattet. Es sind Damen- und Herren-WCs vorhanden. In den Herren-WCs befindet sich zusätzliche eine Dusche. Aufgrund der durchgängigen Fensterfront sind die Räume sehr hell. In der abgehängten Decke sind Leuchten integriert. Im 2. Obergeschoss sind zusätzlich Lichtkuppeln vorhanden.
Parkplätze stehen zur Anmietung zur Verfügung.
Das mit Glasfaseranschluss ausgestattete Gewerbeanwesen besteht aus mehreren Hallen und einem Bürohaus. Zur Vermietung stehen Teile des Bürogebäudes und der Hallen. Beheizt wird mit einer Gasheizung.
Die klimatisierten Büroflächen im 1. Obergeschoss sind mit Teppichböden ausgelegt. Die Aufenthaltsräume sind mit einer Einbauküche und einer Essgruppe ausgestattet. Es sind Damen- und Herren-WCs vorhanden. In den Herren-WCs befindet sich zusätzliche eine Dusche. Aufgrund der durchgängigen Fensterfront sind die Räume sehr hell. In der abgehängten Decke sind Leuchten integriert. Im 2. Obergeschoss sind zusätzlich Lichtkuppeln vorhanden.
Parkplätze stehen zur Anmietung zur Verfügung.
Ausstattung
Lage: Neutraubling
Mietpreis: EUR 2.107,-
Nebenkosten: EUR 468,-
Fläche: ca. 234 m²
Zimmeranzahl: 5
Baujahr: 2015
letzte Modernisierung: 2021
Kaution: EUR 6.321,-
Geschoss(e): 1. OG
Bezug: sofort
teilbar ab: nein
Stellplatzanzahl: 5
Stellplatzpreis: je EUR 30,-
Lastenaufzug: nein
Kranbahn: nein
Bodenbelastung: 5.000 kg/m²
Fußweg zum RVV: 5 min.
Fahrtzeit Bahnhof: 10 min.
Fahrtzeit Autobahn: 5 min.
Fahrtzeit Flughafen: 70 min.
Objekttyp: Büroetage
Zustand: neuwertig
Stellplatz: Außenstellplatz
Ausstattung: gehoben
Bodenbelag: Teppich
Heizung: Gas-Heizung
Energieausweis Art: keine Angabe
Energieträger: Gas
Starkstrom: ja
Mietpreis: EUR 2.107,-
Nebenkosten: EUR 468,-
Fläche: ca. 234 m²
Zimmeranzahl: 5
Baujahr: 2015
letzte Modernisierung: 2021
Kaution: EUR 6.321,-
Geschoss(e): 1. OG
Bezug: sofort
teilbar ab: nein
Stellplatzanzahl: 5
Stellplatzpreis: je EUR 30,-
Lastenaufzug: nein
Kranbahn: nein
Bodenbelastung: 5.000 kg/m²
Fußweg zum RVV: 5 min.
Fahrtzeit Bahnhof: 10 min.
Fahrtzeit Autobahn: 5 min.
Fahrtzeit Flughafen: 70 min.
Objekttyp: Büroetage
Zustand: neuwertig
Stellplatz: Außenstellplatz
Ausstattung: gehoben
Bodenbelag: Teppich
Heizung: Gas-Heizung
Energieausweis Art: keine Angabe
Energieträger: Gas
Starkstrom: ja
Lage des Objektes
Neutraubling
Sonstige Informationen
Wir befinden uns im Betriebsurlaub. Ab dem 07.01.2026 sind wir wieder wie gewohnt für Sie erreichbar. Um eine schnelle Bearbeitung zu gewähren benötigen wir Ihre Telefonnummer sowie Ihre komplette Adresse.
Logo