Exposé
Objektart:
Einzelhandel
» Verbrauchermarkt
» Miete
Standort: Einzelhandel »
Deutschland » Bayern » Regensburg (Kreis) » Laaber
VL3770 Ladenfläche mit großem Schaufenster und Hallenanbau / ca. 20 km westlich von Regensburg
Bild/Grundriss 1
Das Wichtigste auf einen Blick:
| Objektnummer: | 9006669 |
Preise
| Kaltmiete | 2.900 € |
| Kaltmiete (netto) | 2.900 € |
| Nebenkosten | 600 € |
| Kaution | 8.700 € |
Flächen
| Nutzfläche | 500 m² |
| Ladenfläche | 500 m² |
| Verkaufsfläche | 500 m² |
| Maklerprovision | Ortsübliche Provision vom Käufer/Mieter nur im Erfolgsfalle |
Objekt Adresse
93164 Laaber
- Bayern
Sonstige Angaben
| Baujahr | 1974 |
| Letzte Modernisierung | 2019 |
| Verfügbar ab | sofort |
| Boden | Fliesen |
| Fahrstuhl | Ja |
| Keller | Ja |
| Energieträger/Befeuerung | Öl |
Objektbeschreibung
Die Vermietfläche befindet sich in einem größeren Ort ca. 20 km westlich von Regensburg. Es besteht eine gute Anbindung an die B 8 sowie an den RVV.
Das Wohn- und Geschäftshaus befindet sich an einer viel befahrenen Straße und wird mit einer Ölzentralheizung beheizt.
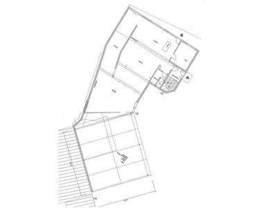
Im Erdgeschoss befindet sich die geflieste Verkaufsfläche. Sie ist über eine große doppelseitige Glasschiebetür und über einen Nebeneingang begehbar. Das Büro ist ebenso wie das Duschbad mit WC gefliest und mit Deckenleuchten ausgestattet.
Im Kellergeschoss befindet sich die geflieste Lagerfläche. Sie ist sowohl über das Treppenhaus als auch über den Lastenaufzug mit einer Nutzlast von 1 t zu erreichen.
Die angebaute Halle mit Betonboden wurde in Skelettbauweise errichtet. Sie ist über ein ca. 3,50 m x 5,00 m großes Sektionaltor befahrbar. Eine Lichtkuppel und Deckenleuchten sorgen für gute Belichtung.
Das Wohn- und Geschäftshaus befindet sich an einer viel befahrenen Straße und wird mit einer Ölzentralheizung beheizt.
Im Erdgeschoss befindet sich die geflieste Verkaufsfläche. Sie ist über eine große doppelseitige Glasschiebetür und über einen Nebeneingang begehbar. Das Büro ist ebenso wie das Duschbad mit WC gefliest und mit Deckenleuchten ausgestattet.
Im Kellergeschoss befindet sich die geflieste Lagerfläche. Sie ist sowohl über das Treppenhaus als auch über den Lastenaufzug mit einer Nutzlast von 1 t zu erreichen.
Die angebaute Halle mit Betonboden wurde in Skelettbauweise errichtet. Sie ist über ein ca. 3,50 m x 5,00 m großes Sektionaltor befahrbar. Eine Lichtkuppel und Deckenleuchten sorgen für gute Belichtung.
Ausstattung
Lage: ca. 20 km westlich von Regensburg
Mietpreis: EUR 2.900,-
Nebenkosten: EUR 600,-
Fläche: ca. 500 m²
Lageart: sonstiges
Baujahr: 1974
letzte Modernisierung: 2019
Kaution: EUR 8.700,-
Geschoss(e): Erdgeschoss
Bezug: sofort
teilbar ab: nein
Hallenhöhe: ca. 5 m
Stellplatzanzahl: 3
Stellplatzpreis: EUR 0,-
Lastenaufzug: ja
Tragkraft Lastenaufzug: 1.000 kg
Schaufensterfront: ca. 7 m
Fußweg zum RVV: 5 min.
Fahrtzeit Bahnhof: 20 min.
Fahrtzeit Autobahn: 20 min.
Fahrtzeit Flughafen: 80 min.
Objekttyp: Verkaufsfläche
Zustand: gepflegt
Ausstattung: normal
Bodenbelag: Fliesen
Zulieferung: Anfahrt von vorne
Heizung: Öl-Heizung
Energieausweis Art: keine Angabe
Energieträger: Öl
DV-Verkabelung: ja
Keller: ja
Lift: ja
Mietpreis: EUR 2.900,-
Nebenkosten: EUR 600,-
Fläche: ca. 500 m²
Lageart: sonstiges
Baujahr: 1974
letzte Modernisierung: 2019
Kaution: EUR 8.700,-
Geschoss(e): Erdgeschoss
Bezug: sofort
teilbar ab: nein
Hallenhöhe: ca. 5 m
Stellplatzanzahl: 3
Stellplatzpreis: EUR 0,-
Lastenaufzug: ja
Tragkraft Lastenaufzug: 1.000 kg
Schaufensterfront: ca. 7 m
Fußweg zum RVV: 5 min.
Fahrtzeit Bahnhof: 20 min.
Fahrtzeit Autobahn: 20 min.
Fahrtzeit Flughafen: 80 min.
Objekttyp: Verkaufsfläche
Zustand: gepflegt
Ausstattung: normal
Bodenbelag: Fliesen
Zulieferung: Anfahrt von vorne
Heizung: Öl-Heizung
Energieausweis Art: keine Angabe
Energieträger: Öl
DV-Verkabelung: ja
Keller: ja
Lift: ja
Lage des Objektes
ca. 20 km westlich von Regensburg
Sonstige Informationen
Wir befinden uns im Betriebsurlaub. Ab dem 07.01.2026 sind wir wieder wie gewohnt für Sie erreichbar. Um eine schnelle Bearbeitung zu gewähren benötigen wir Ihre Telefonnummer sowie Ihre komplette Adresse.
Bild/Grundriss 2
Bild/Grundriss 3
Bild/Grundriss 4
Logo