Exposé
Objektart:
Büro / Praxen
» Bueroflaeche
» Miete
Standort: Büro / Praxen »
Deutschland » Bayern » Regensburg (Kreis) » Obertraubling
VB3801VHa PROVISIONSFREI - Etage eines Bürohauses - je Etage von 244 m² bis 256 m² / südliche Stadtrandgemeinde
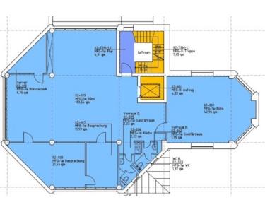
Bild/Grundriss 1
Das Wichtigste auf einen Blick:
| Objektnummer: | 9006630 |
Preise
| Miete für das Objekt | Auf Anfrage |
| Nebenkosten | keine Angabe |
| Kaution | 3 € |
Flächen
| Nutzfläche | 256 m² |
| Bürofläche | 256 m² |
| Grundstücksfläche | 13.000 m² |
| Maklerprovision | Ortsübliche Provision vom Käufer/Mieter nur im Erfolgsfalle |
Objekt Adresse
93083 Obertraubling
- Bayern
Sonstige Angaben
| Baujahr | 1991 |
| Letzte Modernisierung | 2022 |
| Zimmer | 5 |
| Verfügbar ab | sofort |
| Boden | Teppich |
| Keller | Ja |
| Energieträger/Befeuerung | Gas |
Objektbeschreibung
Das zur Vermietung angebotene Gewerbeanwesen liegt an einer gut befahrenen Straße in einer südlichen Stadtrandgemeinde. Eine Bushaltestelle befindet sich der Nähe. Die Anbindung an die Autobahn A3 und die Bundesstraßen B 8 und B 15 ist hervorragend.
Das Gewerbeanwesen besteht aus einem Bürogebäude mit angrenzender Halle. Die Beheizung erfolgt derzeit mit einer Gaszentralheizung. Eine Trafostation ist am Gelände vorhanden.
Es ist geplant einen weiteren Hallentrakt anzubauen und die Gebäudetechnik energetisch zu optimieren. Die Beleuchtung soll auf LED umgestellt und an den Parkplätzen E-Ladestationen erstellt werden. Auf den Dächern sollen Photovoltaikanlagen und Wärmekollektoren installiert werden.
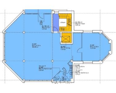
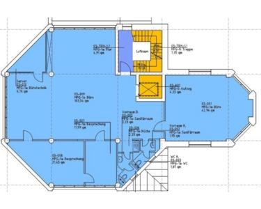
Das Bürohaus ist aufgrund der vielen Fenster sehr hell und freundlich. Die Räume sind überwiegend als Großraumbüros gestaltet und mit Teppichboden ausgelegt. In den abgehängten Decken sind integrierte Beleuchtungseinheiten installiert. Auf jedem Stockwerk ist ein Sozialraum mit Küche sowie eine WC-Anlage. Ein Aufzug im Treppenhaus erschließt alle Stockwerke. Im Untergeschoss befinden sich die Technik- und Lagerräume.
Auf dem eingezäunten Grundstück befindet sich eine Freifläche von ca. 5000 m², auf der der Hallenneubau geplant ist. Es sind Andockstationen geplant. Die Dachfläche soll begrünt und eine Dachterrasse erstellt werden.
Das Gewerbeanwesen besteht aus einem Bürogebäude mit angrenzender Halle. Die Beheizung erfolgt derzeit mit einer Gaszentralheizung. Eine Trafostation ist am Gelände vorhanden.
Es ist geplant einen weiteren Hallentrakt anzubauen und die Gebäudetechnik energetisch zu optimieren. Die Beleuchtung soll auf LED umgestellt und an den Parkplätzen E-Ladestationen erstellt werden. Auf den Dächern sollen Photovoltaikanlagen und Wärmekollektoren installiert werden.
Das Bürohaus ist aufgrund der vielen Fenster sehr hell und freundlich. Die Räume sind überwiegend als Großraumbüros gestaltet und mit Teppichboden ausgelegt. In den abgehängten Decken sind integrierte Beleuchtungseinheiten installiert. Auf jedem Stockwerk ist ein Sozialraum mit Küche sowie eine WC-Anlage. Ein Aufzug im Treppenhaus erschließt alle Stockwerke. Im Untergeschoss befinden sich die Technik- und Lagerräume.
Auf dem eingezäunten Grundstück befindet sich eine Freifläche von ca. 5000 m², auf der der Hallenneubau geplant ist. Es sind Andockstationen geplant. Die Dachfläche soll begrünt und eine Dachterrasse erstellt werden.
Ausstattung
Lage: südliche Stadtrandgemeinde
Mietpreis: auf Anfrage
Nebenkosten: auf Anfrage
Fläche: ca. 256 m²
Grundstück: ca. 13.000 m²
Zimmeranzahl: 5
Baujahr: 1991
letzte Modernisierung: 2022
Kaution: 3 Monatsmieten
Geschoss(e): E + 4
Bezug: sofort
teilbar ab: nach Absprache
Bebauungsplan: ja
Erschließung: erschlossen
Stellplatzanzahl: 36
Stellplatzpreis: auf Anfrage
Fußweg zum RVV: 5 min.
Fahrtzeit Bahnhof: 15 min.
Fahrtzeit Autobahn: 5 min.
Fahrtzeit Flughafen: 70 min.
Objekttyp: Büroetage
Zustand: saniert
Stellplatz: Außenstellplatz
Ausstattung: gehoben
Bodenbelag: Teppich
Heizung: Gas-Heizung
Energieträger: Gas
Starkstrom: ja
DV-Verkabelung: ja
Keller: ja
Mietpreis: auf Anfrage
Nebenkosten: auf Anfrage
Fläche: ca. 256 m²
Grundstück: ca. 13.000 m²
Zimmeranzahl: 5
Baujahr: 1991
letzte Modernisierung: 2022
Kaution: 3 Monatsmieten
Geschoss(e): E + 4
Bezug: sofort
teilbar ab: nach Absprache
Bebauungsplan: ja
Erschließung: erschlossen
Stellplatzanzahl: 36
Stellplatzpreis: auf Anfrage
Fußweg zum RVV: 5 min.
Fahrtzeit Bahnhof: 15 min.
Fahrtzeit Autobahn: 5 min.
Fahrtzeit Flughafen: 70 min.
Objekttyp: Büroetage
Zustand: saniert
Stellplatz: Außenstellplatz
Ausstattung: gehoben
Bodenbelag: Teppich
Heizung: Gas-Heizung
Energieträger: Gas
Starkstrom: ja
DV-Verkabelung: ja
Keller: ja
Lage des Objektes
südliche Stadtrandgemeinde
Sonstige Informationen
Um eine schnelle Bearbeitung zu gewähren benötigen wir Ihre Telefonnummer sowie Ihre komplette Adresse.
Bild/Grundriss 2
Bild/Grundriss 3
Bild/Grundriss 4
Bild/Grundriss 5
Bild/Grundriss 6
Logo