Exposé
Objektart:
Büro / Praxen
» Bueroflaeche
» Miete
Standort: Büro / Praxen »
Deutschland » Bayern » Regensburg (Kreis) » Sinzing
VB3700 Moderne Neubau-Gewerbeflächen in einem Geschäftshaus / ca. 15 km westlich von Regensburg
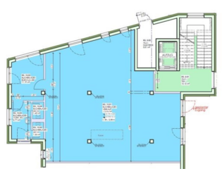
Bild/Grundriss 1
Das Wichtigste auf einen Blick:
| Objektnummer: | 9006627 |
Preise
| Kaltmiete | 1.755 € |
| Kaltmiete (netto) | 1.755 € |
| Nebenkosten | 455 € |
| Kaution | 5.265 € |
Flächen
| Nutzfläche | 130 m² |
| Bürofläche | 130 m² |
| Maklerprovision | Ortsübliche Provision vom Käufer/Mieter nur im Erfolgsfalle |
Objekt Adresse
93161 Sinzing
- Bayern
Sonstige Angaben
| Baujahr | 2021 |
| Letzte Modernisierung | 2023 |
| Zimmer | 5 |
| Verfügbar ab | sofort |
| Boden | Kunststoff |
| Barrierefrei | |
| Energieausweistyp | Bedarfsausweis |
| Ausstellungsdatum | 22. 11. 2020 |
| Energieverbrauchkennwert | 88.30 kWh/(m²*a) |
| Heizungsart | Zentralheizung |
| Energieträger/Befeuerung | Holz |
Objektbeschreibung
Das vielseitig nutzbare Bürohaus befindet sich ca. 15 km westlich von Regensburg. Durch die nahe A3 und B8 ist eine hervorragende regionale und überregionale Verkehrsanbindung gegeben.
Das hochwertig gebaute, energieeffiziente Gebäude wurde im KfW-55-Standard gebaut und wird über eine Pelletheizung beheizt. Die Fläche befindet sich derzeit im Rohbauzustand. Die Fläche ist mit einer Rasterdecke ausgestattet und die Deckenhöhe beträgt ca. 3 m. Der zukünftige Mieter auf die Ausgestaltung noch Einfluss nehmen kann.
Im Erdgeschoss befindet sich die Laden- /Ausstellungsfläche. Hier ist geplant neben der großen Ladenfläche auch einen Lager- oder Sozialraum und zwei WCs zu erstellen. Die Fläche kann derzeit nach den Wünschen des Mieters aufgeteilt und ausgestattet werden.
Kundenstellplätze befinden sich vor dem Objekt. Stellplätze in der Tiefgarage können angemietet werden.
Das hochwertig gebaute, energieeffiziente Gebäude wurde im KfW-55-Standard gebaut und wird über eine Pelletheizung beheizt. Die Fläche befindet sich derzeit im Rohbauzustand. Die Fläche ist mit einer Rasterdecke ausgestattet und die Deckenhöhe beträgt ca. 3 m. Der zukünftige Mieter auf die Ausgestaltung noch Einfluss nehmen kann.
Im Erdgeschoss befindet sich die Laden- /Ausstellungsfläche. Hier ist geplant neben der großen Ladenfläche auch einen Lager- oder Sozialraum und zwei WCs zu erstellen. Die Fläche kann derzeit nach den Wünschen des Mieters aufgeteilt und ausgestattet werden.
Kundenstellplätze befinden sich vor dem Objekt. Stellplätze in der Tiefgarage können angemietet werden.
Ausstattung
Lage: ca. 15 km westlich von Regensburg
Mietpreis: EUR 1.755,-
Nebenkosten: EUR 455,-
Fläche: ca. 130 m²
Zimmeranzahl: 5
Baujahr: 2021
letzte Modernisierung: 2023
Kaution: EUR 5.265,-
Geschoss(e): EG
Bezug: sofort
teilbar ab: nein
Stellplatzanzahl: 2
Stellplatzpreis: je EUR 50,-
Fußweg zum RVV: 2 min.
Fahrtzeit Bahnhof: 5 min.
Fahrtzeit Autobahn: 5 min.
Fahrtzeit Flughafen: 70 min.
Objekttyp: Büro
Zustand: Erstbezug
Stellplatz: Außenstellplatz
Ausstattung: gehoben
Bodenbelag: PVC
Heizung: Holz-Pelletheizung
Energieausweis Art: Energiebedarfsausweis
Energieausweis Wert: 88,3 kWh/m²a
Energieträger: Holz
barrierefrei: ja
Mietpreis: EUR 1.755,-
Nebenkosten: EUR 455,-
Fläche: ca. 130 m²
Zimmeranzahl: 5
Baujahr: 2021
letzte Modernisierung: 2023
Kaution: EUR 5.265,-
Geschoss(e): EG
Bezug: sofort
teilbar ab: nein
Stellplatzanzahl: 2
Stellplatzpreis: je EUR 50,-
Fußweg zum RVV: 2 min.
Fahrtzeit Bahnhof: 5 min.
Fahrtzeit Autobahn: 5 min.
Fahrtzeit Flughafen: 70 min.
Objekttyp: Büro
Zustand: Erstbezug
Stellplatz: Außenstellplatz
Ausstattung: gehoben
Bodenbelag: PVC
Heizung: Holz-Pelletheizung
Energieausweis Art: Energiebedarfsausweis
Energieausweis Wert: 88,3 kWh/m²a
Energieträger: Holz
barrierefrei: ja
Lage des Objektes
ca. 15 km westlich von Regensburg
Sonstige Informationen
Um eine schnelle Bearbeitung zu gewähren benötigen wir Ihre Telefonnummer sowie Ihre komplette Adresse.
Logo