Exposé
Objektart:
Haus
» Mehrfamilienhaus
» Kauf
Standort: Haus »
Deutschland » Bayern » Straubing-Bogen (Kreis) » Mallersdorf-Pfaffenberg
RH495 Ruhiges Mehrfamilienhaus mit großem Garten / Mallersdorf
Bild/Grundriss 1
Das Wichtigste auf einen Blick:
| Objektnummer: | 9006605 |
Preise
| Kaufpreis | 549.000 € |
| Nebenkosten | keine Angabe |
Flächen
| Wohnfläche | 240 m² |
| Gesamtfläche | 240 m² |
| Grundstücksfläche | 760 m² |
| Maklerprovision | Ortsübliche Provision vom Käufer/Mieter nur im Erfolgsfalle |
Objekt Adresse
84066 Mallersdorf-Pfaffenberg
- Bayern
Sonstige Angaben
| Baujahr | 1950 |
| Letzte Modernisierung | 2023 |
| Zimmer | 8 |
| Verfügbar ab | 3 Monate ab Kauf |
| Keller | Ja |
| Energieträger/Befeuerung | Öl |
Objektbeschreibung
Das ruhig gelegene Mehrfamilienhaus steht in Markt Mallersdorf-Pfaffenberg zum Verkauf. Eine gute Infrastruktur, Einkaufsmöglichkeiten sowie Ärzte, Schule usw. sind schnell zu erreichen. Das Freibad befindet sich in der Nähe.
Das großzügige und teilunterkellerte Mehrfamilienhaus wurde in massiver Ziegelbauweise errichtet und wird mittels einer Ölzentralheizung beheizt. Das Haus wurde komplett gedämmt und laufend instandgehalten. 2008 wurde das Dachgeschoss mit einer großen Dachgaube ausgebaut und 2016 alle Fenster erneuert. Die Räume sind mit Fliesen und Laminat ausgelegt. Das Haus wird aktuell vom Eigentümer bewohnt.
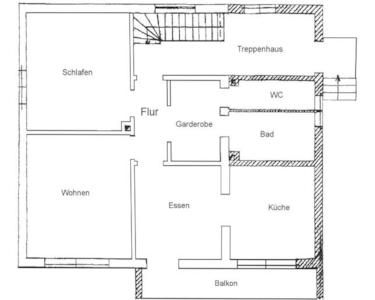
Im Erdgeschoss befindet sich eine 2,5-Zimmerwohnung. Über den Flur sind das Schlaf- und das helle Wohnzimmer sowie der Essbereich mit offener Küche zu erreichen. Vom Esszimmer besteht Zugang zum Süd-Balkon. Von der Garderobe aus sind das Gäste-WC und das Bad begehbar. Das Bad mit Whirlpool-Wanne und das Gäste-WC sind hell gefliest.
Im Obergeschoss befindet sich ebenfalls eine 2,5-Zimmerwohnung. Über den Flur sind das Schlaf- und das helle Wohnzimmer sowie der Essbereich mit offener Küche zu erreichen. Vom Esszimmer besteht Zugang zum Süd-Balkon. In der Küche befindet sich eine moderne Einbauküche. Das modern geflieste Bad ist mit einer großen Dusche, großem Waschbecken mit Unterschrank und WC ausgestattet. Weiter sind ein Abstellraum und ein Schwedenofen vorhanden.
Im Dachgeschoss befindet sich eine 2-Zimmerwohnung. Vom Flur aus sind alle Räume zu erreichen. Im großzügigen Wohn-/Ess-/Koch-Bereich befinden sich Deckenspots und bodentiefe Fenster mit Französischen Balkonen. Eine sehr große Dachgaube bietet einen herrlichen Ausblick. Das modern deckenhoch hell geflieste Bad ist mit Dusche, Waschbecken, WC, Handtuchheizkörper und Waschmaschinenanschluss ausgestattet. Das Dachgeschoss wird aktuell durch die Wohnung im Obergeschoss begangen.
Das großzügige und teilunterkellerte Mehrfamilienhaus wurde in massiver Ziegelbauweise errichtet und wird mittels einer Ölzentralheizung beheizt. Das Haus wurde komplett gedämmt und laufend instandgehalten. 2008 wurde das Dachgeschoss mit einer großen Dachgaube ausgebaut und 2016 alle Fenster erneuert. Die Räume sind mit Fliesen und Laminat ausgelegt. Das Haus wird aktuell vom Eigentümer bewohnt.
Im Erdgeschoss befindet sich eine 2,5-Zimmerwohnung. Über den Flur sind das Schlaf- und das helle Wohnzimmer sowie der Essbereich mit offener Küche zu erreichen. Vom Esszimmer besteht Zugang zum Süd-Balkon. Von der Garderobe aus sind das Gäste-WC und das Bad begehbar. Das Bad mit Whirlpool-Wanne und das Gäste-WC sind hell gefliest.
Im Obergeschoss befindet sich ebenfalls eine 2,5-Zimmerwohnung. Über den Flur sind das Schlaf- und das helle Wohnzimmer sowie der Essbereich mit offener Küche zu erreichen. Vom Esszimmer besteht Zugang zum Süd-Balkon. In der Küche befindet sich eine moderne Einbauküche. Das modern geflieste Bad ist mit einer großen Dusche, großem Waschbecken mit Unterschrank und WC ausgestattet. Weiter sind ein Abstellraum und ein Schwedenofen vorhanden.
Im Dachgeschoss befindet sich eine 2-Zimmerwohnung. Vom Flur aus sind alle Räume zu erreichen. Im großzügigen Wohn-/Ess-/Koch-Bereich befinden sich Deckenspots und bodentiefe Fenster mit Französischen Balkonen. Eine sehr große Dachgaube bietet einen herrlichen Ausblick. Das modern deckenhoch hell geflieste Bad ist mit Dusche, Waschbecken, WC, Handtuchheizkörper und Waschmaschinenanschluss ausgestattet. Das Dachgeschoss wird aktuell durch die Wohnung im Obergeschoss begangen.
Ausstattung
Lage: Mallersdorf
Kaufpreis: EUR 549.000.-
Fläche: ca. 240 m²
Wohnfläche: ca. 240 m²
Grundstück: ca. 760 m²
Zimmeranzahl: 8
Baujahr: 1950
letzte Modernisierung: 2023
Geschoss(e): KG+EG+OG+DG
Wohnfläche: ca. 240 m²
Gewerbefläche: ca. 0 m²
Bezug: 3 Monate ab Kauf
Stellplatzanzahl: 2
Stellplatzpreis: EUR 0,-
Fußweg zum RVV: 5 min.
Fahrtzeit Bahnhof: 10 min.
Fahrtzeit Autobahn: 20 min.
Fahrtzeit Flughafen: 50 min.
Objekttyp: Mehrfamilienhaus
Zustand: gepflegt
Ausstattung: normal
Heizung: Öl-Heizung
Energieausweis Art: keine Angabe
Energieträger: Öl
Keller: ja
Kaufpreis: EUR 549.000.-
Fläche: ca. 240 m²
Wohnfläche: ca. 240 m²
Grundstück: ca. 760 m²
Zimmeranzahl: 8
Baujahr: 1950
letzte Modernisierung: 2023
Geschoss(e): KG+EG+OG+DG
Wohnfläche: ca. 240 m²
Gewerbefläche: ca. 0 m²
Bezug: 3 Monate ab Kauf
Stellplatzanzahl: 2
Stellplatzpreis: EUR 0,-
Fußweg zum RVV: 5 min.
Fahrtzeit Bahnhof: 10 min.
Fahrtzeit Autobahn: 20 min.
Fahrtzeit Flughafen: 50 min.
Objekttyp: Mehrfamilienhaus
Zustand: gepflegt
Ausstattung: normal
Heizung: Öl-Heizung
Energieausweis Art: keine Angabe
Energieträger: Öl
Keller: ja
Lage des Objektes
Mallersdorf
Sonstige Informationen
Um eine schnelle Bearbeitung zu gewähren benötigen wir Ihre Telefonnummer sowie Ihre komplette Adresse.
Bild/Grundriss 2
Bild/Grundriss 3
Bild/Grundriss 4
Bild/Grundriss 5
Bild/Grundriss 6
Bild/Grundriss 7
Bild/Grundriss 8
Bild/Grundriss 9
Bild/Grundriss 10
Bild/Grundriss 11
Bild/Grundriss 12
Bild/Grundriss 13
Bild/Grundriss 14
Logo