Exposé
Objektart:
Büro / Praxen
» Buerohaus
» Miete
Standort: Büro / Praxen »
Deutschland » Sachsen » Delitzsch (Kreis) » Schkeuditz
BUERO.flächen nahe des Schkeuditzer Kreuz/Flughafen
Außenansicht
Das Wichtigste auf einen Blick:
| Objektnummer: | 9005293 |
Preise
| Miete für das Objekt | Auf Anfrage |
| Nebenkosten | keine Angabe |
| Heizkosten enthalten | Ja |
| Mietpreis pro m² | 6,5 € |
Flächen
| Bürofläche | 79 m² |
| Bürofläche | 79 m² |
| Fläche teilbar ab | 79 m² |
| Maklerprovision | provisionsfrei |
Objekt Adresse
Junkerstraße 1
04435 Schkeuditz
Sonstige Angaben
| Verfügbar ab | keine Angabe |
Objektbeschreibung
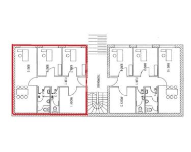
Die 1992/93 errichteten zweigeschossigen kleineren Bürogebäude mit jeweils 316 m² setzen sich aus 4 Einheiten mit je ca. 79,00 m² zusammen. Die Mietbereiche können entsprechend des benötigten Raumprofils ausgebaut und ausgestattet werden. Die Einheiten im Erdgeschoss haben eine Verbindung zu den Hallenflächen. Das Hauptgebäude verfügt insgesamt über 1.500 m² Mietfläche.
Die Büroflächen verfügen über folgende Ausstattungsmerkmale:
– DSL Anschluss
– Teeküchen und gefliester Sanitärbereich
– elektrischer Sonnenschutz in allen Büroräumen der Süd- und Westseite
– stuhlrollenfeste Teppichböden
Vor dem Gebäude stehen zahlreiche Stellplätze zur Anmietung Verfügung.
Die Büroflächen verfügen über folgende Ausstattungsmerkmale:
– DSL Anschluss
– Teeküchen und gefliester Sanitärbereich
– elektrischer Sonnenschutz in allen Büroräumen der Süd- und Westseite
– stuhlrollenfeste Teppichböden
Vor dem Gebäude stehen zahlreiche Stellplätze zur Anmietung Verfügung.
Lage des Objektes
Das ''Gewerbegebiet Glesien'' befindet sich in einem neu errichteten Gewerbegebiet am Flughafen Leipzig/Halle, ca. 1km nördlich der Flughafenlandebahn mit direkter Anbindung an das Autobahnkreuz A9/A14 (Schkeuditzer Kreuz). Dieser Standort eignet sich als hervorragender Verkehrsknotenpunkt für die Erschließung der Region Mitteldeutschlands. Nahe des Güterverkehrszentrum, der Werke von BMW und Porsche und des DHL-Frachtzentrums am Flughafen gelegen, ist dies auch ein idealer Standort für Logistikunternehmen und Automobilzulieferindustrie.
Sonstige Informationen
Der Mietpreis liegt ca. zwischen 6,50EUR/m² - 8,50EUR/m² zzgl. Nebenkosten und richtet sich nach Mietvertragslaufzeit, Ausstattungsmerkmalen und Lage im Gebäude. Gern unterbreiten wir Ihnen Ihr persönliches Mietangebot.
Büroanmietung leicht gemacht?
Bitte sprechen Sie uns an, gern stellen wir Ihnen eine Auswahl geeigneter Büroflächenangebote zusammen. Für Fragen, ein persönliches Gespräch oder eine persönliche Terminvereinbarung stehen wir Ihnen gern telefonisch unter 0341-5643000 zur Verfügung.
Außenansicht
Innenansicht
Innenansicht
Innenansicht
1. OG