Exposé
Objektart:
Haus
» Mehrfamilienhaus
» Kauf
Standort: Haus »
Deutschland » Nordrhein-Westfalen » Paderborn (Kreis) » Paderborn
Kapitalanleger aufgepasst: Senioren-Pfegezentrum am Arminiuspark mit QNG Zertifikat
Ansicht Nord
Das Wichtigste auf einen Blick:
| Objektnummer: | 9004856 |
Preise
| Kaufpreis | 3.388.000 € |
| Nebenkosten | keine Angabe |
Flächen
| Wohnfläche | 910 m² |
| Grundstücksfläche | 426 m² |
| Maklerprovision | 3.57 % |
Objekt Adresse
33100 Paderborn
Sonstige Angaben
| Baujahr | 2025 |
| Zimmer | 3 |
| Verfügbar ab | keine Angabe |
| Anzahl der Etagen im Haus | 4 |
| Boden | Fliesen, Kunststoff |
| Fahrstuhl | Ja |
| Energieausweistyp | Bedarfsausweis |
| Ausstellungsdatum | 18. 03. 2025 |
| Gültig bis | 18.03.2025 |
| Baujahr (laut Energieausweis) | 2025 |
| Energieeffizienzklasse | A+ |
| Endenergiebedarf | 23 kWh/(m²*a) |
| Heizungsart | Zentralheizung |
| Wesentlicher Energieträger | Luftwärmepumpe Solarenergie |
| Energieträger/Befeuerung | Solar, Luft-Wärme-Pumpe |
Objektbeschreibung
Im Herzen dieser renommierten Kurstadt entsteht innerhalb der Kernstadt ein modernes Senioren-Pflegezentrum in innovativer modularer Bauweise und Effizienzhaus 40 Standard.
Das Projekt umfasst eine Tagespflegeeinrichtung mit 12 Pflegeplätzen sowie ein innovatives Wohngruppenkonzept für demenzkranke Menschen auf 3 Etagen mit weiteren 17 Pflegeplätzen.
Zielgruppe :
oSenioren, die Unterstützung im Alltag benötigen
oDemenzkranke und pflegebedürftige Senioren, Palliativ Patienten
oAngehörige, die auf der Suche nach einer vertrauenswürdigen Pflegeeinrichtung sind
oInstitutionen, die an Partnerschaften im Bereich Altenpflege interessiert sind
Generalmietvertrag mit einer Laufzeit von 15 Jahren zzgl. Option liegt vor.
Das Projekt umfasst eine Tagespflegeeinrichtung mit 12 Pflegeplätzen sowie ein innovatives Wohngruppenkonzept für demenzkranke Menschen auf 3 Etagen mit weiteren 17 Pflegeplätzen.
Zielgruppe :
oSenioren, die Unterstützung im Alltag benötigen
oDemenzkranke und pflegebedürftige Senioren, Palliativ Patienten
oAngehörige, die auf der Suche nach einer vertrauenswürdigen Pflegeeinrichtung sind
oInstitutionen, die an Partnerschaften im Bereich Altenpflege interessiert sind
Generalmietvertrag mit einer Laufzeit von 15 Jahren zzgl. Option liegt vor.
Ausstattung
Vorteile:
o Verkürzte Bauzeiten, fixe Kostenstruktur, erheblich Kostensenkung.
Schlüsselfertige Bauweise nach DIN 18040-1, EN 1090, ISO 3940 ISO 9001-215 und 50001-211.
oUmsetzung neuster energetischer Technologien und Verfahren Einsatz von energieeffizienten Technologien und Materialien.
oReduzierung des ökologischen Fußabdrucks und Senkung der Bau- und Betriebskosten.
oIndividuelle Anpassungsmöglichkeiten und Erweiterungen somit die Möglichkeit auf sich verändernde Bedürfnisse auch nach Fertigstellung und Inbetriebnahme zu reagieren.
oMaximum an Energieeffizienz, Nachhaltigkeit und Innovation.
Vorteile für Investoren:
1. Langfristige Mietverträge:
15 Jahre mit Verlängerungsoption bieten eine nachhaltige Einnahmequelle.
2. Steigende Nachfrage:
Der demografische Wandel führt zu einer wachsenden Nachfrage nach Pflegeplätzen und attraktiven Marktchancen
3. Steuerliche Vorteile:
Investoren profitieren von Abschreibungen und staatlichen Förderungen, was die Rendite steigert,
hohe Abschreibung durch QNG - Zertifizierung
4. Attraktive Renditen:
Die stabile Mietstruktur und die steigende Nachfrage machen das Projekt zu einer rentablen Investition.
Zusammenfassung
Das Senioren-Pflegezentrum in Bad Lippspringe bietet profitable Renditen und die Möglichkeit, aktiv zur Verbesserung der Lebensqualität älterer Menschen beizutragen. Das Projekt verbindet wirtschaftliches Potenzial mit sozialer Verantwortung und die Chance, Teil einer zukunftsorientierten Initiative zu werden.
o Verkürzte Bauzeiten, fixe Kostenstruktur, erheblich Kostensenkung.
Schlüsselfertige Bauweise nach DIN 18040-1, EN 1090, ISO 3940 ISO 9001-215 und 50001-211.
oUmsetzung neuster energetischer Technologien und Verfahren Einsatz von energieeffizienten Technologien und Materialien.
oReduzierung des ökologischen Fußabdrucks und Senkung der Bau- und Betriebskosten.
oIndividuelle Anpassungsmöglichkeiten und Erweiterungen somit die Möglichkeit auf sich verändernde Bedürfnisse auch nach Fertigstellung und Inbetriebnahme zu reagieren.
oMaximum an Energieeffizienz, Nachhaltigkeit und Innovation.
Vorteile für Investoren:
1. Langfristige Mietverträge:
15 Jahre mit Verlängerungsoption bieten eine nachhaltige Einnahmequelle.
2. Steigende Nachfrage:
Der demografische Wandel führt zu einer wachsenden Nachfrage nach Pflegeplätzen und attraktiven Marktchancen
3. Steuerliche Vorteile:
Investoren profitieren von Abschreibungen und staatlichen Förderungen, was die Rendite steigert,
hohe Abschreibung durch QNG - Zertifizierung
4. Attraktive Renditen:
Die stabile Mietstruktur und die steigende Nachfrage machen das Projekt zu einer rentablen Investition.
Zusammenfassung
Das Senioren-Pflegezentrum in Bad Lippspringe bietet profitable Renditen und die Möglichkeit, aktiv zur Verbesserung der Lebensqualität älterer Menschen beizutragen. Das Projekt verbindet wirtschaftliches Potenzial mit sozialer Verantwortung und die Chance, Teil einer zukunftsorientierten Initiative zu werden.
Lage des Objektes
Die zentrale Lage in Bad Lippspringe bietet eine umfangreiche Infrastruktur sowie hervorragende Anwendungen an lokale Dienstleistungen, Ärzte, Kurkliniken und hervorragende Anbindungen und Heilverfahren.
Die ruhige, naturnahe Umgebung sowie das Heilklima fördern das Wohlbefinden, verbessert die Lebensqualität und bietet damit ideale Voraussetzungen für ältere und pflegebedürftige Menschen.
An die Pflegeeinrichtung selbst schließen sich unmittelbar die seit 1902 genutzte Liborius-Heilquelle, die Stankt Martins Heilquelle, die Arminius Heilquelle sowie der weitläufige Arminius Park, mit einer Fläche von 4,4 Hektar an.
Der Park bietet neben einladenden Grünflächen und Baumalleen diverse Sitzgelegenheiten, Cafés, Eisdielen, Salzwasser - Nebelsäulen sowie viele andere Möglichkeiten zum Spazierengehen, Verweilen und Entspannen. Somit bieten der Ort, die Lage sowie die angeschlossene Infrastruktur, ideale Voraussetzungen für die Menschen in der Pflegeeinrichtung.
Die ruhige, naturnahe Umgebung sowie das Heilklima fördern das Wohlbefinden, verbessert die Lebensqualität und bietet damit ideale Voraussetzungen für ältere und pflegebedürftige Menschen.
An die Pflegeeinrichtung selbst schließen sich unmittelbar die seit 1902 genutzte Liborius-Heilquelle, die Stankt Martins Heilquelle, die Arminius Heilquelle sowie der weitläufige Arminius Park, mit einer Fläche von 4,4 Hektar an.
Der Park bietet neben einladenden Grünflächen und Baumalleen diverse Sitzgelegenheiten, Cafés, Eisdielen, Salzwasser - Nebelsäulen sowie viele andere Möglichkeiten zum Spazierengehen, Verweilen und Entspannen. Somit bieten der Ort, die Lage sowie die angeschlossene Infrastruktur, ideale Voraussetzungen für die Menschen in der Pflegeeinrichtung.
Sonstige Informationen
Das Angebot gefällt Ihnen?
Bitte kontaktieren Sie uns über dieses Immobilienportal, wir senden Ihnen weitere Unterlagen.
Gerne besuchen Sie uns auf eine Tasse Kaffee in unserem Büro und ich stelle Ihnen das Projekt genauer vor.
Ihr Andreas Scheurell und Georg Knaup
Andreas Scheurell
Tel.Nr.: 01702307555
oder per Mail: AS@Immopartner-pb.de
Georg Knaup
Tel. Nr.: 05251 - 20 77 810,
Mobil: 0171-2122320
oder per Mail: georg.knaup@immopartner-pb.de
weitere Angebote unter www.Immopartner-PB.de
Sonstiges:
Alle Angaben ohne Gewähr!
Der Makler haftet nicht für Tipp- oder Datenübermittlungsfehler.
Vertragsgrundlage ist ausschließlich der Notarielle Kaufvertrag.
Ansicht Ost
Ansicht Süd
Ansicht West
Erdgeschoss
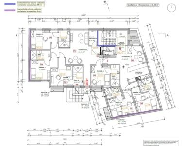
Obergeschoss
2. Obergeschoss
Dachgeschoss