Exposé
Objektart:
Büro / Praxen
» Bueroflaeche
» Miete
Standort: Büro / Praxen »
Deutschland » Nordrhein-Westfalen » Bochum, Stadt (Kreis) » Bochum
Office – modern - hell | nur 3 Minuten bis zur A40
Büro
Das Wichtigste auf einen Blick:
| Objektnummer: | 8997943 |
Preise
| Kaltmiete | 1.395,29 € |
| Warmmiete | 1.775,29 € |
| Nebenkosten | 380 € |
| Heizkosten enthalten | Ja |
| Mietpreis pro m² | 8,75 € |
Flächen
| Gesamtfläche | 159,38 m² |
| Bürofläche | 159,38 m² |
| Maklerprovision | 1,19 Netto-Monatsmieten (inkl. MwSt) |
Objekt Adresse
44791 Bochum
Sonstige Angaben
| Baujahr | 1975 |
| Verfügbar ab | keine Angabe |
| Energieausweistyp | Verbrauch |
| Gültig bis | 2024-08-25 |
| Baujahr (laut Energieausweis) | 1975 |
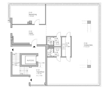
Objektbeschreibung
- Bürofläche ca. 159 m²
- 1. Obergeschoss mit Aufzug
- Teeküche inklusive
- Sanitär Damen und Herren getrennt
- CAT 7 Netzwerkverkabelung
- Tiefgaragenstellplätze optional
- 1. Obergeschoss mit Aufzug
- Teeküche inklusive
- Sanitär Damen und Herren getrennt
- CAT 7 Netzwerkverkabelung
- Tiefgaragenstellplätze optional
Lage des Objektes
Tief im Westen - ein Pulsschlag aus Stahl - Bochum!
Mitten im Herzen des Ruhrpotts gelegen bietet es seinen rund 365.000 Einwohnern mehr als "nur" STARLIGHT EXPRESS und den VFL.
Auch die über 43.000 Studierenden aus 130 Ländern der Ruhruniversität Bochum schätzen Bochums vielfältiges Kultur- und Freizeitangebot. Nur noch das Deutsche Bergbau-Museum erinnert an Bochums Kohlevergangenheit. Mittlerweile geben Firmen der Dienstleistungs-, Gesundheits- und Logistikbranche der Bochumer Wirtschaft ihr neues, dynamisches Gesicht.
Ihr Büro liegt keine 10 Gehminuten von der Bochumer Innenstadt entfernt mit pulsierenden Geschäften, Restaurants und Cafés - genug Zeit für die Mittagspause.
Ganz gleich ob mit Bus, Straßenbahn, S-Bahn oder Auto - Sie kommen bequem ins Büro.
Die Straßenbahn- und Bushaltestellen am Planetarium sind nur ca. 500 m, die U-Bahn Station Rathaus Nord ist nur ca. 1 km vom Büro entfernt.
Nach nur ca. 3 km sind Sie mit ihrem Auto auf der A 40. Weitere Autobahnanschlüsse wie z. B. A 43, A 44 sind innerhalb weniger Autominuten zu erreichen und garantieren somit eine perfekte Erreichbarkeit weiterer Metropolen des Ruhrgebiets.
Mitten im Herzen des Ruhrpotts gelegen bietet es seinen rund 365.000 Einwohnern mehr als "nur" STARLIGHT EXPRESS und den VFL.
Auch die über 43.000 Studierenden aus 130 Ländern der Ruhruniversität Bochum schätzen Bochums vielfältiges Kultur- und Freizeitangebot. Nur noch das Deutsche Bergbau-Museum erinnert an Bochums Kohlevergangenheit. Mittlerweile geben Firmen der Dienstleistungs-, Gesundheits- und Logistikbranche der Bochumer Wirtschaft ihr neues, dynamisches Gesicht.
Ihr Büro liegt keine 10 Gehminuten von der Bochumer Innenstadt entfernt mit pulsierenden Geschäften, Restaurants und Cafés - genug Zeit für die Mittagspause.
Ganz gleich ob mit Bus, Straßenbahn, S-Bahn oder Auto - Sie kommen bequem ins Büro.
Die Straßenbahn- und Bushaltestellen am Planetarium sind nur ca. 500 m, die U-Bahn Station Rathaus Nord ist nur ca. 1 km vom Büro entfernt.
Nach nur ca. 3 km sind Sie mit ihrem Auto auf der A 40. Weitere Autobahnanschlüsse wie z. B. A 43, A 44 sind innerhalb weniger Autominuten zu erreichen und garantieren somit eine perfekte Erreichbarkeit weiterer Metropolen des Ruhrgebiets.
Sonstige Informationen
Alle Mietpreise stellen Ausgangsmieten dar. Die Miethöhe kann in Abhängigkeit von Mietvertragslaufzeit, Umbaukosten, Ausstattungs-wünschen und Bonität des Mieters variieren.
Energieausweis: Verbrauch – Wärme 92,5 kWh/ Strom 149,5 kWh – KWK, fossil/ Strom – Baujahr 1975
Büro
Besprechung
Teeküche
Office – Hell – Günstig
Tiefgarage
Grundriss